School Road, Coddenham, Ipswich, Suffolk, IP6
By Hamilton Smith
£ 300,000
Reviews
3 out of 5 stars
Hamilton Smith says ..
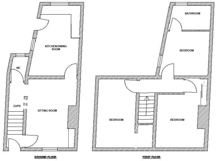
We are pleased to offer for sale this MOST ATTRACTIVE, DECEPTIVELY SPACIOUS, THREE BEDROOM PERIOD VILLAGE HOUSE, presented in superb condition throughout, ready for immediate occupation. With appealing garden and views over meadowland to the rear. Offered with no onward chain.
Property Oracle says ..
This is a three-bedroom terraced house on School Road in Coddenham, Suffolk. The property is listed for £300,000 by Hamilton Smith. It features a modern kitchen and bathroom, a garden, and is located in a village setting with access to local amenities and schools. The property appears to be in good condition and offers a comfortable living space. While the location is not in a major urban center, it provides a peaceful environment with convenient access to nearby towns and transport links. The price seems competitive for the area and the property type.
Therefore, we give this property 6 / 10. *Disclaimer: This is our option and does constitute a recommendation or financial advice. Do your own research. *
- Price
- 7
- Condition
- 7
- Location
- 6
- Land
- 6
- Bedrooms
- 3
- Bathrooms
- 1
- Sqft (est)
- 740.00
The heatmap indicates the level of crime in the area. The color of the heatmap indicates the crime severity and recency.
Metrics Year-on-Year
- Average area value
- 476,474.00 £Increased by 4.49 %
- Est sale value
- 300,440.00 £Decreased by 24.81 %
- Average area rental value
- 1,277.00 £/moIncreased by 2.16 %
- Est letting value
- 740.00 £/moUnchanged by 0.00 %
- Est rental Yield
- 3.22 %Decreased by 2.13 %
- Crime Rate
- 47.00 %Unchanged by 0.00 %
Agent Activity
Hamilton Smith created the listing.
Nearby Schools
| Name | Type | Ofsted | Distance |
|---|---|---|---|
| Claydon Primary School | Academy Converter | 4.21 KM | |
| Claydon High School | Academy Converter | Good | 4.40 KM |
| Stonham Aspal Church Of England Voluntary Aided Primary School | Voluntary Aided School | Good | 5.26 KM |
| Henley Primary School | Academy Converter | 5.30 KM | |
| Creeting St Mary Church Of England Voluntary Aided Primary School | Voluntary Aided School | Good | 6.42 KM |
Images
Nearby Streets
| Name | Average Price | Average Sqft | Distance |
|---|---|---|---|
| Blacksmiths Lane | £ 850,000 | 0 | 0.00 KM |
| Love Lane | £ 0 | 0 | 0.00 KM |
| Mary Day Close | £ 0 | 0 | 0.00 KM |
| Rectory Road | £ 0 | 0 | 0.00 KM |
Nearby Transport
| Name | NLC | TLC | Distance |
|---|---|---|---|
| Needham Market | 7354 | NMT | 6.84 KM |
| Westerfield | 7226 | WFI | 9.04 KM |
Nearby Listings
| Address | Price | Type | Score | Distance |
|---|---|---|---|---|
| Coddenham, Ipswich, Suffolk | £ 239,995 | BUY | 6 / 10 | 0.00 KM |
| School Road, Coddenham, Ipswich, Suffolk, IP6 | £ 300,000 | BUY | 6 / 10 | 0.00 KM |
| School Road, Coddenham, IP6 | £ 239,995 | BUY | Unknown | 0.02 KM |
| Coddenham, Nr Ipswich, Suffolk, IP6 | £ 895,000 | BUY | 7 / 10 | 0.10 KM |
| Maybank, School Road, Coddenham | £ 650,000 | BUY | 7 / 10 | 0.17 KM |
Nearby Properties
| Address | Price | Distance |
|---|---|---|
| Hillside | £ 365,000 | 0.00 KM |
| Cambridge Cottage | £ 180,000 | 0.00 KM |
| Hill House | £ 305,000 | 0.01 KM |
| Forge Cottage | £ 307,500 | 0.01 KM |
| Home Lea | £ 338,000 | 0.01 KM |