Smart Homes Ltd says ..
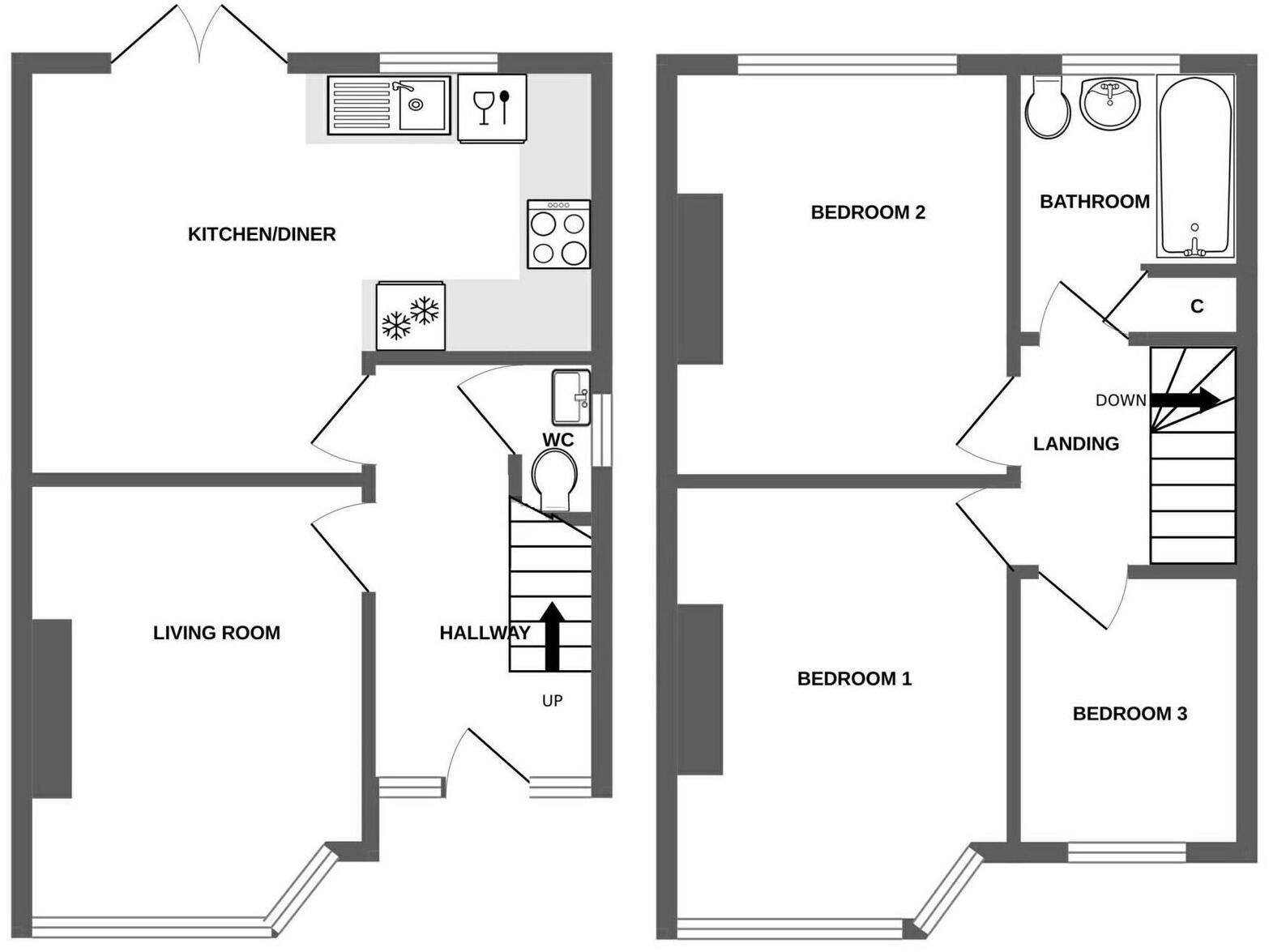
A completely refurbished semi detached property offering for sale with no upward chain and briefly affording three bedrooms, lounge, newly fitted breakfast kitchen with integrated appliances, newly fitted guest W.C, newly fitted family bathroom, new double glazing throughout and large rear gar...
Property Oracle says ..
Therefore, we give this property 8 / 10. *Disclaimer: This is our option and does constitute a recommendation or financial advice. Do your own research. *
- Price
- 9
- Condition
- 9
- Location
- 8
- Land
- 7
- Bedrooms
- 3
- Bathrooms
- 1
- Sqft (est)
- 851.00
The heatmap indicates the level of crime in the area. The color of the heatmap indicates the crime severity and recency.
Metrics Year-on-Year
- Average area value
- 543,800.00 £Increased by 17.00 %
- Est sale value
- 456,987.00 £Increased by 32.27 %
- Average area rental value
- 1,669.00 £/moDecreased by 26.99 %
- Est letting value
- 851.00 £/moDecreased by 50.00 %
- Est rental Yield
- 3.68 %Decreased by 37.63 %
- Crime Rate
- 4.00 %Unchanged by 0.00 %
from 464,776.00 £
from 345,506.00 £
from 2,286.00 £/mo
from 1,702.00 £/mo
from 5.90 %
from 4.00 %
Agent Activity
Smart Homes Ltd created the listing.
Nearby Schools
| Name | Type | Ofsted | Distance |
|---|---|---|---|
| Solihull Alternative Provision Academy | Free Schools Alternative Provision | 0.35 KM | |
| Cranmore Infant School | Community School | Outstanding | 0.47 KM |
| Widney Junior School | Community School | Good | 0.88 KM |
| Shirley Heath Junior School | Community School | Outstanding | 1.11 KM |
| Shirley Heath Children'S Centre (Shirley South) | Children's Centre | 1.15 KM |
Images
Nearby Streets
| Name | Average Price | Average Sqft | Distance |
|---|---|---|---|
| Warwick Mews | £ 0 | 0 | 0.00 KM |
| Conway Road | £ 359,950 | 0 | 0.00 KM |
| Kingswood Close | £ 387,500 | 0 | 0.00 KM |
| Avon Road | £ 293,725 | 0 | 0.00 KM |
| Exhall Close | £ 625,000 | 0 | 0.00 KM |
Nearby Transport
| Name | NLC | TLC | Distance |
|---|---|---|---|
| Solihull | 4527 | SOL | 2.69 KM |
| Widney Manor | 4528 | WMR | 3.86 KM |
| Shirley | 4526 | SRL | 4.02 KM |
| Olton | 4533 | OLT | 4.16 KM |
| Whitlocks End | 4539 | WTE | 4.84 KM |
Nearby Listings
| Address | Price | Type | Score | Distance |
|---|---|---|---|---|
| Clinton Road, Shirley | £ 350,000 | BUY | 8 / 10 | 0.00 KM |
| Clinton Road, Shirley, Solihull, B90 4RQ | £ 475,000 | BUY | 7 / 10 | 0.06 KM |
| Clinton Road, Solihull, B90 | £ 330,000 | BUY | 7 / 10 | 0.06 KM |
| Cranmore Boulevard, Solihull, B90 | £ 340,000 | BUY | 6 / 10 | 0.13 KM |
| Cranmore Boulevard, Shirley, Solihull | £ 339,950 | BUY | 7 / 10 | 0.13 KM |
Nearby Properties
| Address | Price | Distance |
|---|---|---|
| 108 Clinton Road | £ 101,000 | 0.06 KM |
| 116 Clinton Road | £ 119,820 | 0.06 KM |
| 128 Clinton Road | £ 260,000 | 0.06 KM |
| 130 Clinton Road | £ 194,000 | 0.06 KM |
| 122 Clinton Road | £ 275,000 | 0.06 KM |