Walton Crescent, Llandudno Junction
By Fletcher & Poole
£ 245,000
Reviews
4 out of 5 stars
Fletcher & Poole says ..
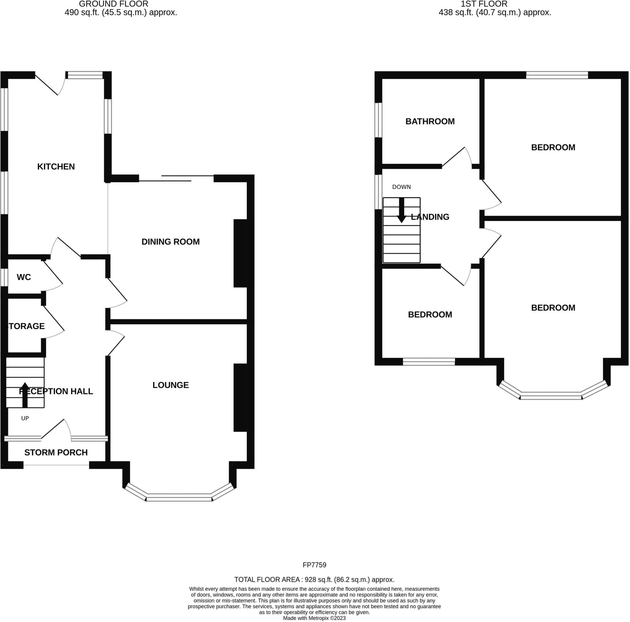
A beautifully presented and refurbished three bedroom semi-detached home enjoying an extension to the rear with partial open plan kitchen/dining room and planning permission granted to further extend. The light and well planned accommodation comprises: Partial open porch, hallway with under-st...
Property Oracle says ..
The property is a 3 bedroom semi-detached house located on Walton Crescent in Llandudno Junction, Conwy, LL31 9ER. The list price is £245,000. Based on the images provided the property appears to be well maintained and in good condition throughout. The kitchen and bathrooms have been recently updated to a modern standard. The property benefits from a good size rear garden with patio and decking area. The location is convenient, with nearby transportation links including Llandudno Junction train station, approximately 0.73 km away. Several schools are within a reasonable distance, although specific Ofsted ratings are not provided. The proximity to Llandudno Junction suggests access to local amenities and shops. Considering the average house price in the area is £274,497 and the average price per sqft is £261, and given the property’s apparent good condition, the presence of a garden, and its convenient location near transport links and schools, the asking price of £245,000 appears to be reasonably priced, potentially even slightly below the average for similar properties in the area. Further analysis would require knowing the actual square footage of the property to make a more precise assessment of value.
Therefore, we give this property 8 / 10. *Disclaimer: This is our option and does constitute a recommendation or financial advice. Do your own research. *
- Price
- 8
- Condition
- 9
- Location
- 8
- Land
- 8
- Bedrooms
- 3
- Bathrooms
- 1
- Lot (est)
- 928.00
The heatmap indicates the level of crime in the area. The color of the heatmap indicates the crime severity and recency.
Metrics Year-on-Year
- Average area value
- 401,278.00 £Increased by 42.31 %
- Average area rental value
- 1,053.00 £/moDecreased by 6.32 %
- Est rental Yield
- 3.15 %Decreased by 34.10 %
- Crime Rate
- 32.00 %Unchanged by 0.00 %
Agent Activity
Fletcher & Poole created the listing.
Nearby Schools
| Name | Type | Ofsted | Distance |
|---|---|---|---|
| Ysgol Glan Conwy | Welsh Establishment | 2.15 KM | |
| Ysgol Deganwy | Welsh Establishment | 2.20 KM | |
| St David'S College | Welsh Establishment | 2.71 KM | |
| Ysgol Porth Y Felin | Welsh Establishment | 3.46 KM | |
| Blessed William Davies School | Welsh Establishment | 3.62 KM |
Images
Nearby Streets
| Name | Average Price | Average Sqft | Distance |
|---|---|---|---|
| Queen's Road | £ 164,950 | 0 | 0.00 KM |
| Fford 6G Road | £ 0 | 0 | 0.00 KM |
| Station Terrace | £ 145,000 | 0 | 0.00 KM |
| St David's Avenue | £ 0 | 0 | 0.00 KM |
| Dolgoed | £ 0 | 0 | 0.00 KM |
Nearby Transport
| Name | NLC | TLC | Distance |
|---|---|---|---|
| Llandudno Junction | 2485 | LLJ | 0.73 KM |
| Glan Conwy | 2454 | GCW | 2.07 KM |
| Conwy | 2486 | CNW | 3.14 KM |
| Deganwy | 2480 | DGY | 3.55 KM |
| Llandudno | 2484 | LLD | 4.78 KM |
Nearby Listings
| Address | Price | Type | Score | Distance |
|---|---|---|---|---|
| Walton Crescent, Llandudno Junction | £ 245,000 | BUY | 8 / 10 | 0.00 KM |
| Walton Crescent, Llandudno Junction, LL31 | £ 260,000 | BUY | 7 / 10 | 0.00 KM |
| Walton Crescent, Llandudno Junction, Conwy, LL31 | £ 250,000 | BUY | 7 / 10 | 0.00 KM |
| Ronald Avenue, Llandudno Junction, Conwy, LL31 | £ 200,000 | BUY | 6 / 10 | 0.07 KM |
| Ronald Avenue, Llandudno Junction, LL31 | £ 220,000 | BUY | 6 / 10 | 0.07 KM |
Nearby Properties
| Address | Price | Distance |
|---|---|---|
| 31a Walton Crescent | £ 43,000 | 0.00 KM |
| 29 Walton Crescent | £ 146,500 | 0.00 KM |
| 1 Walton Crescent | £ 46,000 | 0.01 KM |
| 23 Walton Crescent | £ 128,000 | 0.01 KM |
| 31 Walton Crescent | £ 162,000 | 0.01 KM |