Dexters says ..
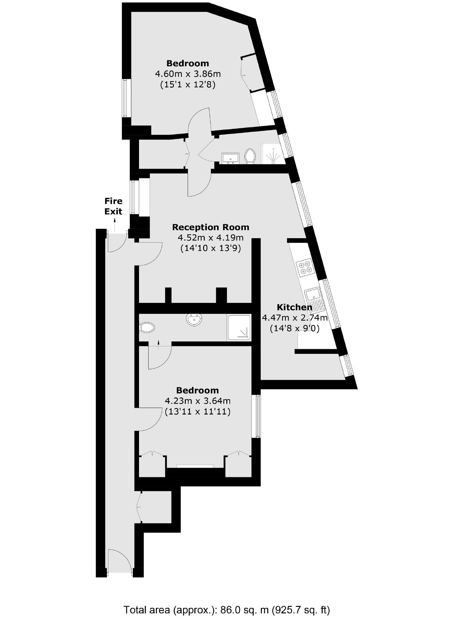
A large two bedroom, two bathroom apartment situated in a popular mansion development and within walking distance to Kensington High Street. The property is modern throughout with two spacious bedrooms, excellent storage and a long galley kitchen connected to the living room.
Property Oracle says ..
Therefore, we give this property 6 / 10. *Disclaimer: This is our option and does constitute a recommendation or financial advice. Do your own research. *
- Price
- 8
- Condition
- 7
- Location
- 8
- Land
- 1
- Bedrooms
- 2
- Bathrooms
- 1
- Sqft (est)
- 925.70
The heatmap indicates the level of crime in the area. The color of the heatmap indicates the crime severity and recency.
Metrics Year-on-Year
- Average area value
- 1,052,222.00 £Increased by 7.72 %
- Est sale value
- 960,876.60 £Increased by 11.37 %
- Average area rental value
- 2,021.00 £/moDecreased by 8.68 %
- Est letting value
- 925.70 £/moDecreased by 50.00 %
- Est rental Yield
- 2.30 %Decreased by 15.44 %
- Crime Rate
- 5.00 %Unchanged by 0.00 %
from 976,796.00 £
from 862,752.40 £
from 2,213.00 £/mo
from 1,851.40 £/mo
from 2.72 %
from 5.00 %
Agent Activity
Dexters created the listing.
Nearby Schools
| Name | Type | Ofsted | Distance |
|---|---|---|---|
| Kensington Primary Academy | Academy Sponsor Led | Outstanding | 0.19 KM |
| Kensington Wade | Other Independent School | Outstanding | 0.23 KM |
| Avonmore Neighbourhood Family Centre | Children's Centre Linked Site | 0.23 KM | |
| Avonmore Primary School | Community School | Good | 0.33 KM |
| St James Preparatory School | Other Independent School | 0.33 KM |
Images
Nearby Streets
| Name | Average Price | Average Sqft | Distance |
|---|---|---|---|
| Avonmore Road | £ 4,000,000 | 0 | 0.00 KM |
| Kensington High Street | £ 0 | 0 | 0.00 KM |
| Holland Road | £ 0 | 0 | 0.00 KM |
| Napier Close | £ 0 | 0 | 0.00 KM |
| North End Road | £ 0 | 0 | 0.00 KM |
Nearby Transport
| Name | NLC | TLC | Distance |
|---|---|---|---|
| Kensington (Olympia) | 3092 | KPA | 0.58 KM |
| West Brompton | 8875 | WBP | 1.45 KM |
| Shepherd'S Bush | 9587 | SPB | 1.73 KM |
| Imperial Wharf | 9586 | IMW | 3.40 KM |
| Putney | 5603 | PUT | 3.87 KM |
Nearby Listings
| Address | Price | Type | Score | Distance |
|---|---|---|---|---|
| Avonmore Road, West Kensington | £ 700,000 | BUY | 6 / 10 | 0.00 KM |
| Avonmore Road, London, W14 | £ 599,000 | BUY | 7 / 10 | 0.02 KM |
| Avonmore Road, West Kensington, W14 | £ 495,000 | BUY | 6 / 10 | 0.03 KM |
| Avonmore Road, West Kensington | £ 425,000 | BUY | 6 / 10 | 0.04 KM |
| Lisgar Terrace, West Kensington, London, W14 | £ 575,000 | BUY | Unknown | 0.07 KM |
Nearby Properties
| Address | Price | Distance |
|---|---|---|
| 35 Avonmore Road | £ 462,500 | 0.04 KM |
| 11 Lisgar Terrace | £ 2,100,000 | 0.06 KM |
| 1 Lisgar Terrace | £ 299,950 | 0.06 KM |
| 5 Lisgar Terrace | £ 1,490,000 | 0.07 KM |
| 9 Lisgar Terrace | £ 510,000 | 0.07 KM |