Testwood Avenue, Southampton, SO40
By The Agency UK
£ 950,000
Reviews
3 out of 5 stars
The Agency UK says ..
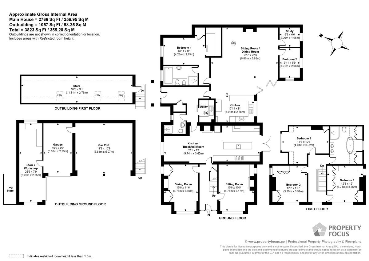
We are delighted to bring to the market this beautiful Edwardian home. The property offers 3,823 sq ft and includes ancillary accommodation. Set within a within a mature plot of approximately half an acre
Property Oracle says ..
This property is a substantial five-bedroom, three-bathroom house located in Totton East, near the New Forest National Park in Hampshire. The house itself appears well-maintained and updated, with modern kitchen and bathroom fittings visible in the photographs. The interior photos showcase a spacious and comfortable layout, with several well-sized rooms. The property’s most significant feature is its extensive grounds, which include ample lawn space, patio areas, a hot tub, and what looks like a large outbuilding or garage. The location offers a balance between rural tranquility and access to local amenities and transport links. The proximity to good schools is also a significant advantage for families. While the lack of precise data on comparable property sales in the immediate vicinity makes a definitive price-per-square-foot analysis challenging, the property’s size, condition, and extensive land seem to justify the asking price within the context of the broader New Forest housing market. A potential buyer should, however, conduct thorough due diligence and compare this property to similar recently sold properties in the immediate area to confirm the value proposition.
Therefore, we give this property 7 / 10. *Disclaimer: This is our option and does constitute a recommendation or financial advice. Do your own research. *
- Price
- 7
- Condition
- 8
- Location
- 7
- Land
- 9
- Bedrooms
- 5
- Bathrooms
- 3
- Sqft (est)
- 3,823.00
The heatmap indicates the level of crime in the area. The color of the heatmap indicates the crime severity and recency.
Metrics Year-on-Year
- Average area value
- 471,111.00 £Increased by 12.11 %
- Est sale value
- 2,060,597.00 £Increased by 34.75 %
- Average area rental value
- 1,283.00 £/moDecreased by 19.91 %
- Est letting value
- 3,823.00 £/moUnchanged by 0.00 %
- Est rental Yield
- 3.27 %Decreased by 28.45 %
- Crime Rate
- 0.00 %
Agent Activity
The Agency UK created the listing.
Nearby Schools
| Name | Type | Ofsted | Distance |
|---|---|---|---|
| Oakfield Primary School | Academy Sponsor Led | 0.49 KM | |
| Testwood School | Academy Converter | Good | 0.82 KM |
| Abbotswood Junior School | Foundation School | Good | 1.15 KM |
| Lydlynch Infant School | Community School | Good | 1.17 KM |
| Forest Park School | Community Special School | Good | 1.27 KM |
Images
Nearby Streets
| Name | Average Price | Average Sqft | Distance |
|---|---|---|---|
| Sutton Road | £ 275,000 | 0 | 0.00 KM |
| Charnwood Close | £ 0 | 0 | 0.00 KM |
| Russell Place | £ 350,000 | 0 | 0.00 KM |
| Eddystone Road | £ 0 | 0 | 0.00 KM |
| Hurst Close | £ 360,000 | 0 | 0.00 KM |
Nearby Transport
| Name | NLC | TLC | Distance |
|---|---|---|---|
| Totton | 5921 | TTN | 2.21 KM |
| Redbridge | 5912 | RDB | 3.35 KM |
| Ashurst New Forest | 5906 | ANF | 5.28 KM |
| Romsey | 5943 | ROM | 7.14 KM |
| Millbrook (Hants) | 5909 | MBK | 7.47 KM |
Nearby Listings
| Address | Price | Type | Score | Distance |
|---|---|---|---|---|
| Totton | £ 625,000 | BUY | 7 / 10 | 0.04 KM |
| Huntingdon Close, Totton, SO40 | £ 350,000 | BUY | Unknown | 0.08 KM |
| Huntingdon Close, Totton, Southampton, Hampshire, SO40 | £ 400,000 | BUY | 8 / 10 | 0.09 KM |
| Salisbury Road, Totton, SOUTHAMPTON | £ 330,000 | BUY | 7 / 10 | 0.19 KM |
| Hamtun Gardens, Totton, Hampshire | £ 425,000 | BUY | 7 / 10 | 0.19 KM |
Nearby Properties
| Address | Price | Distance |
|---|---|---|
| 4 Testwood Avenue | £ 198,000 | 0.09 KM |
| 12 Testwood Avenue | £ 390,000 | 0.09 KM |
| 3 Testwood Avenue | £ 319,950 | 0.09 KM |
| 2 Testwood Avenue | £ 425,000 | 0.09 KM |
| 8 Testwood Avenue | £ 245,000 | 0.09 KM |