Windmill Crescent, Skelmanthorpe, HD8 9EL
By Paisley Properties
£ 245,000
Reviews
3 out of 5 stars
Paisley Properties says ..
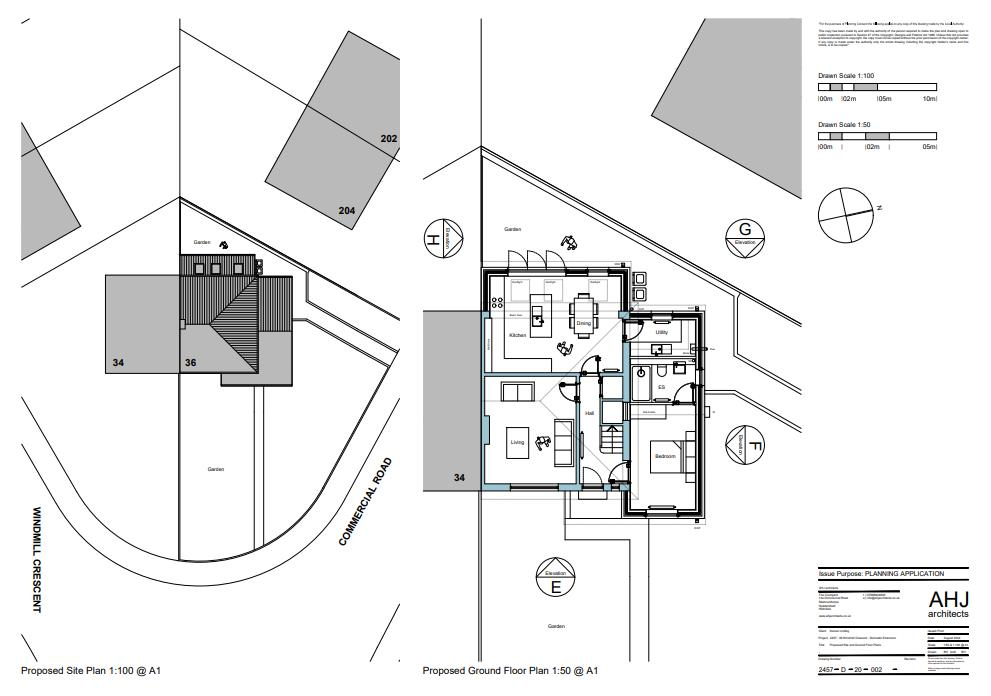
Occupying a generous corner plot being set back from the roadside is this well presented semi detached property affording ideal accommodation for the first time buyer or young family. Having outline planning permission for a wrap around single storey extension. The current accommodation briefly c...
Property Oracle says ..
This semi-detached property is located in Skelmanthorpe, West Yorkshire. It features three bedrooms and one bathroom. The property is situated near local schools and transport links. The internal condition is generally well-maintained, with a modern bathroom. It benefits from a generously sized garden with a patio and shed. The asking price of £245,000 appears reasonable compared to nearby listings.
Therefore, we give this property 7 / 10. *Disclaimer: This is our option and does constitute a recommendation or financial advice. Do your own research. *
- Price
- 8
- Condition
- 7
- Location
- 7
- Land
- 8
- Bedrooms
- 3
- Bathrooms
- 1
The heatmap indicates the level of crime in the area. The color of the heatmap indicates the crime severity and recency.
Metrics Year-on-Year
- Average area value
- 319,163.00 £Decreased by 2.78 %
- Average area rental value
- 1,450.00 £/moIncreased by 78.79 %
- Est rental Yield
- 5.45 %Increased by 84.12 %
- Crime Rate
- 15.00 %Unchanged by 0.00 %
Agent Activity
Paisley Properties created the listing.
Nearby Schools
| Name | Type | Ofsted | Distance |
|---|---|---|---|
| Skelmanthorpe Academy | Academy Converter | Good | 0.81 KM |
| Joseph Norton Academy | Academy Special Converter | Good | 1.08 KM |
| St Aidan'S Church Of England Academy | Academy Converter | Good | 1.25 KM |
| Scissett Middle School | Academy Converter | Good | 1.28 KM |
| Scissett Church Of England Academy | Academy Converter | 1.63 KM |
Images
Nearby Streets
| Name | Average Price | Average Sqft | Distance |
|---|---|---|---|
| Woodlands Drive | £ 0 | 0 | 0.00 KM |
| Kings Court | £ 0 | 0 | 0.00 KM |
| Marsden Street | £ 180,000 | 0 | 0.00 KM |
| Stubbin Lane | £ 0 | 0 | 0.00 KM |
| Whistle Bell Court | £ 0 | 0 | 0.00 KM |
Nearby Transport
| Name | NLC | TLC | Distance |
|---|---|---|---|
| Denby Dale | 8432 | DBD | 3.15 KM |
| Shepley | 8448 | SPY | 7.21 KM |
| Penistone | 6634 | PNS | 7.27 KM |
| Stocksmoor | 8451 | SSM | 9.26 KM |
| Ravensthorpe | 8519 | RVN | 9.82 KM |
Nearby Listings
| Address | Price | Type | Score | Distance |
|---|---|---|---|---|
| Windmill Crescent, Skelmanthorpe, HD8 9EL | £ 245,000 | BUY | 7 / 10 | 0.00 KM |
| Windmill Crescent, Skelmanthorpe, Huddersfield, HD8 | £ 220,000 | BUY | 6 / 10 | 0.09 KM |
| Pickles Lane, Skelmanthorpe, Huddersfield, HD8 | £ 280,000 | BUY | Unknown | 0.30 KM |
| New Lane, Skelmanthorpe, HD8 9EH | £ 550,000 | BUY | 7 / 10 | 0.33 KM |
| Commercial Road, Skelmanthorpe | £ 225,000 | BUY | Unknown | 0.47 KM |
Nearby Properties
| Address | Price | Distance |
|---|---|---|
| 13 Windmill Crescent | £ 270,000 | 0.10 KM |
| 31 Windmill Crescent | £ 150,000 | 0.10 KM |
| 14 Windmill Crescent | £ 185,000 | 0.10 KM |
| 5 Windmill Crescent | £ 90,000 | 0.10 KM |
| 10 Windmill Crescent | £ 255,900 | 0.10 KM |