Flat 1, 55 Etchingham Park Road, Finchley, N3 2EB
By McHugh & Co
£ 220,000
Reviews
3 out of 5 stars
McHugh & Co says ..
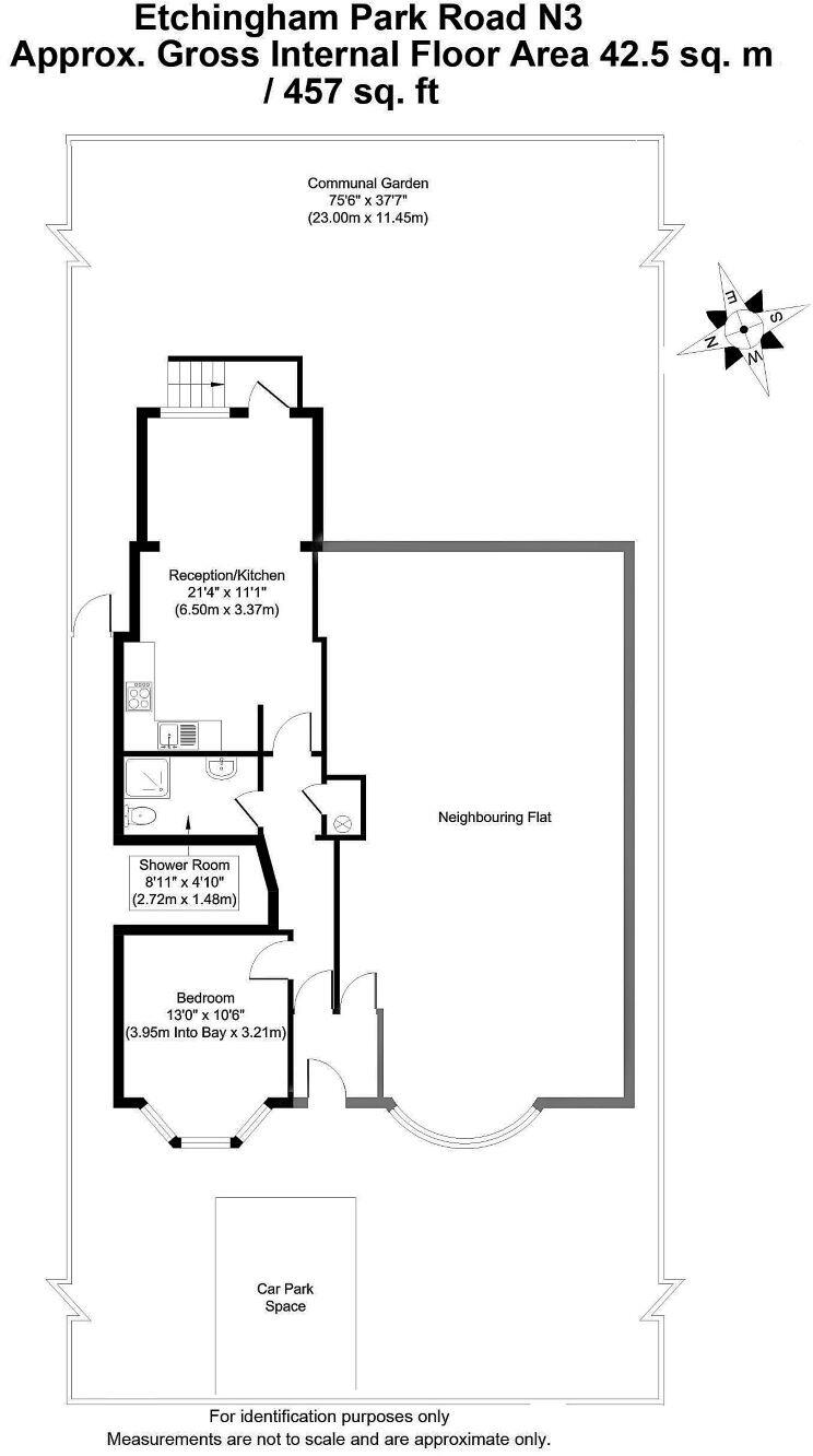
LOT 20C **FOR SALE BY ONLINE AUCTION** on 22nd October 2025 In Same Ownership for Approximately 38 Years Leasehold Flat Vacant Possession
Property Oracle says ..
This is a one-bedroom flat in Finchley, London. The property benefits from a garden, which is a significant advantage. While the property appears to need some modernisation, it is priced competitively. The location is desirable due to its proximity to schools and transport links. Overall, this property presents a good opportunity for first-time buyers or investors willing to undertake some renovation work.
Therefore, we give this property 6 / 10. *Disclaimer: This is our option and does constitute a recommendation or financial advice. Do your own research. *
- Price
- 8
- Condition
- 5
- Location
- 7
- Land
- 7
- Bedrooms
- 1
- Bathrooms
- 0
- Sqft (est)
- 412.51
The heatmap indicates the level of crime in the area. The color of the heatmap indicates the crime severity and recency.
Metrics Year-on-Year
- Average area value
- 461,429.00 £Increased by 13.94 %
- Est sale value
- 227,705.52 £Increased by 13.58 %
- Average area rental value
- 1,822.00 £/moIncreased by 0.77 %
- Est letting value
- 825.02 £/moUnchanged by 0.00 %
- Est rental Yield
- 4.74 %Decreased by 11.57 %
- Crime Rate
- 2.00 %Unchanged by 0.00 %
Agent Activity
McHugh & Co created the listing.
Nearby Schools
| Name | Type | Ofsted | Distance |
|---|---|---|---|
| Manorside Primary School | Community School | Outstanding | 0.49 KM |
| Moss Hall Infant School | Community School | Outstanding | 0.67 KM |
| Moss Hall Junior School | Community School | Requires improvement | 0.67 KM |
| Our Lady Of Lourdes Rc School | Voluntary Aided School | Outstanding | 0.74 KM |
| Tudor Primary School | Community School | Good | 0.75 KM |
Images
Nearby Streets
| Name | Average Price | Average Sqft | Distance |
|---|---|---|---|
| Finchley Court | £ 0 | 0 | 0.00 KM |
| Cromwell Road | £ 0 | 0 | 0.00 KM |
| Heatherdene Close | £ 0 | 0 | 0.00 KM |
| Adams Close | £ 550,000 | 0 | 0.00 KM |
| Primrose Close | £ 0 | 0 | 0.00 KM |
Nearby Transport
| Name | NLC | TLC | Distance |
|---|---|---|---|
| Oakleigh Park | 6020 | OKL | 4.06 KM |
| New Southgate | 6019 | NSG | 4.48 KM |
| New Barnet | 6018 | NBA | 4.97 KM |
| Hampstead Heath | 1413 | HDH | 5.84 KM |
| Finchley Road And Frognal | 1445 | FNY | 6.09 KM |
Nearby Listings
| Address | Price | Type | Score | Distance |
|---|---|---|---|---|
| Flat 1, 55 Etchingham Park Road, Finchley, N3 2EB | £ 220,000 | BUY | 6 / 10 | 0.00 KM |
| ETCHINGHAM PARK ROAD, FINCHLEY, N3 | £ 330,000 | BUY | 8 / 10 | 0.02 KM |
| Etchingham Park Road, London, N3 | £ 440,000 | BUY | 5 / 10 | 0.10 KM |
| Etchingham Park Road, London, N3 | £ 400,000 | BUY | 7 / 10 | 0.10 KM |
| Holdenhurst Avenue, North Finchley, N12 | £ 300,000 | BUY | 5 / 10 | 0.13 KM |
Nearby Properties
| Address | Price | Distance |
|---|---|---|
| 97 Etchingham Park Road | £ 1,650,000 | 0.14 KM |
| 77 Etchingham Park Road | £ 932,500 | 0.14 KM |
| 91 Etchingham Park Road | £ 970,000 | 0.14 KM |
| 89 Etchingham Park Road | £ 769,500 | 0.14 KM |
| 71 Etchingham Park Road | £ 1,405,000 | 0.14 KM |