Walker & Waterer says ..
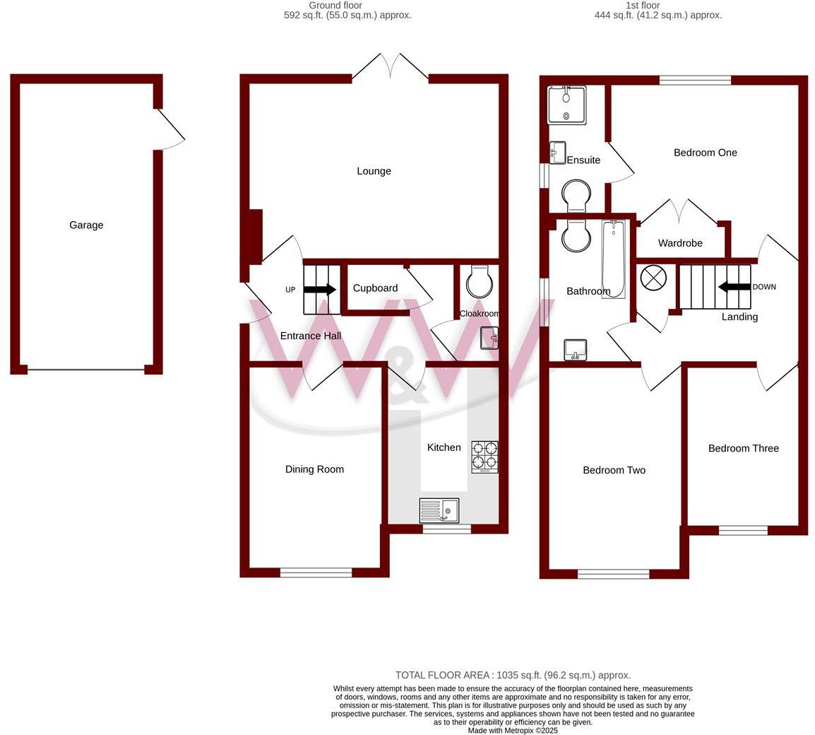
W&W are pleased to offer for sale this three bedroom semi detached family home. The property boasts three bedrooms, lounge, kitchen, dining room, downstairs cloakroom, en-suite shower room & main bathroom. The property also benefits from a rear garden, garage & driveway parking. 'Caraw...
Property Oracle says ..
Therefore, we give this property 7 / 10. *Disclaimer: This is our option and does constitute a recommendation or financial advice. Do your own research. *
- Price
- 8
- Condition
- 8
- Location
- 7
- Land
- 7
- Bedrooms
- 3
- Bathrooms
- 2
- Sqft (est)
- 1,035.00
The heatmap indicates the level of crime in the area. The color of the heatmap indicates the crime severity and recency.
Metrics Year-on-Year
- Average area value
- 722,857.00 £Increased by 68.73 %
- Est sale value
- 643,770.00 £Increased by 82.94 %
- Average area rental value
- 1,615.00 £/moIncreased by 39.10 %
- Est letting value
- 1,035.00 £/mo
- Est rental Yield
- 2.68 %Decreased by 17.54 %
- Crime Rate
- 26.00 %Unchanged by 0.00 %
from 428,422.00 £
from 351,900.00 £
from 1,161.00 £/mo
from 0.00 £/mo
from 3.25 %
from 26.00 %
Agent Activity
Walker & Waterer marked this listing as sold.
Walker & Waterer created the listing.
Nearby Schools
| Name | Type | Ofsted | Distance |
|---|---|---|---|
| Whiteley Primary School | Community School | Outstanding | 0.91 KM |
| Cornerstone Cofe (Va) Primary School | Voluntary Aided School | Good | 1.21 KM |
| Park Gate Primary School | Community School | Good | 2.34 KM |
| St Anthony'S Catholic Primary School | Academy Converter | Good | 2.84 KM |
| St John The Baptist Church Of England Primary School | Voluntary Controlled School | Good | 2.96 KM |
Images
Nearby Streets
| Name | Average Price | Average Sqft | Distance |
|---|---|---|---|
| Yew Tree Drive | £ 0 | 0 | 0.00 KM |
| The Spinney | £ 676,000 | 0 | 0.00 KM |
| Parkway South Spur | £ 0 | 0 | 0.00 KM |
| Lapwing Way | £ 0 | 0 | 0.00 KM |
| Cuckoo Road | £ 0 | 0 | 0.00 KM |
Nearby Transport
| Name | NLC | TLC | Distance |
|---|---|---|---|
| Swanwick | 5920 | SNW | 1.93 KM |
| Botley | 5894 | BOE | 4.06 KM |
| Bursledon | 5927 | BUO | 6.16 KM |
| Fareham | 5900 | FRM | 7.08 KM |
| Hedge End | 5893 | HDE | 7.56 KM |
Nearby Listings
| Address | Price | Type | Score | Distance |
|---|---|---|---|---|
| Caraway, Whiteley | £ 300,000 | BUY | 7 / 10 | 0.00 KM |
| Sorrel Drive, Whiteley | £ 300,000 | BUY | 7 / 10 | 0.01 KM |
| Caraway, Whiteley | £ 400,000 | BUY | Unknown | 0.06 KM |
| Caraway, Whiteley | £ 210,000 | BUY | 6 / 10 | 0.07 KM |
| Coppice View, Caraway, Whiteley | £ 210,000 | BUY | Unknown | 0.07 KM |
Nearby Properties
| Address | Price | Distance |
|---|---|---|
| 5 Caraway | £ 205,000 | 0.04 KM |
| 25 Caraway | £ 161,000 | 0.04 KM |
| 26 Caraway | £ 250,000 | 0.04 KM |
| 18 Caraway | £ 360,000 | 0.04 KM |
| 17 Caraway | £ 390,000 | 0.04 KM |