Angelica Court, Bingham, Nottingham
By HAMMOND Property Services
£ 350,000
Reviews
3 out of 5 stars
HAMMOND Property Services says ..
“OPTION 3 SCHEME” - THIS PROPERTY IS BEING SOLD THROUGH OUR VERY SUCCESSFUL ‘‘OPTION 3 SCHEME’’. For further details of this scheme and how it may affect your potential purchase, please contact any of our sales team on prior to arranging your viewing to avoid any misunderstanding.<...
Property Oracle says ..
Therefore, we give this property 7 / 10. *Disclaimer: This is our option and does constitute a recommendation or financial advice. Do your own research. *
- Price
- 7
- Condition
- 8
- Location
- 8
- Land
- 7
- Bedrooms
- 3
- Bathrooms
- 2
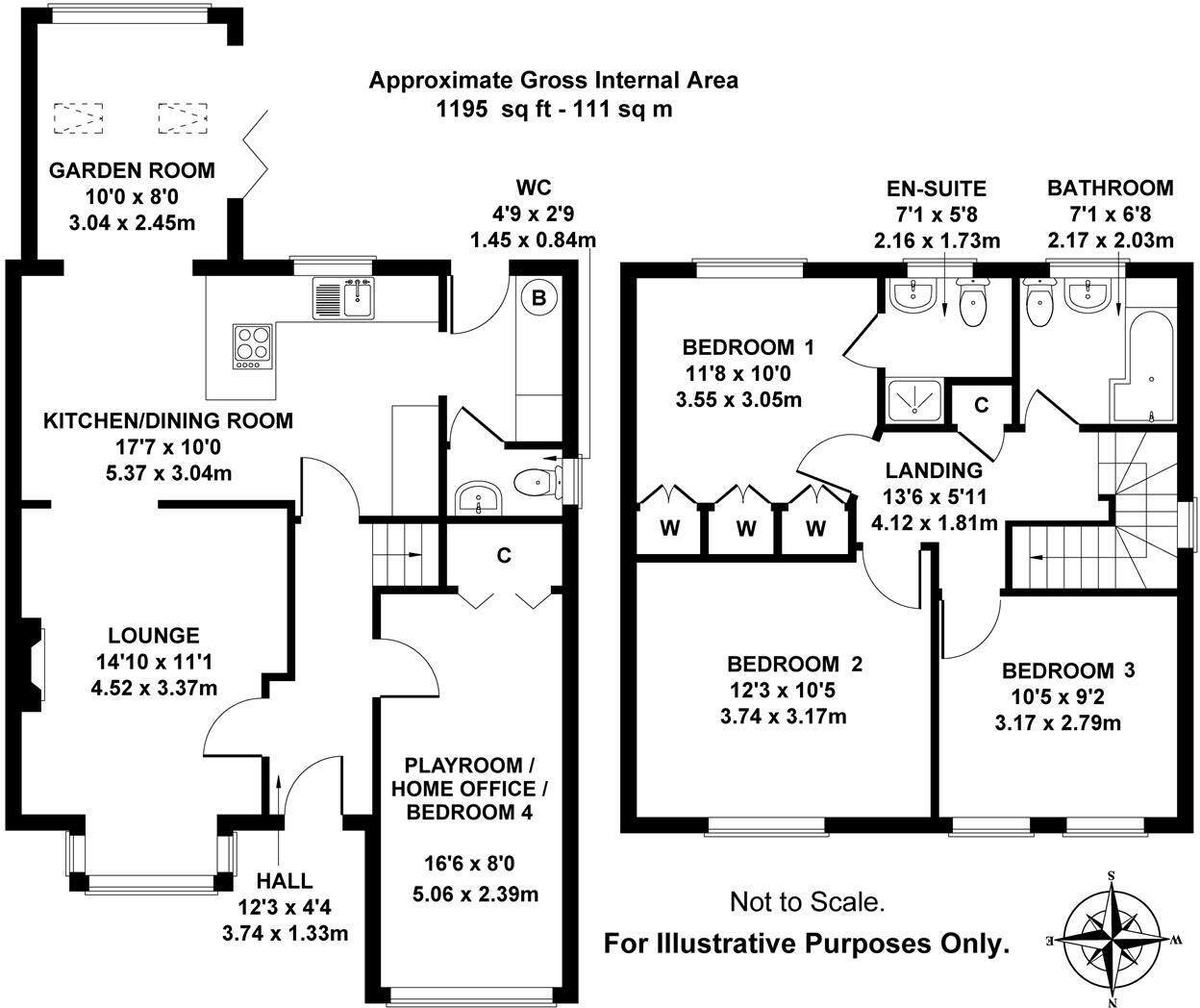
- Sqft (est)
- 1,124.29
The heatmap indicates the level of crime in the area. The color of the heatmap indicates the crime severity and recency.
Metrics Year-on-Year
- Average area value
- 307,772.00 £Increased by 19.74 %
- Est sale value
- 588,003.67 £Increased by 90.88 %
- Average area rental value
- 871.00 £/moDecreased by 8.32 %
- Est letting value
- 1,124.29 £/moUnchanged by 0.00 %
- Est rental Yield
- 3.40 %Decreased by 23.42 %
- Crime Rate
- 37.00 %Unchanged by 0.00 %
from 257,040.00 £
from 308,055.46 £
from 950.00 £/mo
from 1,124.29 £/mo
from 4.44 %
from 37.00 %
Agent Activity
HAMMOND Property Services marked this listing as sold.
HAMMOND Property Services created the listing.
Nearby Schools
| Name | Type | Ofsted | Distance |
|---|---|---|---|
| Robert Miles Infant School | Academy Converter | 1.72 KM | |
| Cotgrave Children'S Centre | Children's Centre | 2.00 KM | |
| Toot Hill School | Academy Converter | Outstanding | 2.01 KM |
| Bingham Children'S Centre | Children's Centre | 2.05 KM | |
| Robert Miles Junior School | Academy Converter | Good | 2.35 KM |
Images
Nearby Streets
| Name | Average Price | Average Sqft | Distance |
|---|---|---|---|
| A52 | £ 0 | 0 | 0.00 KM |
| Margaret Place | £ 259,950 | 0 | 0.00 KM |
| Edinburgh Drive | £ 0 | 0 | 0.00 KM |
| Bingham Linear Park | £ 0 | 0 | 0.00 KM |
| Orchard Avenue | £ 0 | 0 | 0.00 KM |
Nearby Transport
| Name | NLC | TLC | Distance |
|---|---|---|---|
| Bingham | 6235 | BIN | 2.37 KM |
| Lowdham | 6202 | LOW | 7.00 KM |
| Radcliffe (Nottinghamshire) | 6242 | RDF | 7.19 KM |
| Aslockton | 6233 | ALK | 8.21 KM |
| Burton Joyce | 6200 | BUJ | 8.49 KM |
Nearby Listings
| Address | Price | Type | Score | Distance |
|---|---|---|---|---|
| Angelica Court, Bingham, Nottingham | £ 350,000 | BUY | 7 / 10 | 0.00 KM |
| Harebell Gardens, Bingham, Nottingham, Nottinghamshire, NG13 | £ 240,000 | BUY | 7 / 10 | 0.13 KM |
| Harebell Gardens, Bingham, Nottingham, Nottinghamshire, NG13 | £ 200,000 | BUY | 7 / 10 | 0.13 KM |
| Glendoe Grove, Bingham, Nottingham | £ 269,950 | BUY | 6 / 10 | 0.14 KM |
| Glendoe Grove, Bingham, Nottingham | £ 249,995 | BUY | 7 / 10 | 0.14 KM |
Nearby Properties
| Address | Price | Distance |
|---|---|---|
| 11 Angelica Court | £ 325,000 | 0.01 KM |
| 9 Angelica Court | £ 368,500 | 0.01 KM |
| 1 Angelica Court | £ 168,000 | 0.01 KM |
| 6 Angelica Court | £ 261,000 | 0.01 KM |
| 12 Angelica Court | £ 430,000 | 0.01 KM |