Haygreen Crescent, Castle Hill, Ebbsfleet Valley, Swanscombe, DA10
By Robinson Jackson
£ 375,000
Reviews
3 out of 5 stars
Robinson Jackson says ..
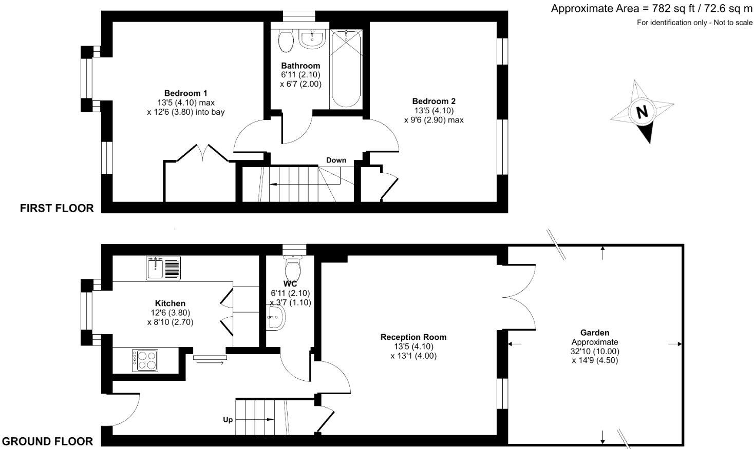
Robinson-Jackson are delighted to offer a smartly-presented END TERRACE property on Haygreen Crescent on Castle Hill, Ebbsfleet. The property offers a kitchen with bay window, a naturally-lit cloakroom/WC and a spacious reception/dining room. Patio doors open onto an attract...
Property Oracle says ..
The property is a 2 bedroom end of terrace house located in Ebbsfleet, Kent. It has a list price of £375,000 and is 1,120.33 sqft with a 782 sqft plot size. The property appears to be in excellent condition. The images show a modern, well-maintained interior and exterior. The kitchen and bathrooms are contemporary and there is no visible evidence of wear and tear or the need for renovation. The property benefits from a relatively small but well-maintained rear garden. The space is paved, making it low maintenance, and has space for outdoor seating. Considering the average house price in the area is £869,722 and the average price per sqft is £634, the list price of £375,000 for this 1,120.33 sqft property seems reasonable, especially given its modern condition and the included garden. However, it is worth noting that there are nearby properties with significantly lower prices, although these may differ in size, condition, and features. The lack of sqft data for nearby properties makes a precise comparison difficult. The property’s location near transportation links and schools is a positive factor.
Therefore, we give this property 7 / 10. *Disclaimer: This is our option and does constitute a recommendation or financial advice. Do your own research. *
- Price
- 7
- Condition
- 10
- Location
- 7
- Land
- 6
- Bedrooms
- 2
- Bathrooms
- 1
- Sqft (est)
- 1,120.33
- Lot (est)
- 782.00
The heatmap indicates the level of crime in the area. The color of the heatmap indicates the crime severity and recency.
Metrics Year-on-Year
- Average area value
- 333,285.00 £Decreased by 9.11 %
- Est sale value
- 431,327.05 £Decreased by 16.12 %
- Average area rental value
- 1,531.00 £/moDecreased by 16.61 %
- Est letting value
- 1,120.33 £/moDecreased by 50.00 %
- Est rental Yield
- 5.51 %Decreased by 8.32 %
- Crime Rate
- 0.00 %
Agent Activity
Robinson Jackson created the listing.
Nearby Schools
| Name | Type | Ofsted | Distance |
|---|---|---|---|
| Cherry Orchard Primary Academy | Academy Sponsor Led | 0.43 KM | |
| Swanscombe Children'S Centre | Children's Centre | 1.17 KM | |
| Manor Community Primary School | Academy Converter | Good | 1.17 KM |
| The Craylands School | Community School | Good | 1.19 KM |
| The Ebbsfleet Academy | Academy Sponsor Led | Good | 1.46 KM |
Images
Nearby Streets
| Name | Average Price | Average Sqft | Distance |
|---|---|---|---|
| Haygreen Crescent | £ 0 | 0 | 0.00 KM |
| Inkpen Lane | £ 185,000 | 0 | 0.00 KM |
| Bodycomb Street | £ 0 | 0 | 0.00 KM |
| Mackerness Road | £ 0 | 0 | 0.00 KM |
| Kember Close | £ 0 | 0 | 0.00 KM |
Nearby Transport
| Name | NLC | TLC | Distance |
|---|---|---|---|
| Swanscombe | 5156 | SWM | 1.76 KM |
| Ebbsfleet International | 5566 | EBD | 2.36 KM |
| Greenhithe For Bluewater | 5138 | GNH | 2.79 KM |
| Northfleet | 5120 | NFL | 2.83 KM |
| Longfield | 5114 | LGF | 4.42 KM |
Nearby Listings
| Address | Price | Type | Score | Distance |
|---|---|---|---|---|
| Haygreen Crescent, Castle Hill, Ebbsfleet Valley, Swanscombe, DA10 | £ 285,000 | BUY | Unknown | 0.00 KM |
| Haygreen Crescent, Castle Hill, Ebbsfleet Valley, Swanscombe, DA10 | £ 375,000 | BUY | 7 / 10 | 0.00 KM |
| Haygreen Crescent, Ebbsfleet Valley, Swanscombe, DA10 | £ 375,000 | BUY | 6 / 10 | 0.04 KM |
| Haygreen Crescent, Ebbsfleet Valley, Swanscombe, DA10 | £ 171,600 | BUY | 7 / 10 | 0.04 KM |
| Bodycomb Street, Ebbsfleet Valley, Swanscombe, DA10 | £ 352,500 | BUY | 6 / 10 | 0.10 KM |
Nearby Properties
| Address | Price | Distance |
|---|---|---|
| 19 Durrant Way | £ 341,000 | 0.57 KM |
| 11 Durrant Way | £ 190,000 | 0.57 KM |
| 23 Durrant Way | £ 243,000 | 0.57 KM |
| 20 Durrant Way | £ 276,000 | 0.57 KM |
| 10 Durrant Way | £ 87,800 | 0.57 KM |