HE
Cross Park Way, Plymouth
By Helen Moore, Powered by eXp UK
£ 425,000
Reviews
3 out of 5 stars
Helen Moore, Powered by eXp UK says ..
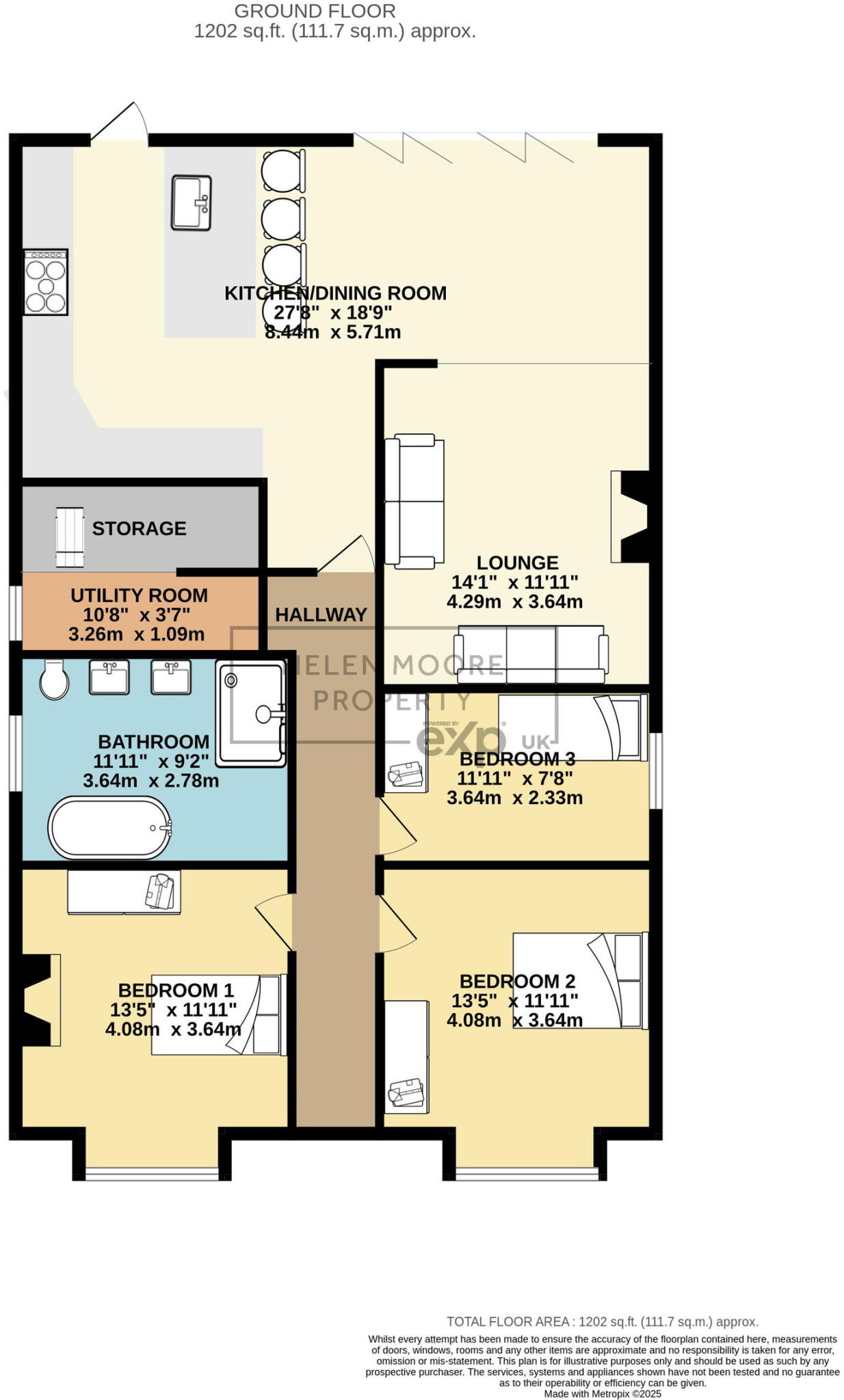
This extended 1930’s style detached bungalow, situated close to Crownhill, offers spacious and versatile living with huge potential to develop further. The property features three well-proportioned bedrooms, a stunning family bathroom with freestanding bath and double walk-in shower, and...
Property Oracle says ..
Therefore, we give this property 7 / 10. *Disclaimer: This is our option and does constitute a recommendation or financial advice. Do your own research. *
- Price
- 7
- Condition
- 7
- Location
- 7
- Land
- 7
- Bedrooms
- 3
- Bathrooms
- 1
- Sqft (est)
- 1,255.10
The heatmap indicates the level of crime in the area. The color of the heatmap indicates the crime severity and recency.
Metrics Year-on-Year
- Average area value
- 251,250.00 £Decreased by 14.94 %
- Est sale value
- 372,764.70 £Decreased by 1.33 %
- Average area rental value
- 1,138.00 £/moIncreased by 4.88 %
- Est letting value
- 1,255.10 £/moUnchanged by 0.00 %
- Est rental Yield
- 5.44 %Increased by 23.36 %
- Crime Rate
- 3.00 %Unchanged by 0.00 %
from 295,390.00 £
from 377,785.10 £
from 1,085.00 £/mo
from 1,255.10 £/mo
from 4.41 %
from 3.00 %
Agent Activity
Helen Moore, Powered by eXp UK created the listing.
Nearby Schools
| Name | Type | Ofsted | Distance |
|---|---|---|---|
| Widey Court Primary School | Academy Converter | Good | 0.39 KM |
| St Boniface'S Rc College | Academy Sponsor Led | Requires improvement | 0.47 KM |
| Courtlands School | Academy Special Converter | Good | 0.59 KM |
| Manadon Vale Primary School | Academy Converter | Good | 0.68 KM |
| Eggbuckland Community College | Academy Converter | Requires improvement | 1.13 KM |
Images
Nearby Streets
| Name | Average Price | Average Sqft | Distance |
|---|---|---|---|
| St Joseph's Close | £ 360,000 | 0 | 0.00 KM |
| Fort Austin Avenue | £ 0 | 0 | 0.00 KM |
| Tailyour Road | £ 200,000 | 0 | 0.00 KM |
| Grosvenor Road | £ 310,000 | 0 | 0.00 KM |
| Leighton Road | £ 0 | 0 | 0.00 KM |
Nearby Transport
| Name | NLC | TLC | Distance |
|---|---|---|---|
| Plymouth | 3580 | PLY | 3.36 KM |
| Devonport | 3579 | DPT | 5.27 KM |
| Dockyard (Devonport) | 3588 | DOC | 5.55 KM |
| Keyham | 3571 | KEY | 5.58 KM |
| St Budeaux Ferry Road | 3590 | SBF | 6.12 KM |
Nearby Listings
| Address | Price | Type | Score | Distance |
|---|---|---|---|---|
| Cross Park Way, Plymouth | £ 425,000 | BUY | 7 / 10 | 0.00 KM |
| Cross Park Way, Plymouth | £ 415,000 | BUY | 6 / 10 | 0.00 KM |
| Cross Park Way, Plymouth | £ 415,000 | BUY | 6 / 10 | 0.00 KM |
| Crownhill, Plymouth | £ 300,000 | BUY | 6 / 10 | 0.01 KM |
| Cross Park Road, Crownhill | £ 375,000 | BUY | 7 / 10 | 0.10 KM |
Nearby Properties
| Address | Price | Distance |
|---|---|---|
| 38 Cross Park Way | £ 363,000 | 0.01 KM |
| 13 Cross Park Way | £ 182,000 | 0.01 KM |
| 28 Cross Park Way | £ 169,950 | 0.01 KM |
| 15 Cross Park Way | £ 194,000 | 0.01 KM |
| 34 Cross Park Way | £ 252,000 | 0.01 KM |