Grays Court, Farndon, Newark
By Richard Watkinson & Partners
£ 850,000
Reviews
3 out of 5 stars
Richard Watkinson & Partners says ..
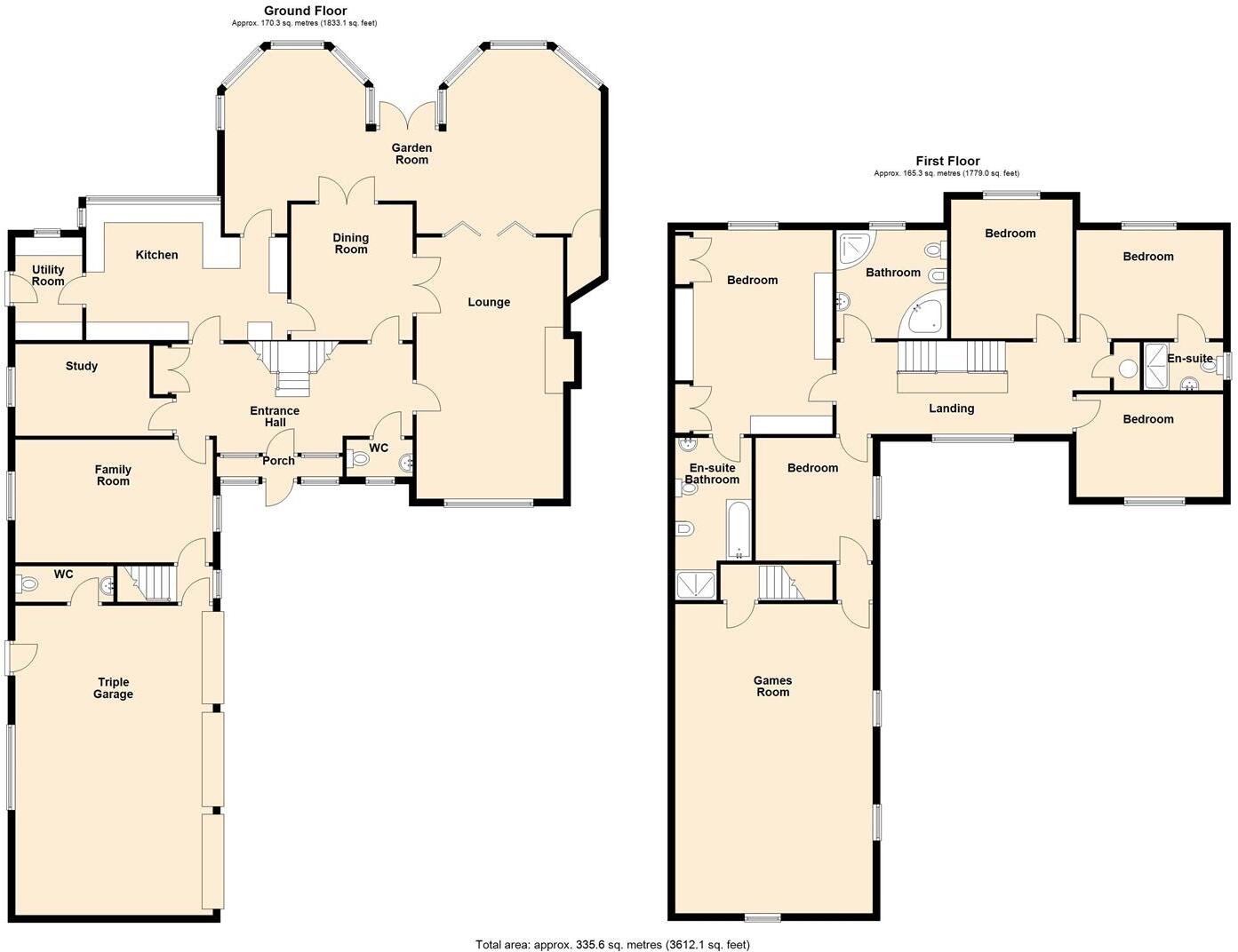
Exceptionally spacious and well planned Hampton Lodge provides five bedroomed accommodation, triple garage, games room, spacious family sized living accommodation including kitchen, lounge, breakfast room, sitting room, dining room and study. Master and guest bedrooms are en suite. The games roo...
Property Oracle says ..
The property is situated in a convenient location with good access to schools and transport. The house itself is presented well and has a large garden. The list price is considerably higher than the average for the area, however, further information regarding the property’s size would be needed to provide a conclusive opinion on value.
Therefore, we give this property 6 / 10. *Disclaimer: This is our option and does constitute a recommendation or financial advice. Do your own research. *
- Price
- 4
- Condition
- 8
- Location
- 7
- Land
- 7
- Bedrooms
- 5
- Bathrooms
- 3
- Sqft (est)
- 2,411.12
- Lot (est)
- 3,612.37
The heatmap indicates the level of crime in the area. The color of the heatmap indicates the crime severity and recency.
Metrics Year-on-Year
- Average area value
- 323,281.00 £Increased by 6.31 %
- Est sale value
- 773,969.52 £Increased by 25.88 %
- Average area rental value
- 1,242.00 £/moIncreased by 19.54 %
- Est letting value
- 2,411.12 £/mo
- Est rental Yield
- 4.61 %Increased by 12.44 %
- Crime Rate
- 53.00 %Unchanged by 0.00 %
Agent Activity
Richard Watkinson & Partners created the listing.
Nearby Schools
| Name | Type | Ofsted | Distance |
|---|---|---|---|
| St Peter'S Crosskeys Cofe Academy | Academy Converter | Good | 0.83 KM |
| Holy Trinity Catholic Voluntary Academy | Academy Converter | Good | 4.12 KM |
| All Saints Anglican/Methodist Primary School | Voluntary Aided School | Good | 4.23 KM |
| Christ Church C Of E Primary School | Voluntary Aided School | Requires improvement | 4.27 KM |
| The Sir Donald Bailey Academy | Academy Converter | Good | 4.82 KM |
Images
Nearby Streets
| Name | Average Price | Average Sqft | Distance |
|---|---|---|---|
| Chestnut Grove | £ 0 | 0 | 0.00 KM |
| Fell Croft | £ 0 | 0 | 0.00 KM |
| Cross Lane | £ 425,000 | 0 | 0.00 KM |
| Thorpe Lane | £ 0 | 0 | 0.00 KM |
| Honeys Lane | £ 0 | 0 | 0.00 KM |
Nearby Transport
| Name | NLC | TLC | Distance |
|---|---|---|---|
| Newark Castle | 6498 | NCT | 4.91 KM |
| Rolleston | 6353 | ROL | 5.41 KM |
| Newark North Gate | 6499 | NNG | 6.30 KM |
| Fiskerton | 6351 | FSK | 6.73 KM |
Nearby Listings
| Address | Price | Type | Score | Distance |
|---|---|---|---|---|
| Grays Court, Farndon, Newark | £ 850,000 | BUY | 6 / 10 | 0.00 KM |
| Grays Court, Farndon, Newark | £ 850,000 | BUY | 7 / 10 | 0.04 KM |
| Main Street, Newark, NG23 | £ 1,000,000 | BUY | Unknown | 0.04 KM |
| 9 Manor House | £ 389,950 | BUY | 7 / 10 | 0.13 KM |
| Chestnut Grove, Farndon | £ 250,000 | BUY | 7 / 10 | 0.15 KM |
Nearby Properties
| Address | Price | Distance |
|---|---|---|
| 1 Grays Court | £ 450,000 | 0.04 KM |
| 39 California Road | £ 180,000 | 0.10 KM |
| 7 California Road | £ 230,000 | 0.10 KM |
| 35 California Road | £ 125,000 | 0.10 KM |
| 15 California Road | £ 123,000 | 0.10 KM |