MI
Chancellor Drive, Frimley, Camberley, Surrey, GU16
By Michael Usher Sales and Lettings
£ 310,000
Reviews
3 out of 5 stars
Michael Usher Sales and Lettings says ..
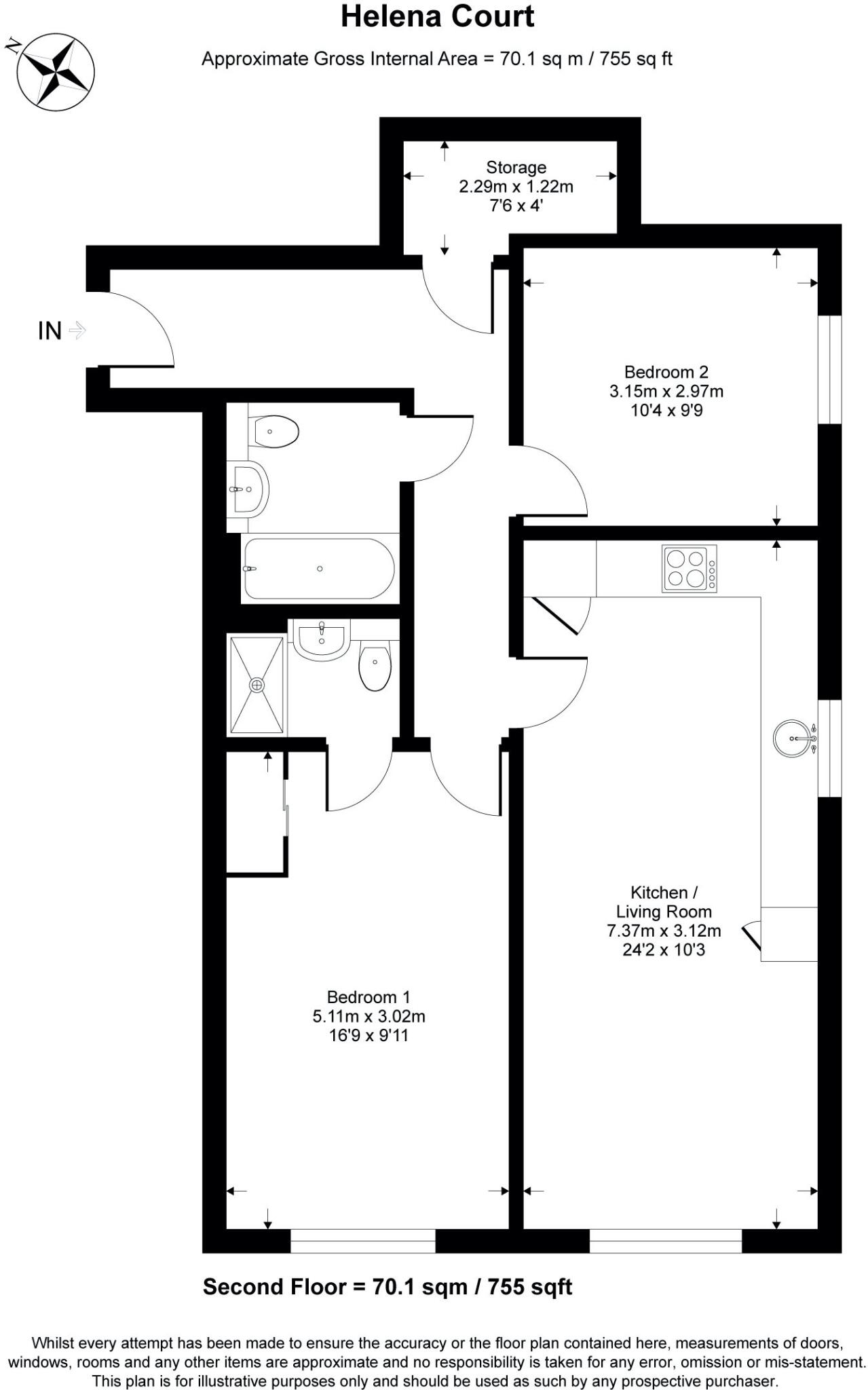
Michael Usher Sales - A stylish two double bedroom, two bathroom second-floor apartment, set within a modern development in the heart of Frimley town centre. Finished to a high standard throughout and meticulously maintained, the property features a 24ft bright open-plan kitchen/living area with ...
Property Oracle says ..
Therefore, we give this property 6 / 10. *Disclaimer: This is our option and does constitute a recommendation or financial advice. Do your own research. *
- Price
- 7
- Condition
- 8
- Location
- 7
- Land
- 3
- Bedrooms
- 2
- Bathrooms
- 2
- Sqft (est)
- 754.55
The heatmap indicates the level of crime in the area. The color of the heatmap indicates the crime severity and recency.
Metrics Year-on-Year
- Average area value
- 362,500.00 £Decreased by 23.04 %
- Est sale value
- 307,101.85 £Increased by 10.00 %
- Average area rental value
- 2,625.00 £/moIncreased by 52.17 %
- Est letting value
- 1,509.10 £/moIncreased by 100.00 %
- Est rental Yield
- 8.69 %Increased by 97.95 %
- Crime Rate
- 8.00 %Unchanged by 0.00 %
from 471,043.00 £
from 279,183.50 £
from 1,725.00 £/mo
from 754.55 £/mo
from 4.39 %
from 8.00 %
Agent Activity
Michael Usher Sales and Lettings created the listing.
Nearby Schools
| Name | Type | Ofsted | Distance |
|---|---|---|---|
| Kings International College | Foundation School | Good | 1.12 KM |
| Frimley Cofe Junior School | Academy Converter | 1.39 KM | |
| The Grove Primary Academy | Academy Converter | Good | 1.41 KM |
| South Camberley Primary And Nursery School | Academy Converter | 1.42 KM | |
| The Orchard Sure Start Children'S Centre | Children's Centre | 1.45 KM |
Images
Nearby Streets
| Name | Average Price | Average Sqft | Distance |
|---|---|---|---|
| Portsmouth Road | £ 562,500 | 0 | 0.00 KM |
| The Grove | £ 0 | 0 | 0.00 KM |
| Footpath 197 | £ 0 | 0 | 0.00 KM |
| Gilbert Road Footpath | £ 0 | 0 | 0.00 KM |
| Kirkby Court | £ 0 | 0 | 0.00 KM |
Nearby Transport
| Name | NLC | TLC | Distance |
|---|---|---|---|
| Frimley | 5683 | FML | 0.59 KM |
| Farnborough North | 5688 | FNN | 1.47 KM |
| Camberley | 5682 | CAM | 2.35 KM |
| Farnborough (Main) | 5521 | FNB | 2.51 KM |
| Blackwater | 5625 | BAW | 4.15 KM |
Nearby Listings
| Address | Price | Type | Score | Distance |
|---|---|---|---|---|
| Chancellor Drive, Frimley, Camberley, Surrey, GU16 | £ 310,000 | BUY | 6 / 10 | 0.00 KM |
| Chancellor Drive, Frimley, Camberley, Surrey, GU16 | £ 385,000 | BUY | 5 / 10 | 0.11 KM |
| Church Road, Frimley, Camberley, Surrey, GU16 | £ 250,000 | BUY | 5 / 10 | 0.15 KM |
| Church Road, Frimley, Camberley, Surrey, GU16 | £ 230,000 | BUY | 5 / 10 | 0.15 KM |
| The Cloisters, Frimley, Camberley | £ 400,000 | BUY | 6 / 10 | 0.17 KM |
Nearby Properties
| Address | Price | Distance |
|---|---|---|
| 17 Chancellor Drive | £ 410,000 | 0.06 KM |
| 13 Chancellor Drive | £ 415,000 | 0.06 KM |
| 28 Church Road | £ 214,950 | 0.19 KM |
| 40 Church Road | £ 210,000 | 0.19 KM |
| 32 Church Road | £ 69,200 | 0.19 KM |