Pond Lane, Hermitage, Thatcham, Berkshire, RG18
By Jones Robinson Estate Agents
£ 575,000
Reviews
3 out of 5 stars
Jones Robinson Estate Agents says ..
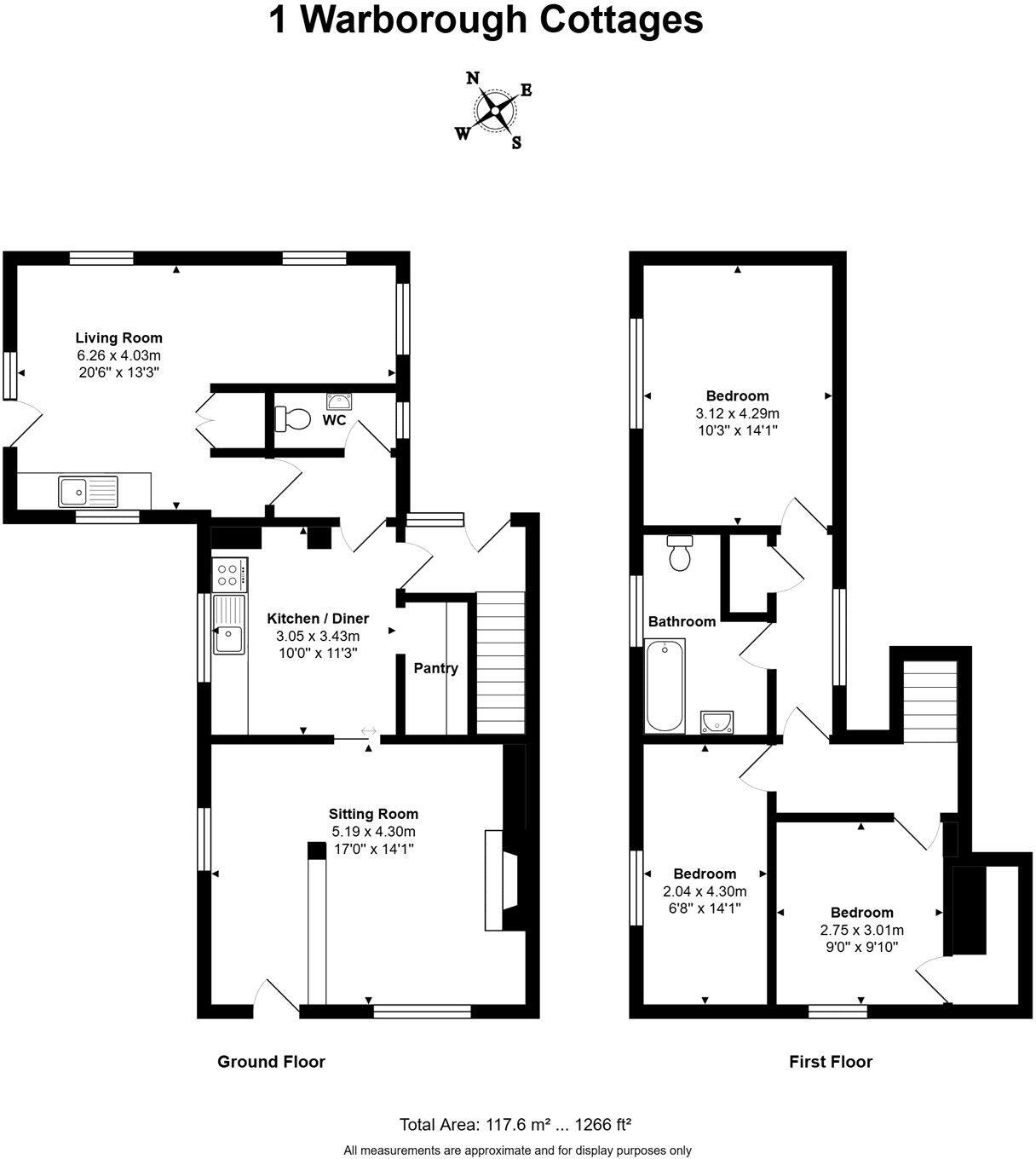
**Virtual Tour Available** **NO ONWARD CHAIN** A fabulous opportunity to acquire a PERIOD COTTAGE, once home to D. H. Lawrence, set in a peaceful location within the village of Hermitage, enjoying a GENEROUS PLOT with potential to extend (STPP).
Property Oracle says ..
This is a three-bedroom semi-detached house in the village of Hermitage, Berkshire. The property is in a desirable location, close to local schools and amenities. While the house requires modernisation, it offers a good-sized garden. The asking price of £575,000 appears reasonable, considering the location and the potential to add value through renovation.
Therefore, we give this property 6 / 10. *Disclaimer: This is our option and does constitute a recommendation or financial advice. Do your own research. *
- Price
- 7
- Condition
- 5
- Location
- 7
- Land
- 8
- Bedrooms
- 3
- Bathrooms
- 1
The heatmap indicates the level of crime in the area. The color of the heatmap indicates the crime severity and recency.
Metrics Year-on-Year
- Average area value
- 823,568.00 £Increased by 14.19 %
- Average area rental value
- 2,482.00 £/moIncreased by 57.59 %
- Est rental Yield
- 3.62 %Increased by 38.17 %
- Crime Rate
- 3.00 %Unchanged by 0.00 %
Agent Activity
Jones Robinson Estate Agents created the listing.
Nearby Schools
| Name | Type | Ofsted | Distance |
|---|---|---|---|
| Hermitage Primary School | Community School | Good | 0.62 KM |
| Downe House | Other Independent School | 2.66 KM | |
| Brockhurst And Marlston House Schools | Other Independent School | 3.07 KM | |
| Cold Ash St Mark'S Ce Primary School | Voluntary Controlled School | Good | 3.41 KM |
| Hampstead Norreys C.E. Primary School | Voluntary Controlled School | Good | 3.65 KM |
Images
Nearby Streets
| Name | Average Price | Average Sqft | Distance |
|---|---|---|---|
| Blake Road | £ 0 | 0 | 0.00 KM |
| Ridgeway Close | £ 0 | 0 | 0.00 KM |
| Doctors Lane | £ 1,475,000 | 0 | 0.00 KM |
| Crabtree Lane | £ 0 | 0 | 0.00 KM |
Nearby Transport
| Name | NLC | TLC | Distance |
|---|---|---|---|
| Thatcham | 3152 | THA | 7.43 KM |
| Newbury Racecourse | 3071 | NRC | 8.28 KM |
| Newbury | 3074 | NBY | 9.44 KM |
Nearby Listings
| Address | Price | Type | Score | Distance |
|---|---|---|---|---|
| Pond Lane, Hermitage, Thatcham, Berkshire, RG18 | £ 575,000 | BUY | 6 / 10 | 0.00 KM |
| Pond Lane, Hermitage, Thatcham, Berkshire | £ 950,000 | BUY | Unknown | 0.03 KM |
| Rowlock Gardens, Hermitage, Thatcham, Berkshire, RG18 | £ 240,000 | BUY | Unknown | 0.23 KM |
| Rowlock Gardens, Hermitage, RG18 | £ 229,950 | BUY | 7 / 10 | 0.24 KM |
| Deacons Lane, Hermitage, Thatcham, Berkshire, RG18 | £ 1,075,000 | BUY | 7 / 10 | 0.26 KM |
Nearby Properties
| Address | Price | Distance |
|---|---|---|
| Ferndale | £ 690,000 | 0.03 KM |
| Woodlands | £ 450,000 | 0.03 KM |
| Collaroy | £ 450,000 | 0.03 KM |
| Rivendell | £ 545,000 | 0.03 KM |
| Holly Lodge | £ 573,000 | 0.03 KM |