Ferndale, Yaxley, Peterborough, Cambridgeshire. PE7 3ZW
SM

Ferndale, Yaxley, Peterborough, Cambridgeshire. PE7 3ZW

By Smartmove

£ 475,000

Reviews

3 out of 5 stars

Smartmove says ..

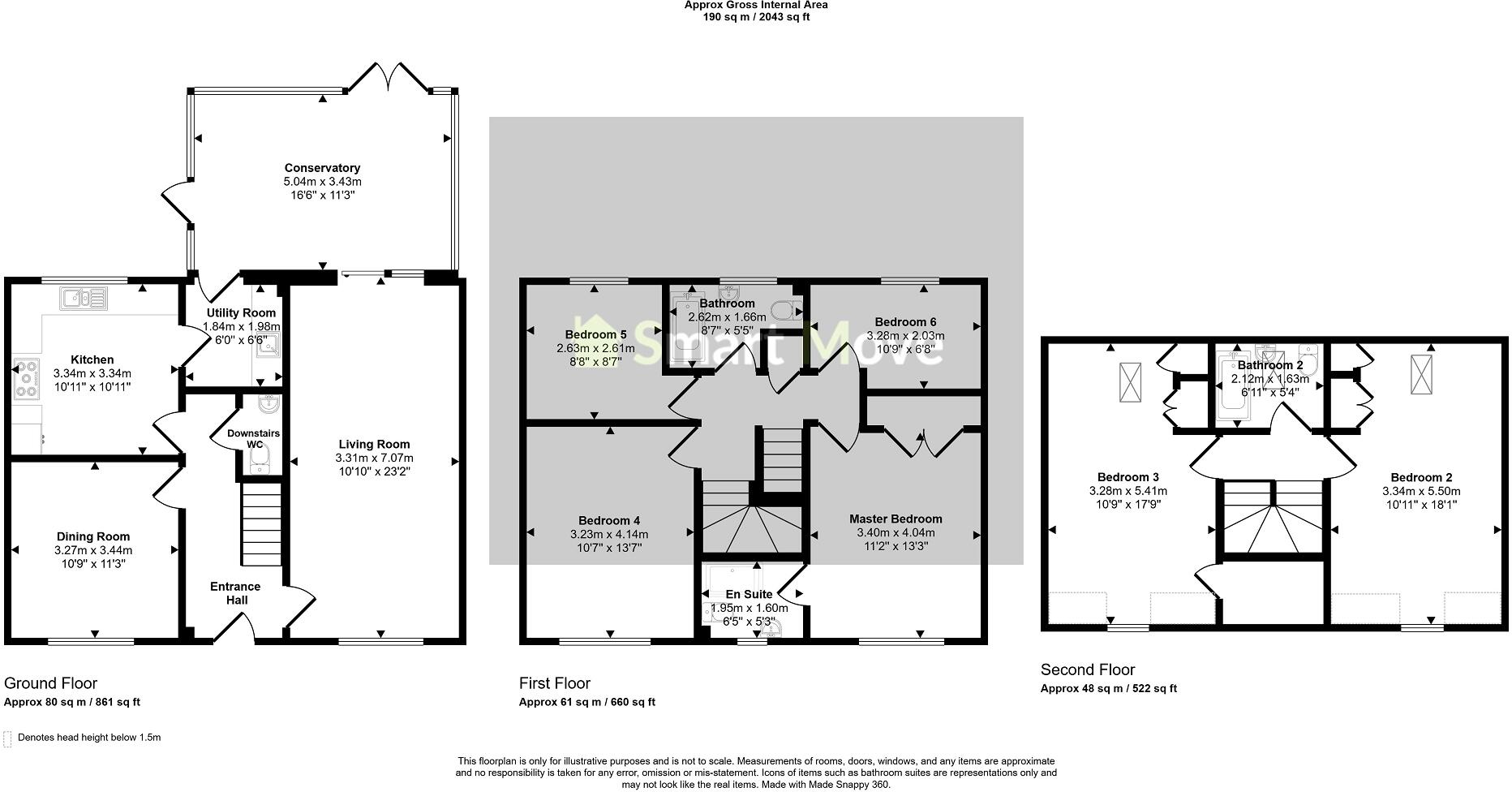
Smart Move are delighted to offer for sale this fantastic, six bedroom home on Ferndale. Offering over 2000sqft of living accommodation and spanning over three floors, this detached property is set on the ever popular Ferndale estate and is within walking distance to the local amenities, schools,...

Property Oracle says ..

Location: Yaxley benefits from being a short distance from Peterborough, providing access to more extensive amenities and transport links such as the London North Eastern Railway. The property’s proximity to Fourfields Community Primary School (rated ‘Good’ by Ofsted) is a positive attribute for families. The presence of other schools within a reasonable distance further enhances its family-friendly appeal.

Condition: The photographs suggest the property is in good condition. The interior appears well-maintained and recently updated, with modern fixtures and fittings in the kitchen and bathrooms. There is no visible evidence of significant repairs or renovations being required.

Land: The property includes a garden, which is visible in the provided photographs. The size is not specified, but the images show a relatively sizable outdoor space with a patio area and landscaping features.

Price: The list price of £475,000 requires careful consideration. While comparable properties in Yaxley are listed at varying prices (ranging from £205,000 to £450,000 in the nearby listings), a direct price per square foot comparison is not possible due to missing square footage data in those listings. The property’s size (2,045.14 sqft), good condition, desirable location, and inclusion of a garden would typically support a higher price point within the market. However, without precise local price per sqft data for similar properties, a definitive judgment on value cannot be made.

Therefore, we give this property 7 / 10. *Disclaimer: This is our option and does constitute a recommendation or financial advice. Do your own research. *

Price
7
Condition
9
Location
8
Land
7
Bedrooms
6
Bathrooms
3
Sqft (est)
2,045.14

The heatmap indicates the level of crime in the area. The color of the heatmap indicates the crime severity and recency.

Metrics Year-on-Year

Average area value
265,066.00 £
Increased by 22.85 %
from 215,770.00 £
Est sale value
889,635.90 £
Increased by 59.34 %
from 558,323.22 £
Average area rental value
1,330.00 £/mo
Increased by 2.94 %
from 1,292.00 £/mo
Est letting value
4,090.28 £/mo
Increased by 100.00 %
from 2,045.14 £/mo
Est rental Yield
6.02 %
Decreased by 16.27 %
from 7.19 %
Crime Rate
13.00 %
Unchanged by 0.00 %
from 13.00 %

Agent Activity

  • Smartmove created the listing.

Nearby Schools

NameTypeOfstedDistance
Fourfields Community Primary SchoolCommunity SchoolGood0.74 KM
William De Yaxley Church Of England AcademyAcademy Sponsor LedRequires improvement1.28 KM
Yaxley Infant SchoolCommunity SchoolGood1.57 KM
Hampton CollegeAcademy ConverterGood1.73 KM
Hampton Vale Primary AcademyAcademy Sponsor Led1.83 KM

Images

Main Image Not Specified Not Specified Not Specified Not Specified Not Specified Not Specified Not Specified Not Specified Not Specified Not Specified Not Specified Not Specified Not Specified Not Specified Not Specified Not Specified Not Specified Not Specified Not Specified

Nearby Streets

NameAverage PriceAverage SqftDistance
Allard Close £ 000.00 KM
Green Lane £ 270,00000.00 KM
Mountbatten Avenue £ 000.00 KM
Newcourt Road £ 000.00 KM
Laytham Gardens £ 000.00 KM

Nearby Transport

NameNLCTLCDistance
Peterborough6133PBO6.46 KM

Nearby Listings

AddressPriceTypeScoreDistance
Ferndale, Yaxley, Peterborough, Cambridgeshire. PE7 3ZW £ 410,000BUY7 / 100.00 KM
Ferndale, Yaxley, Peterborough, Cambridgeshire. PE7 3ZW £ 475,000BUY7 / 100.00 KM
Ferndale, Yaxley, Peterborough £ 210,000BUY7 / 100.01 KM
Ferndale, Yaxley, Peterborough £ 210,000BUY7 / 100.01 KM
Ferndale, Yaxley, Peterborough £ 245,000BUY7 / 100.05 KM

Nearby Properties

AddressPriceDistance
34 Ferndale £ 450,0000.01 KM
64 Ferndale £ 89,5000.01 KM
26 Ferndale £ 270,0000.01 KM
32 Ferndale £ 273,0000.01 KM
46 Ferndale £ 285,0000.01 KM