Cornhill Barn, Long Lane, Cheshire
By Butters John Bee
£ 675,000
Reviews
3 out of 5 stars
Butters John Bee says ..
If you are looking for a property that will tickle your taste buds then look no further than Cornhill Barns, situated on Long Lane Wettenhall in the beautiful countryside
Property Oracle says ..
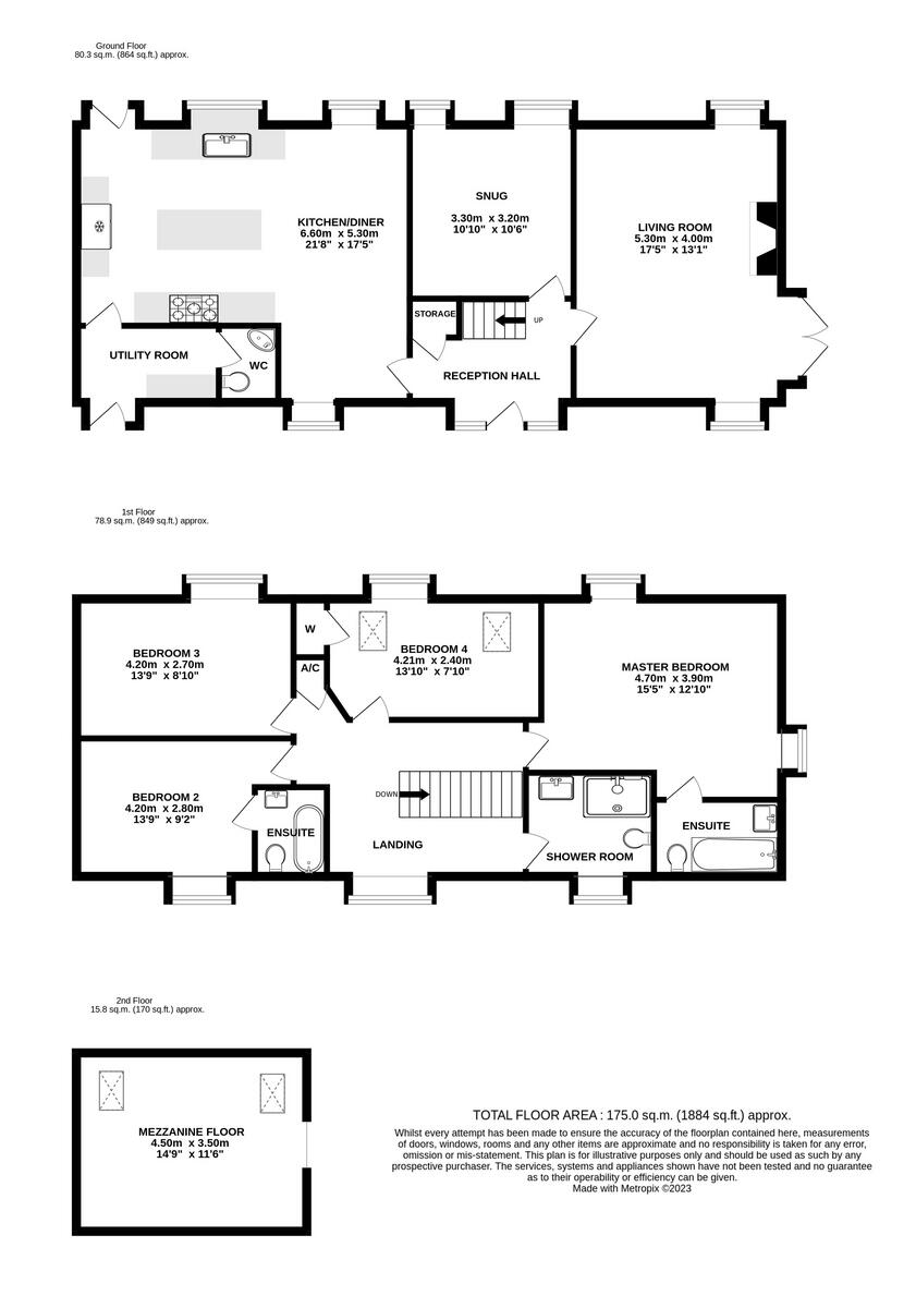
Cornhill Barn is a charming barn conversion situated in the peaceful Cheshire countryside near Bunbury. The property boasts a contemporary interior design, featuring an updated kitchen with modern appliances and ample living space. High-quality finishes and well-maintained fixtures and fittings are evident in the provided images. The home’s layout offers four bedrooms and three bathrooms, catering to a family or those seeking comfortable living arrangements. A substantial garden adds significant appeal. While precise plot size data is not supplied, the photos confirm an impressive amount of outdoor space. The location offers a blend of rural tranquility and relative proximity to amenities. Good schools are within a manageable distance, along with Winsford train station. This property likely presents a strong value proposition for buyers seeking a luxurious rural lifestyle with convenient access to key services. The provided data supports the pricing. Overall this property is an attractive option for potential buyers who prefer a country setting with the convenience of reasonably nearby amenities and services. The lack of precise plot size information is a minor drawback. This is mitigated somewhat by the visual evidence of abundant outside space. Potential buyers may want to verify details about local services to meet their specific needs before making a decision.
Therefore, we give this property 7 / 10. *Disclaimer: This is our option and does constitute a recommendation or financial advice. Do your own research. *
- Price
- 7
- Condition
- 8
- Location
- 7
- Land
- 6
- Bedrooms
- 4
- Bathrooms
- 3
- Sqft (est)
- 1,884.00
The heatmap indicates the level of crime in the area. The color of the heatmap indicates the crime severity and recency.
Metrics Year-on-Year
- Average area value
- 486,321.00 £Decreased by 11.71 %
- Est sale value
- 682,008.00 £Decreased by 2.95 %
- Average area rental value
- 1,340.00 £/moDecreased by 8.91 %
- Est letting value
- 0.00 £/mo
- Est rental Yield
- 3.31 %Increased by 3.44 %
- Crime Rate
- 0.00 %
Agent Activity
Butters John Bee created the listing.
Nearby Schools
| Name | Type | Ofsted | Distance |
|---|---|---|---|
| Calveley Primary Academy | Academy Converter | Good | 3.03 KM |
| Hebden Green Community School | Community Special School | Outstanding | 4.22 KM |
| Oaklands School | Community Special School | Outstanding | 4.98 KM |
| Over Hall Community School | Academy Converter | Good | 5.22 KM |
| The Oak View Academy | Academy Sponsor Led | Good | 5.46 KM |
Images
Nearby Streets
| Name | Average Price | Average Sqft | Distance |
|---|---|---|---|
| Cornhill Barns | £ 625,000 | 0 | 0.00 KM |
| Eaton Road | £ 795,000 | 0 | 0.00 KM |
Nearby Transport
| Name | NLC | TLC | Distance |
|---|---|---|---|
| Winsford | 2269 | WSF | 9.74 KM |
Nearby Listings
| Address | Price | Type | Score | Distance |
|---|---|---|---|---|
| Cornhill Barn, Long Lane, Cheshire | £ 675,000 | BUY | 7 / 10 | 0.00 KM |
| Cornhill Barns, Long Lane, Wettenhall | £ 650,000 | BUY | Unknown | 0.02 KM |
| Wettenhall, Winsford, Cheshire, CW7 | £ 875,000 | BUY | 8 / 10 | 0.11 KM |
| Long Lane, Wettenhall, Winsford | £ 585,000 | BUY | Unknown | 0.34 KM |
| Long Lane, Wettenhall, Winsford | £ 585,000 | BUY | 6 / 10 | 0.34 KM |
Nearby Properties
| Address | Price | Distance |
|---|---|---|
| Oaktree House | £ 690,000 | 0.34 KM |
| The Old Post Office | £ 495,000 | 0.34 KM |
| Manor Cottage | £ 270,000 | 0.34 KM |
| Bank View | £ 25,000 | 0.34 KM |
| The Calveley | £ 400,000 | 1.17 KM |