First Floor Apartment, Beckingsale Court, Normal Terrace, Cheltenham , GL50
By Elliot Oliver Sales
£ 180,000
Reviews
3 out of 5 stars
Elliot Oliver Sales says ..
Introducing the Beckingsale Development – a stunning new collection of homes set for completion in 2025.
Property Oracle says ..
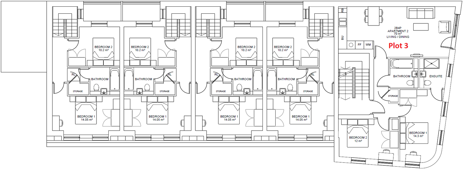
This property is a two bedroom, two bathroom apartment located in Cheltenham, Gloucestershire. The apartment is modern and well-presented, and benefits from a great location close to local amenities and transport links. The asking price is slightly below the average price per square foot for the area, making it potentially good value for money. However, the lack of outdoor space is a notable drawback.
Therefore, we give this property 6 / 10. *Disclaimer: This is our option and does constitute a recommendation or financial advice. Do your own research. *
- Price
- 7
- Condition
- 10
- Location
- 8
- Land
- 1
- Bedrooms
- 2
- Bathrooms
- 2
- Sqft (est)
- 820.21
The heatmap indicates the level of crime in the area. The color of the heatmap indicates the crime severity and recency.
Metrics Year-on-Year
- Average area value
- 212,475.00 £Decreased by 18.06 %
- Est sale value
- 244,422.58 £Decreased by 0.33 %
- Average area rental value
- 1,179.00 £/moIncreased by 26.37 %
- Est letting value
- 820.21 £/moUnchanged by 0.00 %
- Est rental Yield
- 6.66 %Increased by 54.17 %
- Crime Rate
- 11.00 %Unchanged by 0.00 %
Agent Activity
Elliot Oliver Sales marked this listing as sold.
Elliot Oliver Sales created the listing.
Nearby Schools
| Name | Type | Ofsted | Distance |
|---|---|---|---|
| The Catholic School Of Saint Gregory The Great | Voluntary Aided School | Outstanding | 0.35 KM |
| Gloucestershire Hospital Education Service | Pupil Referral Unit | Outstanding | 0.71 KM |
| Cheltenham Ladies' College | Other Independent School | 0.77 KM | |
| Dunalley Primary School | Community School | Good | 1.06 KM |
| Gardners Lane Primary School | Foundation School | Good | 1.15 KM |
Images
Nearby Streets
| Name | Average Price | Average Sqft | Distance |
|---|---|---|---|
| High Street | £ 0 | 0 | 0.00 KM |
| Poole Way | £ 0 | 0 | 0.00 KM |
| Poole Way | £ 0 | 0 | 0.00 KM |
| Folly Lane | £ 0 | 0 | 0.00 KM |
| New Street | £ 0 | 0 | 0.00 KM |
Nearby Transport
| Name | NLC | TLC | Distance |
|---|---|---|---|
| Cheltenham Spa | 4731 | CNM | 2.33 KM |
Nearby Listings
| Address | Price | Type | Score | Distance |
|---|---|---|---|---|
| Normal Terrace,Cheltenham,GL50 4AR | £ 289,950 | BUY | Unknown | 0.00 KM |
| Beckingsale Court, Normal Terrace, Town Centre, Cheltenham , GL50 | £ 315,000 | BUY | 6 / 10 | 0.00 KM |
| Beckingsale Court, Normal Terrace, Cheltenham , GL50 | £ 300,000 | BUY | 6 / 10 | 0.00 KM |
| First Floor Apartment, Beckingsale Court, Normal Terrace, Cheltenham , GL50 | £ 180,000 | BUY | 6 / 10 | 0.00 KM |
| Beckingsale Court, Normal Terrace, Cheltenham , GL50 | £ 300,000 | BUY | 6 / 10 | 0.00 KM |
Nearby Properties
| Address | Price | Distance |
|---|---|---|
| 1 Normal Terrace | £ 185,000 | 0.01 KM |
| 11 Normal Terrace | £ 146,000 | 0.01 KM |
| 8 Normal Terrace | £ 180,000 | 0.01 KM |
| 17 Normal Terrace | £ 175,500 | 0.01 KM |
| 15 Normal Terrace | £ 170,000 | 0.01 KM |