Victoria Road, Farnborough, Hampshire, GU14
By Bridges Estate Agents
£ 130,000
Reviews
3 out of 5 stars
Bridges Estate Agents says ..
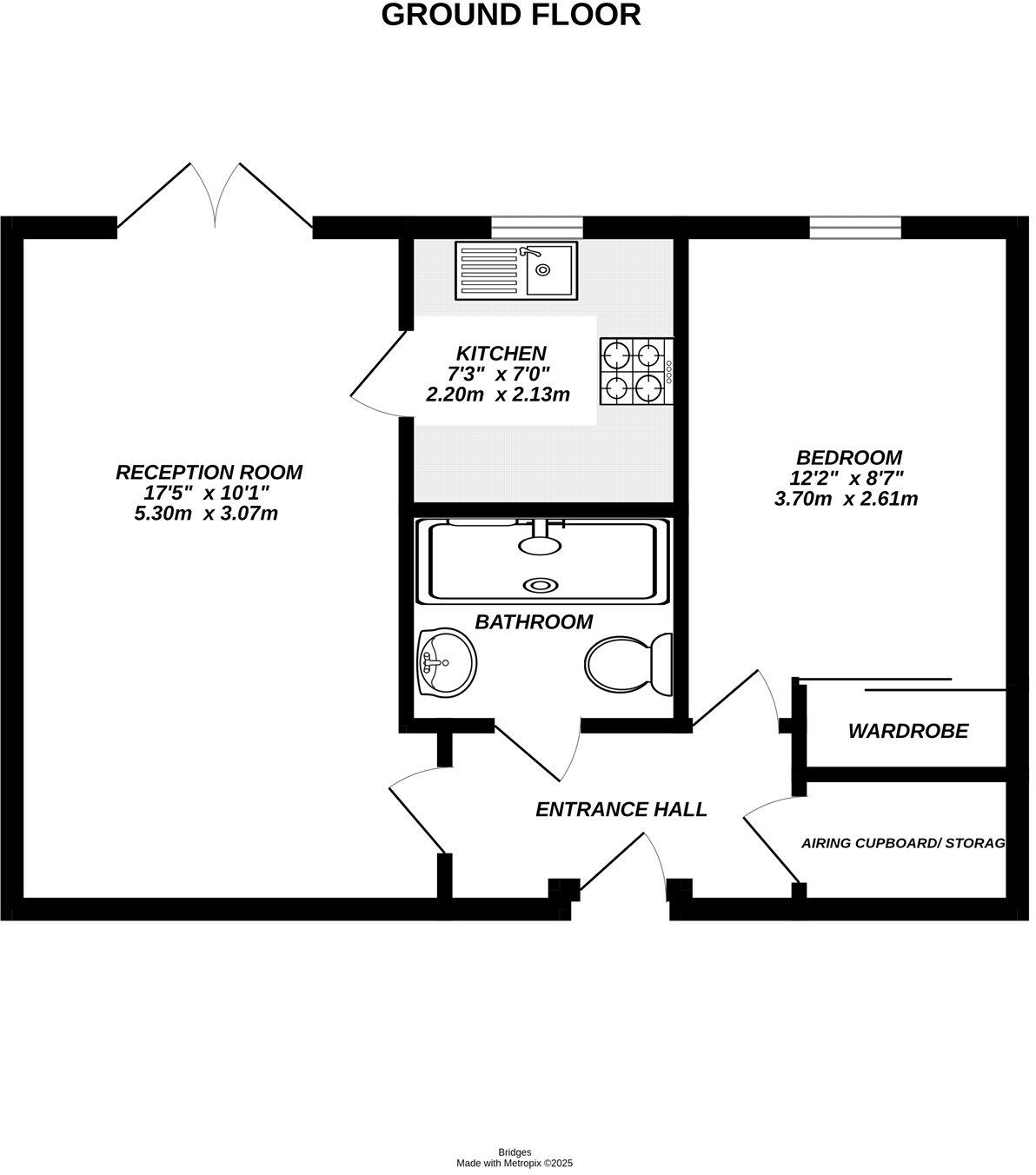
Ideally positioned for easy access to the town centre and mainline station is this well presented, modern ground floor retirement apartment. The property features a spacious 17ft living/dining room, a double bedroom with built-in wardrobe, a modern fitted kitchen and a contemporary bathroom. Resi...
Property Oracle says ..
This is a one-bedroom retirement property located on Victoria Road in Farnborough. The property is in a good location, close to transportation and schools. The condition of the property appears to be well-maintained, with a modern kitchen and bathroom. The property includes access to communal gardens. The price of £130,000 seems reasonable, considering the location and condition of the property. The average price for similar properties in the area is £360,272, with an average price per square foot of £447, making this property a potentially good value.
Therefore, we give this property 6 / 10. *Disclaimer: This is our option and does constitute a recommendation or financial advice. Do your own research. *
- Price
- 8
- Condition
- 7
- Location
- 7
- Land
- 5
- Bedrooms
- 1
- Bathrooms
- 1
- Sqft (est)
- 381.95
The heatmap indicates the level of crime in the area. The color of the heatmap indicates the crime severity and recency.
Metrics Year-on-Year
- Average area value
- 360,272.00 £Increased by 4.93 %
- Est sale value
- 170,731.65 £Increased by 9.29 %
- Average area rental value
- 1,439.00 £/moIncreased by 4.50 %
- Est letting value
- 381.95 £/moUnchanged by 0.00 %
- Est rental Yield
- 4.79 %Decreased by 0.42 %
- Crime Rate
- 26.00 %Unchanged by 0.00 %
Agent Activity
Bridges Estate Agents created the listing.
Nearby Schools
| Name | Type | Ofsted | Distance |
|---|---|---|---|
| St Peter'S Church Of England Aided Junior School | Voluntary Aided School | Requires improvement | 0.89 KM |
| Farnborough Hill | Other Independent School | 1.02 KM | |
| Farnborough College Of Technology | Further Education | Outstanding | 1.10 KM |
| St Bernadette'S Catholic Primary School | Voluntary Aided School | Requires improvement | 1.15 KM |
| Owls Children'S Centre | Children's Centre | 1.17 KM |
Images
Nearby Streets
| Name | Average Price | Average Sqft | Distance |
|---|---|---|---|
| Helen Court | £ 0 | 0 | 0.00 KM |
| Kingsmead | £ 0 | 0 | 0.00 KM |
| Firgrove Road | £ 0 | 0 | 0.00 KM |
| Church Path | £ 0 | 0 | 0.00 KM |
| RAE Road | £ 0 | 0 | 0.00 KM |
Nearby Transport
| Name | NLC | TLC | Distance |
|---|---|---|---|
| Farnborough (Main) | 5521 | FNB | 0.34 KM |
| Farnborough North | 5688 | FNN | 1.78 KM |
| Frimley | 5683 | FML | 2.29 KM |
| North Camp | 5636 | NCM | 3.46 KM |
| Ash Vale | 5547 | AHV | 4.56 KM |
Nearby Listings
| Address | Price | Type | Score | Distance |
|---|---|---|---|---|
| Victoria Road, Farnborough, Hampshire, GU14 | £ 130,000 | BUY | 6 / 10 | 0.00 KM |
| York House, 49 Victoria Road, Farnborough, Hampshire, GU14 | £ 155,000 | BUY | Unknown | 0.02 KM |
| Farnborough Road, Farnborough, Hampshire, GU14 | £ 229,950 | BUY | 6 / 10 | 0.04 KM |
| Fern Hill Lodge, Farnborough | £ 115,000 | BUY | 7 / 10 | 0.05 KM |
| Victoria Road, Farnborough | £ 375,000 | BUY | 6 / 10 | 0.05 KM |
Nearby Properties
| Address | Price | Distance |
|---|---|---|
| 46 Clockhouse Road | £ 125,000 | 0.13 KM |
| 42 Clockhouse Road | £ 196,000 | 0.13 KM |
| 48 Clockhouse Road | £ 155,000 | 0.13 KM |
| 44b Clockhouse Road | £ 330,000 | 0.14 KM |
| 35 Clockhouse Road | £ 345,000 | 0.14 KM |