Keatons says ..
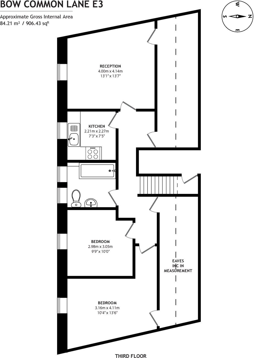
Set on the fringes of the Ropery Street Conservation Area close to Mile End Underground Station and Park, is this well-presented two-bedroom apartment. Offered on a chain free basis, the property has a warm inviting tone and is well-presented throughout. Set on the top floor of this purpose-built...
Property Oracle says ..
This is a two-bedroom flat located in Bow, London. The property is in reasonable condition and appears to be well-maintained. It benefits from its proximity to local schools and transportation links. The flat is competitively priced compared to the average for the area, making it an attractive option for first-time buyers or investors. The lack of private outdoor space might be a drawback for some buyers. Overall, it represents a solid opportunity in the London property market.
Therefore, we give this property 6 / 10. *Disclaimer: This is our option and does constitute a recommendation or financial advice. Do your own research. *
- Price
- 7
- Condition
- 7
- Location
- 7
- Land
- 3
- Bedrooms
- 2
- Bathrooms
- 1
- Sqft (est)
- 461.46
The heatmap indicates the level of crime in the area. The color of the heatmap indicates the crime severity and recency.
Metrics Year-on-Year
- Average area value
- 478,379.00 £Increased by 16.22 %
- Est sale value
- 285,182.28 £Increased by 35.23 %
- Average area rental value
- 2,016.00 £/moIncreased by 5.00 %
- Est letting value
- 922.92 £/moUnchanged by 0.00 %
- Est rental Yield
- 5.06 %Decreased by 9.64 %
- Crime Rate
- 4.00 %Unchanged by 0.00 %
Agent Activity
Keatons created the listing.
Nearby Schools
| Name | Type | Ofsted | Distance |
|---|---|---|---|
| Mile End Children'S Centre | Children's Centre | 0.27 KM | |
| Beatrice Tate School | Community Special School | Outstanding | 0.28 KM |
| St Paul With St Luke Cofe Primary School | Voluntary Aided School | Good | 0.50 KM |
| Ocean Sure Start Children'S Centre | Children's Centre Linked Site | 0.71 KM | |
| Central Foundation Girls' School | Voluntary Aided School | Good | 0.74 KM |
Images
Nearby Streets
| Name | Average Price | Average Sqft | Distance |
|---|---|---|---|
| Nailsea Square | £ 0 | 0 | 0.00 KM |
| Cantrell Road | £ 600,000 | 0 | 0.00 KM |
| Robeson Street | £ 0 | 0 | 0.00 KM |
| Maplin Street | £ 0 | 0 | 0.00 KM |
| Haven Mews | £ 0 | 0 | 0.00 KM |
Nearby Transport
| Name | NLC | TLC | Distance |
|---|---|---|---|
| Limehouse | 7491 | LHS | 1.35 KM |
| Hackney Wick | 6978 | HKW | 2.55 KM |
| Shadwell | 1082 | SDE | 3.02 KM |
| Cambridge Heath | 6962 | CBH | 3.07 KM |
| Homerton | 6979 | HMN | 3.08 KM |
Nearby Listings
| Address | Price | Type | Score | Distance |
|---|---|---|---|---|
| Bow Common Lane, Bow, London, E3 | £ 390,000 | BUY | 6 / 10 | 0.00 KM |
| Rockland Apartments, 5 Lakenham Place, London, E3 | £ 650,000 | BUY | 6 / 10 | 0.04 KM |
| Sarum Terrace, Bow Common Lane, E3 | £ 350,000 | BUY | 6 / 10 | 0.05 KM |
| Bow Common Lane, Bow, London, E3 | £ 800,000 | BUY | 7 / 10 | 0.05 KM |
| Bow Common Lane, Bow, London, E3 | £ 950,000 | BUY | 7 / 10 | 0.05 KM |
Nearby Properties
| Address | Price | Distance |
|---|---|---|
| 235 Bow Common Lane | £ 105,000 | 0.01 KM |
| 233 Bow Common Lane | £ 283,000 | 0.01 KM |
| 178 Bow Common Lane | £ 705,000 | 0.06 KM |
| 210b Bow Common Lane | £ 150,000 | 0.06 KM |
| 156 Bow Common Lane | £ 297,500 | 0.06 KM |