Reeds Rains says ..
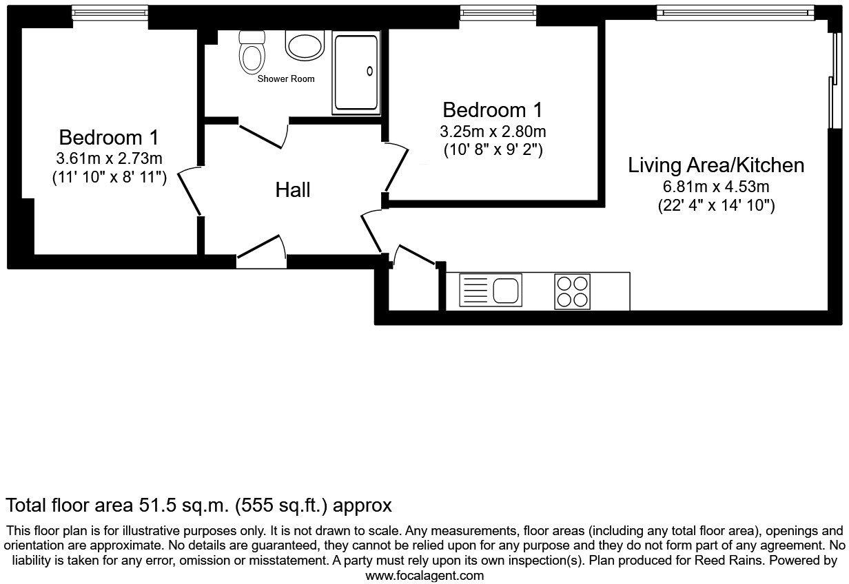
An immaculately presented 2 bedroom apartment located in the heart of Ancoats with its wide array of bars, restaurants and coffee shops, with New Islington Marina & the Northern Quarter just a short stroll away. With doors leading directly out to a pleasant terrace, this superb property would...
Property Oracle says ..
Therefore, we give this property 7 / 10. *Disclaimer: This is our option and does constitute a recommendation or financial advice. Do your own research. *
- Price
- 7
- Condition
- 8
- Location
- 8
- Land
- 6
- Bedrooms
- 2
- Bathrooms
- 1
- Sqft (est)
- 536.09
The heatmap indicates the level of crime in the area. The color of the heatmap indicates the crime severity and recency.
Metrics Year-on-Year
- Average area value
- 306,431.00 £Increased by 8.62 %
- Est sale value
- 241,240.50 £Increased by 533.80 %
- Average area rental value
- 1,392.00 £/moIncreased by 1.31 %
- Est letting value
- 1,072.18 £/mo
- Est rental Yield
- 5.45 %Decreased by 6.68 %
- Crime Rate
- 0.00 %
from 282,110.00 £
from 38,062.39 £
from 1,374.00 £/mo
from 0.00 £/mo
from 5.84 %
from 0.00 %
Agent Activity
Reeds Rains marked this listing as sold.
Reeds Rains created the listing.
Nearby Schools
| Name | Type | Ofsted | Distance |
|---|---|---|---|
| New Islington Free School | Free Schools | Outstanding | 0.33 KM |
| St Patrick'S Rc Primary School | Voluntary Aided School | Requires improvement | 0.54 KM |
| Abbott Community Primary School | Community School | Outstanding | 0.62 KM |
| King Of Kings | Other Independent School | Good | 1.11 KM |
| Collyhurst Sure Start Children'S Centre | Children's Centre | 1.23 KM |
Images
Nearby Streets
| Name | Average Price | Average Sqft | Distance |
|---|---|---|---|
| Cipher Street | £ 0 | 0 | 0.00 KM |
| Butler Street | £ 240,000 | 0 | 0.00 KM |
| Brock Street | £ 0 | 0 | 0.00 KM |
| Whittles Croft | £ 0 | 0 | 0.00 KM |
| Finders Quay | £ 545,000 | 0 | 0.00 KM |
Nearby Transport
| Name | NLC | TLC | Distance |
|---|---|---|---|
| Manchester Piccadilly | 2968 | MAN | 0.99 KM |
| Manchester Victoria | 2970 | MCV | 1.71 KM |
| Manchester Oxford Road | 2966 | MCO | 2.07 KM |
| Ardwick | 2960 | ADK | 2.15 KM |
| Deansgate | 2963 | DGT | 2.92 KM |
Nearby Listings
| Address | Price | Type | Score | Distance |
|---|---|---|---|---|
| Loom Street, Manchester, M4 | £ 200,000 | BUY | 7 / 10 | 0.00 KM |
| 20-22 Loom Street, Manchester, M4 | £ 225,000 | BUY | 5 / 10 | 0.00 KM |
| BS41, 20 Loom Street, Manchester, Greater Manchester, M4 | £ 180,000 | BUY | 7 / 10 | 0.00 KM |
| BS41, 22 Loom Street, Ancoats | £ 150,000 | BUY | 6 / 10 | 0.01 KM |
| Loom Street, Manchester, M4 | £ 230,000 | BUY | 5 / 10 | 0.01 KM |
Nearby Properties
| Address | Price | Distance |
|---|---|---|
| 150 Oldham Road | £ 37,000 | 0.16 KM |
| 21 Anita Street | £ 122,000 | 0.32 KM |
| 20 Anita Street | £ 155,000 | 0.32 KM |
| 29 Anita Street | £ 94,000 | 0.32 KM |
| 31 Anita Street | £ 273,000 | 0.32 KM |