Keystone says ..
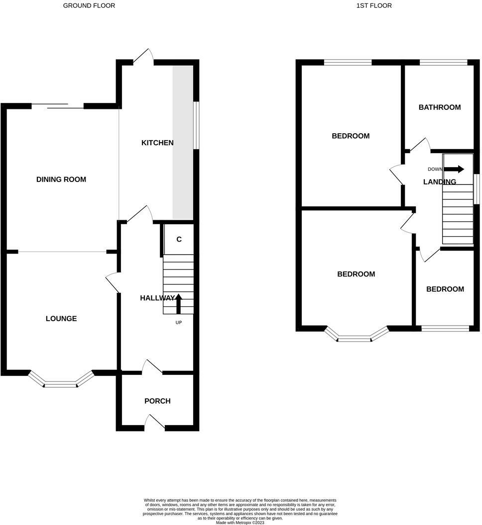
KEYSTONE are pleased to offer for sale this SPACIOUS THREE BEDROOM SEMI-DETACHED HOUSE with GARAGE situated in this popular North East location and within the Northgate catchment area (subject to availability) The property benefits from lounge, dining room, kitchen, three bedrooms, bathroom, gara...
Property Oracle says ..
Therefore, we give this property 6 / 10. *Disclaimer: This is our option and does constitute a recommendation or financial advice. Do your own research. *
- Price
- 6
- Condition
- 7
- Location
- 7
- Land
- 7
- Bedrooms
- 3
- Bathrooms
- 1
- Sqft (est)
- 922.00
The heatmap indicates the level of crime in the area. The color of the heatmap indicates the crime severity and recency.
Metrics Year-on-Year
- Average area value
- 200,000.00 £Decreased by 41.39 %
- Est sale value
- 173,336.00 £Decreased by 41.98 %
- Average area rental value
- 1,350.00 £/moIncreased by 41.66 %
- Est letting value
- 922.00 £/mo
- Est rental Yield
- 8.10 %Increased by 141.79 %
- Crime Rate
- 17.00 %Unchanged by 0.00 %
from 341,243.00 £
from 298,728.00 £
from 953.00 £/mo
from 0.00 £/mo
from 3.35 %
from 17.00 %
Agent Activity
Keystone created the listing.
Nearby Schools
| Name | Type | Ofsted | Distance |
|---|---|---|---|
| St Alban'S Catholic High School | Academy Converter | Good | 0.71 KM |
| St Christopher'S Academy | Academy Alternative Provision Converter | 0.75 KM | |
| Wooden House Children'S Centre | Children's Centre | 0.93 KM | |
| Rushmere Hall Primary School | Academy Converter | 0.93 KM | |
| Parkside Academy | Academy Alternative Provision Converter | Requires improvement | 1.51 KM |
Images
Nearby Streets
| Name | Average Price | Average Sqft | Distance |
|---|---|---|---|
| Ladywood Road | £ 0 | 0 | 0.00 KM |
| The Drift | £ 300,000 | 0 | 0.00 KM |
| Inverness Road | £ 225,000 | 0 | 0.00 KM |
| Halliwell Road | £ 375,000 | 0 | 0.00 KM |
| Orkney Road | £ 0 | 0 | 0.00 KM |
Nearby Transport
| Name | NLC | TLC | Distance |
|---|---|---|---|
| Derby Road (Ipswich) | 7212 | DBR | 2.58 KM |
| Westerfield | 7226 | WFI | 3.68 KM |
| Ipswich | 7217 | IPS | 6.15 KM |
Nearby Listings
| Address | Price | Type | Score | Distance |
|---|---|---|---|---|
| Dumbarton Road, Ipswich | £ 300,000 | BUY | 6 / 10 | 0.00 KM |
| Selkirk Road, Ipswich | £ 330,000 | BUY | Unknown | 0.09 KM |
| Humber Doucy Lane, Ipswich | £ 330,000 | BUY | 6 / 10 | 0.14 KM |
| Humber Doucy Lane, Ipswich | £ 300,000 | BUY | 7 / 10 | 0.15 KM |
| Humber Doucy Lane, Ipswich, IP4 | £ 300,000 | BUY | 7 / 10 | 0.15 KM |
Nearby Properties
| Address | Price | Distance |
|---|---|---|
| 75 Dumbarton Road | £ 268,000 | 0.03 KM |
| 73 Dumbarton Road | £ 220,000 | 0.03 KM |
| 71 Dumbarton Road | £ 160,000 | 0.03 KM |
| 65 Dumbarton Road | £ 165,000 | 0.03 KM |
| 10 Dumfries Road | £ 151,000 | 0.08 KM |