Hengrove Crescent, Ashford, TW15
By Gregory Brown
£ 435,000
Reviews
3 out of 5 stars
Gregory Brown says ..
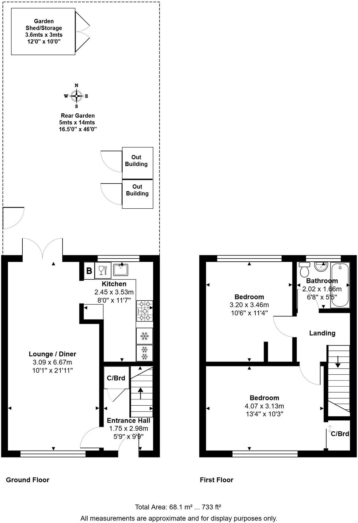
WELL PRESENTED & SPACIOUS TWO BEDROOM END-TERRACED PROPERTY SITUATED ALONG THIS SOUGHT AFTER ROAD IDEALLY LOCATED FOR EASY ACCESS TO ASHFORD TOWN CENTRE, MAINLINE TRAIN STATION, LOCAL MOTORWAY NETWORKS & HEATHROW AIRPORT. The property benefits from a spacious lounge/diner, separate mod...
Property Oracle says ..
This is a well-presented two-bedroom end-of-terrace house in Ashford, Surrey. The property benefits from a modern kitchen, a well-maintained garden, and good access to local amenities and transport links. The property is in good condition and appears to be ready to move in. The asking price is reasonable for the area and the property type. The nearby schools and transportation links make this property suitable for families and commuters. The property is located close to Ashford train station and several schools, making it a desirable location.
Therefore, we give this property 7 / 10. *Disclaimer: This is our option and does constitute a recommendation or financial advice. Do your own research. *
- Price
- 7
- Condition
- 8
- Location
- 7
- Land
- 7
- Bedrooms
- 2
- Bathrooms
- 1
The heatmap indicates the level of crime in the area. The color of the heatmap indicates the crime severity and recency.
Metrics Year-on-Year
- Average area value
- 459,000.00 £Increased by 3.89 %
- Average area rental value
- 1,736.00 £/moDecreased by 7.31 %
- Est rental Yield
- 4.54 %Decreased by 10.81 %
- Crime Rate
- 5.00 %Unchanged by 0.00 %
Agent Activity
Gregory Brown created the listing.
Nearby Schools
| Name | Type | Ofsted | Distance |
|---|---|---|---|
| Ashford Park Primary School | Community School | Good | 0.20 KM |
| Thomas Knyvett College | Academy Converter | Good | 0.83 KM |
| Fordway Centre | Academy Alternative Provision Converter | 0.92 KM | |
| St James Senior Boys' School | Other Independent School | 1.20 KM | |
| Clarendon Primary School | Community School | Good | 1.50 KM |
Images
Nearby Streets
| Name | Average Price | Average Sqft | Distance |
|---|---|---|---|
| Portland Road | £ 568,333 | 0 | 0.00 KM |
| Connaught Avenue | £ 325,000 | 0 | 0.00 KM |
| A30 | £ 0 | 0 | 0.00 KM |
| Hanover Close | £ 0 | 0 | 0.00 KM |
| Buxton Road | £ 0 | 0 | 0.00 KM |
Nearby Transport
| Name | NLC | TLC | Distance |
|---|---|---|---|
| Ashford (Surrey) | 5667 | AFS | 1.25 KM |
| Staines | 5670 | SNS | 2.76 KM |
| Heathrow Terminal 5 | 9846 | HWV | 3.67 KM |
| Heathrow Terminal 4 | 7091 | HAF | 4.29 KM |
| Heathrow Terminals 2 And 3 (Rail Station Only) | 7090 | HXX | 4.52 KM |
Nearby Listings
| Address | Price | Type | Score | Distance |
|---|---|---|---|---|
| Hengrove Crescent, Ashford, TW15 | £ 435,000 | BUY | 7 / 10 | 0.00 KM |
| Hengrove Crescent, Ashford | £ 425,000 | BUY | 7 / 10 | 0.01 KM |
| Hengrove Crescent, Ashford | £ 445,000 | BUY | 5 / 10 | 0.05 KM |
| Moretaine Road, Ashford | £ 425,000 | BUY | Unknown | 0.07 KM |
| Cumberland Road, Ashford, Surrey, TW15 | £ 425,000 | BUY | 6 / 10 | 0.10 KM |
Nearby Properties
| Address | Price | Distance |
|---|---|---|
| 2 Hengrove Crescent | £ 332,000 | 0.01 KM |
| 54 Hengrove Crescent | £ 180,000 | 0.01 KM |
| 50 Hengrove Crescent | £ 338,000 | 0.01 KM |
| 52 Hengrove Crescent | £ 230,000 | 0.01 KM |
| 20 Hengrove Crescent | £ 290,000 | 0.01 KM |