Abbey Street, Rugby, Warwickshire,CV21 3LL
By Property Solvers
£ 145,000
Reviews
2 out of 5 stars
Property Solvers says ..
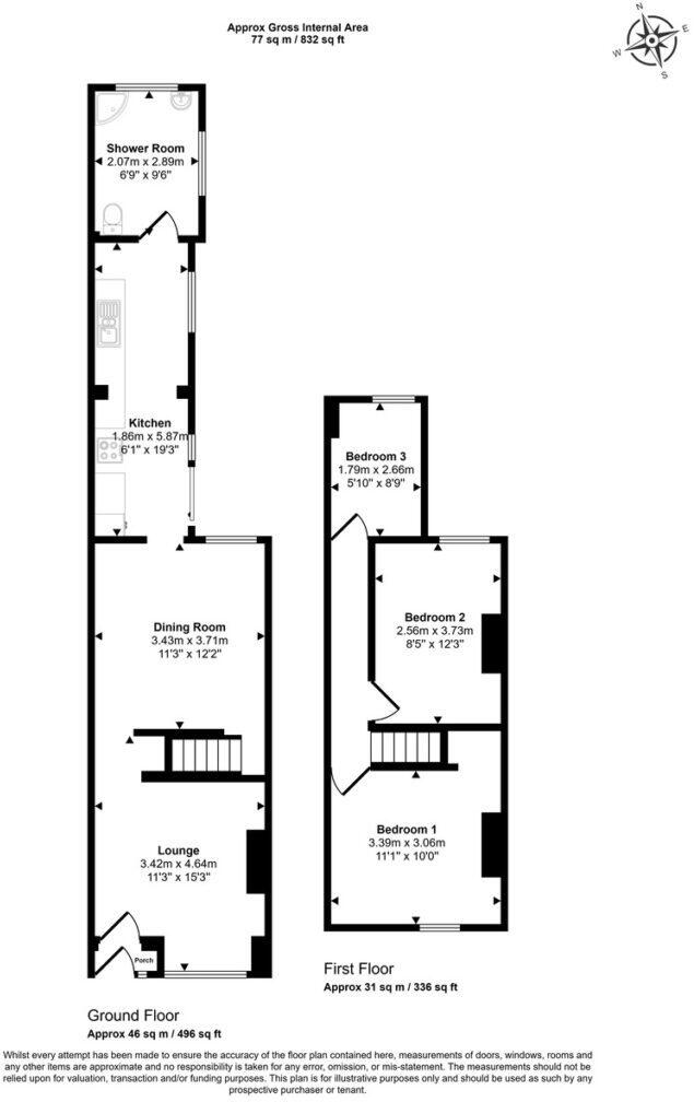
This property is to be offered for sale by PROPERTY SOLVERS ONLINE CONDITIONAL AUCTION (56-DAY EXCHANGE/COMPLETION). Bidding opens on 14th May at 12:00 and closes on 20th May at 12:00 with a GUIDE PRICE of £145,000. Property Solvers Auctions is thrilled to present this spacious 832 sq ft en...
Property Oracle says ..
This three-bedroom end of terrace house is located on Abbey Street in Rugby, Warwickshire. The property is listed at £145,000 and has 828.82 sqft of living space. While the average price for similar properties in the area is £200,692, this property is significantly lower. The property benefits from being close to local amenities and schools, including St Andrew’s Benn Cofe Primary School (rated “Good” by Ofsted) and Rugby train station (0.32km away). However, the property appears to be in need of some modernisation and updating, as seen in the provided images. The garden is small and requires maintenance. Considering the condition, location, and size, the asking price may represent good value for money, but potential buyers should factor in renovation costs.
Therefore, we give this property 5 / 10. *Disclaimer: This is our option and does constitute a recommendation or financial advice. Do your own research. *
- Price
- 7
- Condition
- 4
- Location
- 7
- Land
- 3
- Bedrooms
- 3
- Bathrooms
- 1
- Sqft (est)
- 828.82
The heatmap indicates the level of crime in the area. The color of the heatmap indicates the crime severity and recency.
Metrics Year-on-Year
- Average area value
- 252,500.00 £Increased by 21.08 %
- Est sale value
- 271,852.96 £Increased by 51.15 %
- Average area rental value
- 820.00 £/moDecreased by 68.92 %
- Est letting value
- 828.82 £/moDecreased by 50.00 %
- Est rental Yield
- 3.90 %Decreased by 74.31 %
- Crime Rate
- 17.00 %Unchanged by 0.00 %
Agent Activity
Property Solvers created the listing.
Nearby Schools
| Name | Type | Ofsted | Distance |
|---|---|---|---|
| Claremont Children'S Centre (Formerly Rugby Parents Centre) | Children's Centre | 0.34 KM | |
| St Andrew'S Benn Cofe (Voluntary Aided) Primary School | Voluntary Aided School | Good | 0.35 KM |
| Northlands Primary School | Community School | Good | 0.94 KM |
| Lawrence Sheriff School | Academy Converter | 1.06 KM | |
| Eastlands Primary School | Community School | Good | 1.39 KM |
Images
Nearby Streets
| Name | Average Price | Average Sqft | Distance |
|---|---|---|---|
| Barter Place | £ 0 | 0 | 0.00 KM |
| Gavel Drive | £ 0 | 0 | 0.00 KM |
| Craven Road | £ 200,000 | 0 | 0.00 KM |
| Parsons Close | £ 0 | 0 | 0.00 KM |
| Albert Square | £ 0 | 0 | 0.00 KM |
Nearby Transport
| Name | NLC | TLC | Distance |
|---|---|---|---|
| Rugby | 1087 | RUG | 0.32 KM |
Nearby Listings
| Address | Price | Type | Score | Distance |
|---|---|---|---|---|
| Abbey Street, Rugby, Warwickshire,CV21 3LL | £ 145,000 | BUY | 5 / 10 | 0.00 KM |
| Abbey Street, Rugby | £ 179,950 | BUY | 5 / 10 | 0.02 KM |
| Abbey Street, Rugby | £ 175,000 | BUY | 6 / 10 | 0.02 KM |
| Abbey Street, Rugby | £ 170,000 | BUY | Unknown | 0.05 KM |
| Oxford Street, Rugby | £ 200,000 | BUY | 5 / 10 | 0.13 KM |
Nearby Properties
| Address | Price | Distance |
|---|---|---|
| 84 Abbey Street | £ 135,000 | 0.02 KM |
| 105 Abbey Street | £ 95,000 | 0.02 KM |
| 74 Abbey Street | £ 104,000 | 0.02 KM |
| 64 Abbey Street | £ 108,000 | 0.02 KM |
| 57 Abbey Street | £ 124,000 | 0.02 KM |