Coast Road, West Mersea
OA

Coast Road, West Mersea

By Oakheart Property

£ 1,250,000

Reviews

3 out of 5 stars

Oakheart Property says ..

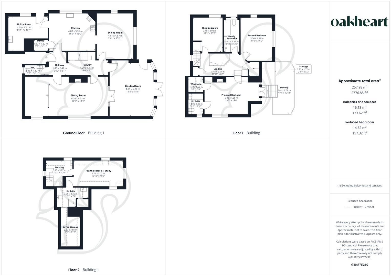
Besom House, is an exceptional coastal residence offering a blend of period charm and modern living. This substantial home is beautifully positioned on a corner plot, enjoying superb views over the Anchorage and Blackwater Estuary. With spacious and versatile accommodation across three floors, th...

Property Oracle says ..

Therefore, we give this property 7 / 10. *Disclaimer: This is our option and does constitute a recommendation or financial advice. Do your own research. *

Price
7
Condition
8
Location
9
Land
7
Bedrooms
4
Bathrooms
3
Sqft (est)
2,881.61

The heatmap indicates the level of crime in the area. The color of the heatmap indicates the crime severity and recency.

Metrics Year-on-Year

Average area value
343,500.00 £
Decreased by 10.23 %
from 382,656.00 £
Est sale value
867,364.61 £
Increased by 62.70 %
from 533,097.85 £
Average area rental value
1,207.00 £/mo
Decreased by 5.18 %
from 1,273.00 £/mo
Est letting value
2,881.61 £/mo
from 0.00 £/mo
Est rental Yield
4.22 %
Increased by 5.76 %
from 3.99 %
Crime Rate
5.00 %
Unchanged by 0.00 %
from 5.00 %

Agent Activity

  • Oakheart Property created the listing.

Nearby Schools

NameTypeOfstedDistance
Mersea Island SchoolFoundation SchoolGood1.95 KM
St Cedd'S Church Of England Primary SchoolAcademy Sponsor LedGood5.82 KM
Langenhoe Community Primary SchoolCommunity SchoolRequires improvement6.13 KM
Tollesbury SchoolCommunity SchoolGood7.45 KM
Cherry Tree AcademyAcademy Sponsor LedRequires improvement8.90 KM

Images

Principle Bedroom Door Leading to Balcony Balcony Balcony Second Bedroom Front Shot Living Room View From Balcony Dining Room BesomHouse-071.jpg Garden Room Hallway Dining Room Kitchen Kitchen Kitchen Living Room Study Area Living Room Fireplace Living Room Downstairs W.C Garden Room External View of Garden Room Garden Garden Garden 1st Floor Landing Principle Bedroom Principle Bedroom BesomHouse-065---Copy.jpg View from Balcony En Suite Second Bedroom Third Bedroom 2nd Floor Landing View From Fourth Bedroom View From Balcony Fourth Bedroom En Suite En Suite BesomHouse-069---Copy.jpg View From Balcony Entrance BesomHouse-070.jpg Second Bedroom Family Bathroom Family Bathroom Third Bedroom

Nearby Streets

NameAverage PriceAverage SqftDistance
Rosebank £ 000.00 KM
Meadow Lane £ 825,00000.00 KM

Nearby Listings

AddressPriceTypeScoreDistance
Coast Road, West Mersea £ 1,000,000BUYUnknown0.00 KM
Coast Road, West Mersea £ 1,250,000BUY7 / 100.00 KM
Victory Road, West Mersea £ 350,000BUY7 / 100.10 KM
Coast Road, West Mersea £ 1,150,000BUY7 / 100.17 KM
Victory Road, West Mersea £ 415,000BUY6 / 100.27 KM

Nearby Properties

AddressPriceDistance
10 Firs Hamlet £ 822,5000.15 KM
6 Firs Hamlet £ 850,0000.15 KM
12 Firs Hamlet £ 585,0000.15 KM
102 Coast Road £ 500,0000.17 KM
100 Coast Road £ 850,0000.17 KM