Buttermere Close, Walton-Le-Dale, Preston
By Ben Rose Estate Agents
£ 165,000
Reviews
2 out of 5 stars
Ben Rose Estate Agents says ..
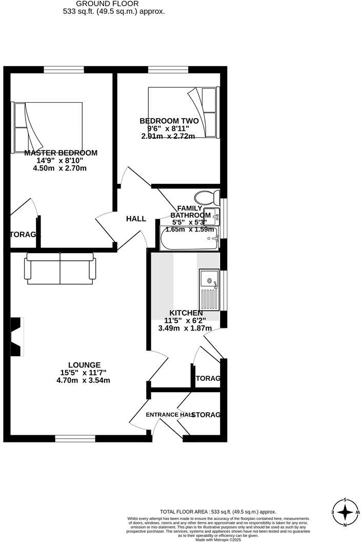
Ben Rose Estate Agents are thrilled to present this charming two-bedroom, semi-detached bungalow, nestled in a peaceful cul-de-sac in Walton-Le-Dale and offered with no onward chain. While the property requires some modernisation, it offers a fantastic opportunity for first-time buyers or those l...
Property Oracle says ..
This property is a detached bungalow located in Walton-le-Dale, Preston. It is close to several schools and train stations, making it a convenient location for families and commuters. The property itself is in need of significant renovation, as evidenced by the dated kitchen and bathroom, and the overall condition of the property. The plot size is relatively small, but there is a garden. The list price is lower than the average price for the area, but this is likely due to the condition of the property. Therefore, it may represent good value for money for a buyer willing to undertake a full refurbishment.
Therefore, we give this property 5 / 10. *Disclaimer: This is our option and does constitute a recommendation or financial advice. Do your own research. *
- Price
- 6
- Condition
- 3
- Location
- 7
- Land
- 4
- Bedrooms
- 2
- Bathrooms
- 1
- Sqft (est)
- 521.25
- Lot (est)
- 533.00
The heatmap indicates the level of crime in the area. The color of the heatmap indicates the crime severity and recency.
Metrics Year-on-Year
- Average area value
- 472,750.00 £Decreased by 21.88 %
- Est sale value
- 400,841.25 £Increased by 27.74 %
- Average area rental value
- 1,418.00 £/moDecreased by 35.04 %
- Est letting value
- 1,042.50 £/moUnchanged by 0.00 %
- Est rental Yield
- 3.60 %Decreased by 16.86 %
- Crime Rate
- 3.00 %Unchanged by 0.00 %
Agent Activity
Ben Rose Estate Agents created the listing.
Nearby Schools
| Name | Type | Ofsted | Distance |
|---|---|---|---|
| Walton-Le-Dale Community Primary School | Community School | Good | 0.41 KM |
| St Mary'S And St Benedict'S Roman Catholic Primary School | Voluntary Aided School | Good | 0.54 KM |
| Brownedge St Mary'S Catholic High School | Voluntary Aided School | Good | 0.89 KM |
| Cuerden Church School, Bamber Bridge | Voluntary Aided School | Good | 1.35 KM |
| Bamber Bridge Children'S Centre | Children's Centre | 1.43 KM |
Images
Nearby Streets
| Name | Average Price | Average Sqft | Distance |
|---|---|---|---|
| Buttermere Close | £ 0 | 0 | 0.00 KM |
| Farm Lane | £ 0 | 0 | 0.00 KM |
| Brownedge Walk | £ 0 | 0 | 0.00 KM |
| Kent Avenue | £ 0 | 0 | 0.00 KM |
| School Street | £ 0 | 0 | 0.00 KM |
Nearby Transport
| Name | NLC | TLC | Distance |
|---|---|---|---|
| Bamber Bridge | 2561 | BMB | 1.18 KM |
| Lostock Hall | 2689 | LOH | 2.33 KM |
| Leyland | 2710 | LEY | 4.40 KM |
| Preston (Lancs) | 2753 | PRE | 5.04 KM |
| Buckshaw Parkway | 7501 | BSV | 6.79 KM |
Nearby Listings
| Address | Price | Type | Score | Distance |
|---|---|---|---|---|
| Buttermere Close, Walton-Le-Dale, Preston | £ 165,000 | BUY | 5 / 10 | 0.00 KM |
| Rydal Avenue, Walton-le-Dale, Preston, Lancashire | £ 215,000 | BUY | 7 / 10 | 0.09 KM |
| Rydal Avenue, Walton-le-Dale, Preston, Lancashire, PR5 | £ 235,000 | BUY | 8 / 10 | 0.10 KM |
| Kentmere Avenue, Walton-Le-Dale, Preston | £ 195,000 | BUY | Unknown | 0.11 KM |
| Coniston Drive, Walton-Le-Dale, Preston | £ 275,000 | BUY | Unknown | 0.14 KM |
Nearby Properties
| Address | Price | Distance |
|---|---|---|
| 7 Buttermere Close | £ 115,000 | 0.03 KM |
| 5 Buttermere Close | £ 159,950 | 0.03 KM |
| 13 Buttermere Close | £ 160,000 | 0.03 KM |
| 1 Buttermere Close | £ 61,000 | 0.03 KM |
| 10 Buttermere Close | £ 125,000 | 0.03 KM |