Charles Eden says ..
Charles Eden are delighted to present this well appointed three bedroom terraced house set in a desirable, gated development in Beckenham. The property is situated close to versatile transport links serving London Bridge/Charing Cross, with local amenities and schools nearby.
Property Oracle says ..
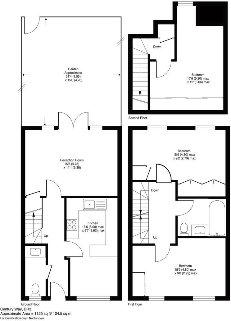
This three-bedroom, two-bathroom house located on Century Way, Beckenham, BR3 1BY, presents a compelling opportunity for buyers seeking a modern and conveniently located property. The property benefits from a recent refurbishment or modern build, evidenced by the sleek kitchen and bathrooms, and contemporary décor throughout. The property is presented in immaculate condition, offering comfortable and well-proportioned living spaces.
The property’s location in Copers Cope provides a good balance between peaceful residential living and easy access to amenities. Several Southeastern train stations are within walking or short cycling distance, making commuting into London straightforward. The proximity to highly-rated schools further enhances its appeal for families. While the property lacks an extensive garden, the small, paved patio is still usable for outdoor relaxation.
The asking price is competitive within the context of the Beckenham property market. However, additional information regarding the square footage of comparable properties could allow for a more precise assessment of the price per square foot value. Overall, this property offers a balanced package of location, condition, and price, making it attractive to a variety of prospective buyers.
Therefore, we give this property 6 / 10. *Disclaimer: This is our option and does constitute a recommendation or financial advice. Do your own research. *
- Price
- 7
- Condition
- 8
- Location
- 7
- Land
- 4
- Bedrooms
- 3
- Bathrooms
- 2
- Sqft (est)
- 1,124.83
The heatmap indicates the level of crime in the area. The color of the heatmap indicates the crime severity and recency.
Metrics Year-on-Year
- Average area value
- 440,454.00 £Decreased by 13.97 %
- Est sale value
- 599,534.39 £Increased by 14.62 %
- Average area rental value
- 1,581.00 £/moDecreased by 15.18 %
- Est letting value
- 1,124.83 £/moUnchanged by 0.00 %
- Est rental Yield
- 4.31 %Decreased by 1.37 %
- Crime Rate
- 2.00 %Unchanged by 0.00 %
Agent Activity
Charles Eden created the listing.
Nearby Schools
| Name | Type | Ofsted | Distance |
|---|---|---|---|
| Worsley Bridge Primary School | Academy Sponsor Led | Good | 0.84 KM |
| Harris Girls Academy Bromley | Academy Converter | Outstanding | 0.88 KM |
| Haseltine Primary School | Community School | Good | 1.08 KM |
| Our Lady And St Philip Neri Roman Catholic Primary School | Voluntary Aided School | Good | 1.19 KM |
| Kings London | Other Independent School | Good | 1.27 KM |
Images
Nearby Streets
| Name | Average Price | Average Sqft | Distance |
|---|---|---|---|
| Hatcham Street | £ 380,163 | 0 | 0.00 KM |
| Worsley Bridge Road | £ 403,571 | 0 | 0.00 KM |
| Monivea Road | £ 0 | 0 | 0.00 KM |
| Adelaide Court | £ 250,000 | 0 | 0.00 KM |
| Thomas Dean Road | £ 625,000 | 0 | 0.00 KM |
Nearby Transport
| Name | NLC | TLC | Distance |
|---|---|---|---|
| New Beckenham | 5058 | NBC | 0.29 KM |
| Lower Sydenham | 5053 | LSY | 0.66 KM |
| Beckenham Junction | 5046 | BKJ | 1.22 KM |
| Clock House | 5048 | CLK | 1.38 KM |
| Kent House | 5080 | KTH | 1.47 KM |
Nearby Listings
| Address | Price | Type | Score | Distance |
|---|---|---|---|---|
| Century Way, Beckenham | £ 725,000 | BUY | 6 / 10 | 0.00 KM |
| Century Way, Beckenham | £ 800,000 | BUY | 7 / 10 | 0.06 KM |
| Century Way, Beckenham | £ 800,000 | BUY | 7 / 10 | 0.06 KM |
| Century Way, Beckenham, BR3 | £ 800,000 | BUY | 7 / 10 | 0.10 KM |
| Copers Cope Road, Beckenham, BR3 | £ 1,000,000 | BUY | 7 / 10 | 0.11 KM |
Nearby Properties
| Address | Price | Distance |
|---|---|---|
| 3 Century Way | £ 640,000 | 0.07 KM |
| 31 Century Way | £ 399,950 | 0.07 KM |
| 30 Century Way | £ 478,000 | 0.07 KM |
| 1 Century Way | £ 740,000 | 0.07 KM |
| 6 Century Way | £ 725,000 | 0.07 KM |