St. Stephens Road, Saltash, Cornwall
By Bradleys
£ 200,000
Reviews
3 out of 5 stars
Bradleys says ..
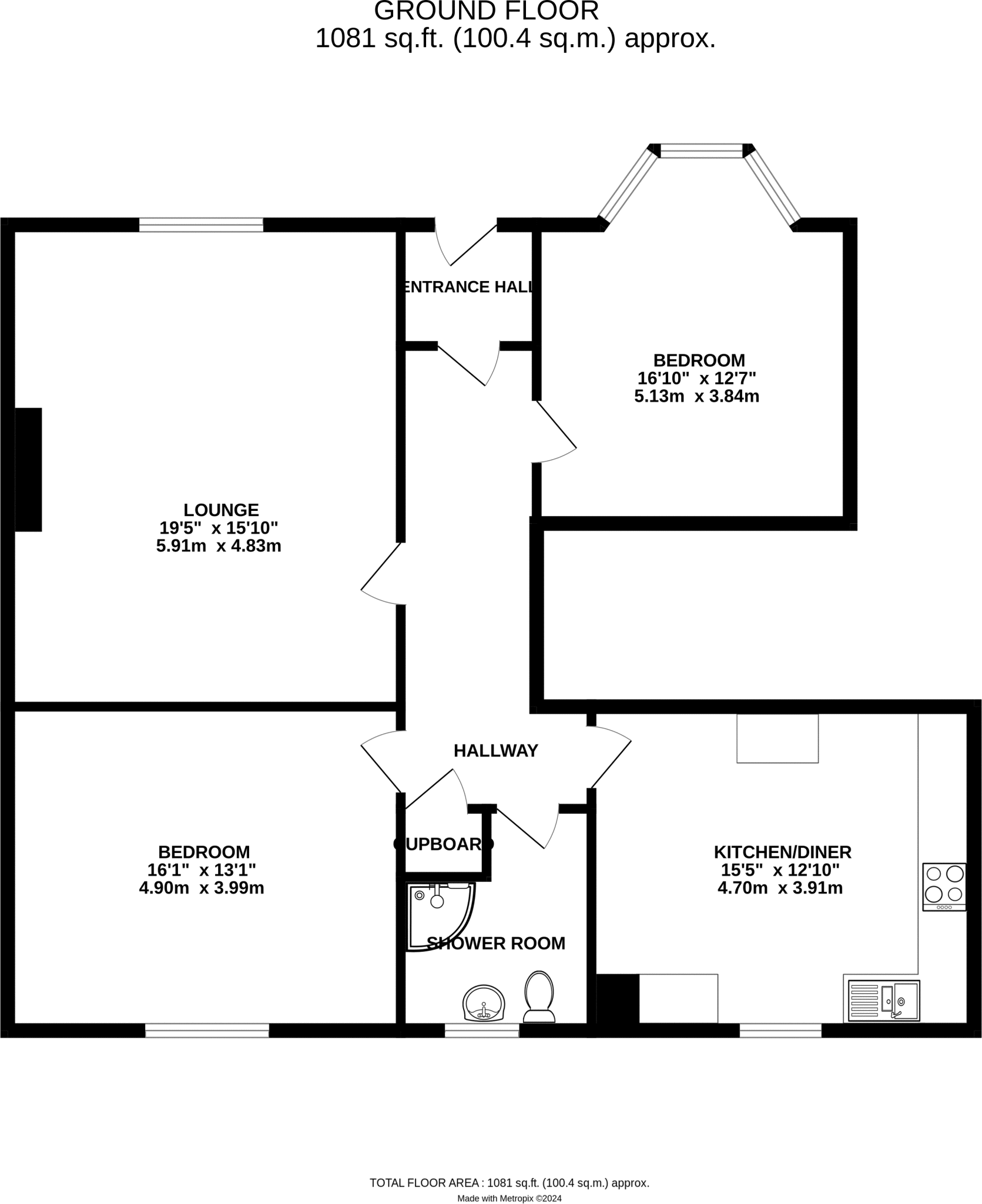
FIRST FLOOR APARTMENT IN A CENTRAL LOCATION. This first floor apartment has a grand entrance and is centrally located in Saltash. The accommodation comprises 19'5 lounge, 16'10 fitted kitchen/diner, two double bedrooms and a shower room. uPVC double glazing. Electric heating. Partial vi...
Property Oracle says ..
This is a 2-bedroom apartment located on St. Stephens Road, Saltash, Cornwall. The property is listed for £200,000. Saltash is a popular residential area with good transport links and local amenities. The apartment appears to be in a generally fair condition, although some modernisation could be beneficial. It includes a garden and off street parking. The property is located within walking distance of several schools and Saltash train station. The price seems reasonable when compared to the average property price in the area, considering it is an apartment.
Therefore, we give this property 7 / 10. *Disclaimer: This is our option and does constitute a recommendation or financial advice. Do your own research. *
- Price
- 8
- Condition
- 6
- Location
- 7
- Land
- 7
- Bedrooms
- 2
- Bathrooms
- 1
- Sqft (est)
- 67.75
The heatmap indicates the level of crime in the area. The color of the heatmap indicates the crime severity and recency.
Metrics Year-on-Year
- Average area value
- 380,500.00 £Decreased by 7.95 %
- Est sale value
- 20,663.75 £Increased by 0.66 %
- Average area rental value
- 1,550.00 £/moIncreased by 31.91 %
- Est letting value
- 67.75 £/mo
- Est rental Yield
- 4.89 %Increased by 43.40 %
- Crime Rate
- 7.00 %Unchanged by 0.00 %
Agent Activity
Bradleys created the listing.
Nearby Schools
| Name | Type | Ofsted | Distance |
|---|---|---|---|
| Brunel Primary & Nursery Academy | Academy Converter | Special Measures | 0.21 KM |
| Saltash & Torpoint Children'S Centre | Children's Centre Linked Site | 0.31 KM | |
| Bishop Cornish Cofe Va Primary School | Voluntary Aided School | Good | 0.63 KM |
| St Stephens (Saltash) Community Primary School | Community School | Good | 0.66 KM |
| Saltash Community School | Academy Converter | Requires improvement | 0.71 KM |
Images
Nearby Streets
| Name | Average Price | Average Sqft | Distance |
|---|---|---|---|
| Windsor Lane | £ 0 | 0 | 0.00 KM |
| King Edward Road | £ 0 | 0 | 0.00 KM |
| Victoria Road | £ 290,000 | 0 | 0.00 KM |
| Fore Street | £ 0 | 0 | 0.00 KM |
| Barn Park | £ 0 | 0 | 0.00 KM |
Nearby Transport
| Name | NLC | TLC | Distance |
|---|---|---|---|
| Saltash | 3587 | STS | 1.04 KM |
| St Budeaux Victoria Road | 3592 | SBV | 3.50 KM |
| St Budeaux Ferry Road | 3590 | SBF | 3.58 KM |
| Keyham | 3571 | KEY | 4.76 KM |
| Dockyard (Devonport) | 3588 | DOC | 5.53 KM |
Nearby Listings
| Address | Price | Type | Score | Distance |
|---|---|---|---|---|
| St. Stephens Road, Saltash, Cornwall | £ 200,000 | BUY | 7 / 10 | 0.00 KM |
| St. Stephens Road, Saltash, PL12 4BQ | £ 340,000 | BUY | 6 / 10 | 0.01 KM |
| Warfelton Terrace, Saltash | £ 340,000 | BUY | 6 / 10 | 0.14 KM |
| Trelawney Road, Saltash, Cornwall | £ 325,000 | BUY | 6 / 10 | 0.17 KM |
| Trelawney Road, Saltash, PL12 4DB | £ 400,000 | BUY | 6 / 10 | 0.17 KM |
Nearby Properties
| Address | Price | Distance |
|---|---|---|
| 32 Higher Port View | £ 225,000 | 0.07 KM |
| 19 Higher Port View | £ 352,500 | 0.07 KM |
| 34 Higher Port View | £ 250,000 | 0.07 KM |
| 25 Higher Port View | £ 339,000 | 0.07 KM |
| 20 Higher Port View | £ 196,000 | 0.07 KM |