Julian Marks says ..
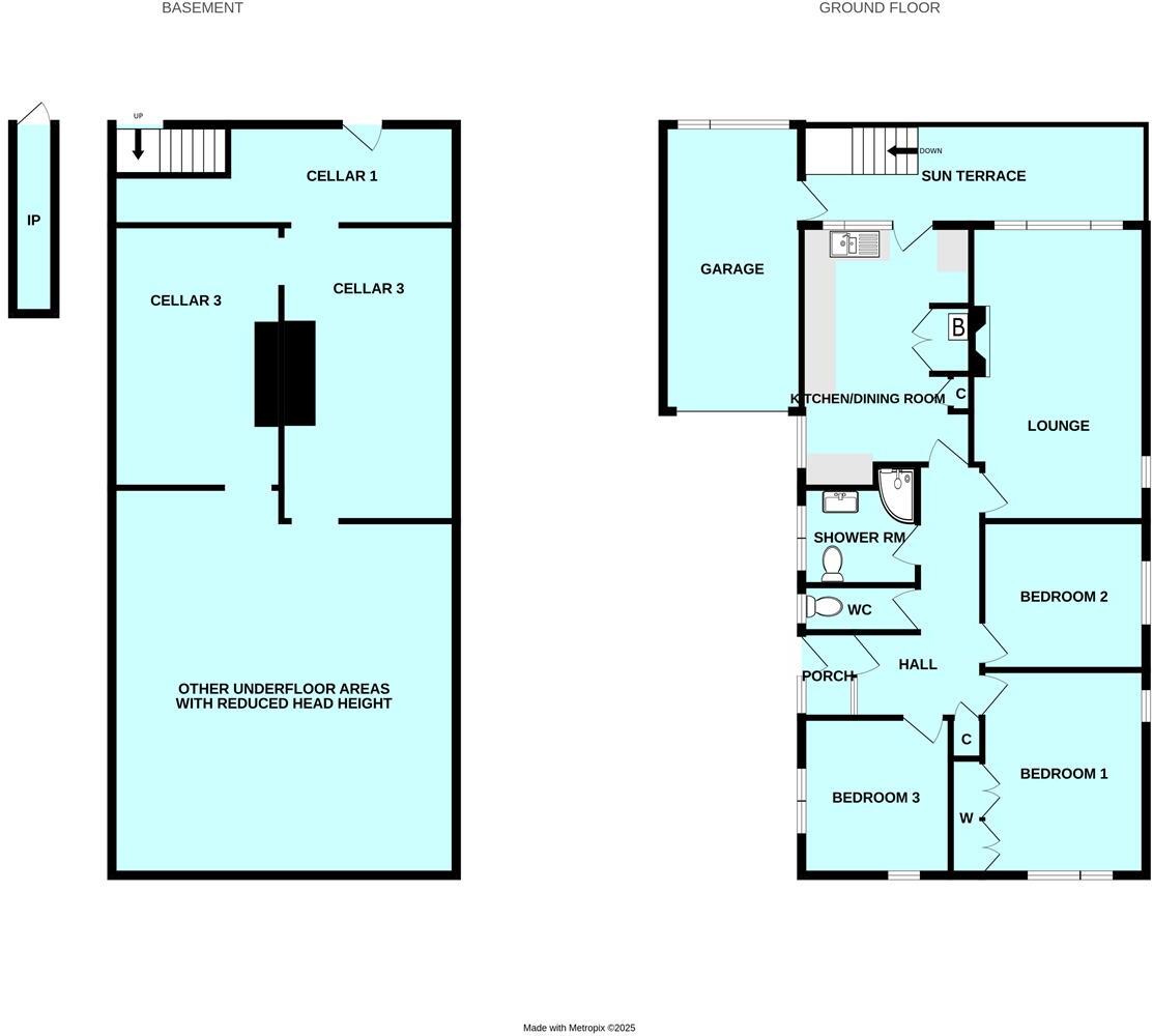
Well proportioned detached bungalow located on the south side of Bearsdown Close with a southerly facing rear garden. The property built as part of a self-build group circa 1960s having the benefit of gas fired central heating & uPVC double-glazing. The accommodation including a 19ft large lounge...
Property Oracle says ..
The property is a 3-bedroom detached bungalow located in Bearsdown Close, Eggbuckland, Plymouth, PL6 5TX. It has 1 bathroom and is 1,220 sqft. The asking price is £350,000.
The property benefits from a good location with nearby schools including St Edward’s Cofe Primary School (rated ‘Good’ by Ofsted) and Eggbuckland Vale Primary School (also rated ‘Good’). Several other schools are within a reasonable distance. Transportation links are also easily accessible, with Plymouth railway station approximately 4.34km away.
Based on the provided images, the property appears to be in good condition. The interior is well-maintained and presented. There is evidence of some modernisation, but the property still retains a traditional character. The exterior also appears well-kept with a garden. The garden is of a reasonable size for a bungalow of this type.
Considering the average house price in the area is £301,315 and the average price per sqft is £368, the asking price of £350,000 for this 1,220 sqft property seems slightly high. However, the property’s good condition, location, and inclusion of a garden could justify a premium compared to the average price per sqft. Nearby comparable properties are in a similar price range, although sqft data is missing, making a precise comparison difficult. The lack of plot size information also makes a full assessment of value difficult.
Therefore, we give this property 7 / 10. *Disclaimer: This is our option and does constitute a recommendation or financial advice. Do your own research. *
- Price
- 7
- Condition
- 8
- Location
- 8
- Land
- 6
- Bedrooms
- 3
- Bathrooms
- 1
- Sqft (est)
- 1,220.00
The heatmap indicates the level of crime in the area. The color of the heatmap indicates the crime severity and recency.
Metrics Year-on-Year
- Average area value
- 251,250.00 £Decreased by 14.94 %
- Est sale value
- 362,340.00 £Decreased by 1.33 %
- Average area rental value
- 1,138.00 £/moIncreased by 4.88 %
- Est letting value
- 1,220.00 £/moUnchanged by 0.00 %
- Est rental Yield
- 5.44 %Increased by 23.36 %
- Crime Rate
- 0.00 %
Agent Activity
Julian Marks created the listing.
Nearby Schools
| Name | Type | Ofsted | Distance |
|---|---|---|---|
| Crownlands Children'S Centre | Children's Centre | 0.46 KM | |
| St Edward'S Cofe Primary School | Academy Converter | Good | 0.51 KM |
| Austin Farm Academy | Academy Sponsor Led | Requires improvement | 0.55 KM |
| Eggbuckland Vale Primary School | Academy Converter | Good | 1.07 KM |
| Sweet Peas Peverell Children'S Centre | Children's Centre | 1.30 KM |
Images
Nearby Streets
| Name | Average Price | Average Sqft | Distance |
|---|---|---|---|
| Carisbrooke Road | £ 325,000 | 0 | 0.00 KM |
| Cardigan Road | £ 0 | 0 | 0.00 KM |
| Florida Gardens | £ 0 | 0 | 0.00 KM |
| The Retreat | £ 340,000 | 0 | 0.00 KM |
| Greatfield Road | £ 0 | 0 | 0.00 KM |
Nearby Transport
| Name | NLC | TLC | Distance |
|---|---|---|---|
| Plymouth | 3580 | PLY | 4.34 KM |
| Devonport | 3579 | DPT | 7.07 KM |
| Dockyard (Devonport) | 3588 | DOC | 7.50 KM |
| Keyham | 3571 | KEY | 7.75 KM |
| St Budeaux Ferry Road | 3590 | SBF | 8.49 KM |
Nearby Listings
| Address | Price | Type | Score | Distance |
|---|---|---|---|---|
| Eggbuckland, Plymouth | £ 350,000 | BUY | 7 / 10 | 0.00 KM |
| Bearsdown Close, Eggbuckland, PL6 5TX | £ 480,000 | BUY | 7 / 10 | 0.05 KM |
| Bearsdown Close, Plymouth | £ 340,000 | BUY | Unknown | 0.06 KM |
| Shallowford Road, Eggbuckland, Plymouth | £ 280,000 | BUY | Unknown | 0.17 KM |
| Bowhays Walk, Eggbuckland, Plymouth | £ 200,000 | BUY | 6 / 10 | 0.19 KM |
Nearby Properties
| Address | Price | Distance |
|---|---|---|
| 7 Bearsdown Close | £ 196,000 | 0.06 KM |
| 8 Bearsdown Close | £ 218,000 | 0.06 KM |
| 20 Bearsdown Close | £ 280,000 | 0.06 KM |
| 18 Bearsdown Close | £ 235,000 | 0.06 KM |
| 25 Bearsdown Close | £ 243,000 | 0.06 KM |