ST
Olden Road, Northampton
By Stonhills Estate Agents
£ 180,000
Reviews
3 out of 5 stars
Stonhills Estate Agents says ..
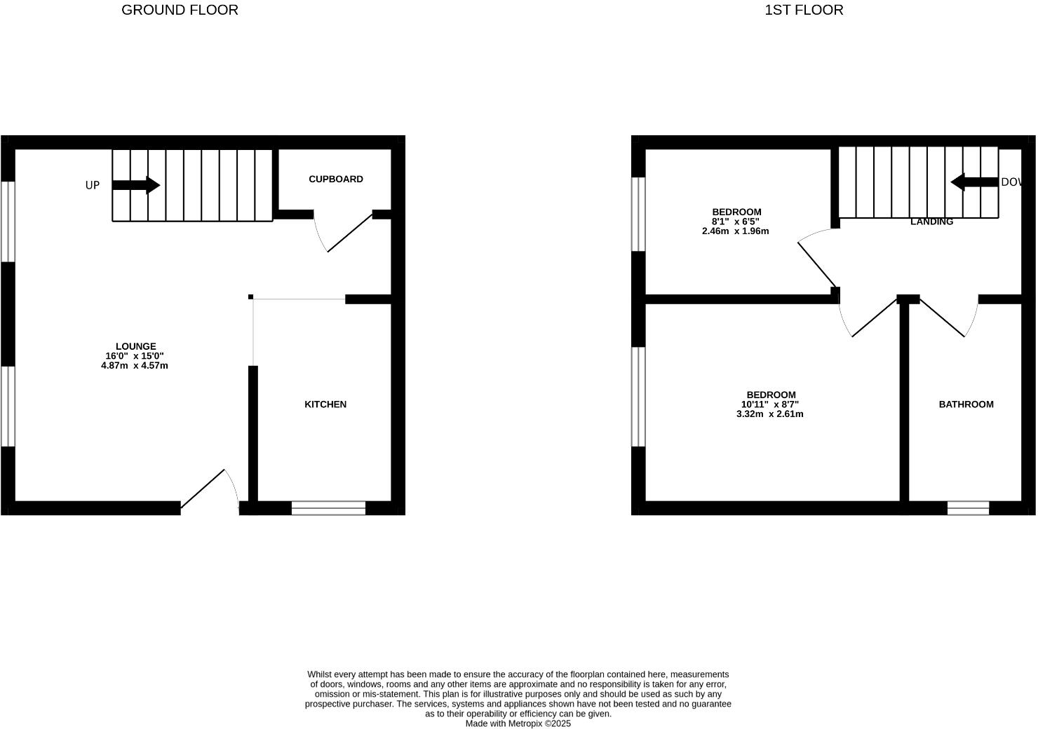
Stonhills are pleased to offer this two-bedroom starter home located in a quiet cul-de-sac in Olden Close, Northampton. The property features an open-plan ground floor layout, two bedrooms, upstairs bathroom, rear garden, and off-road parking for two cars. Ideal for first-time buyers or investors...
Property Oracle says ..
Therefore, we give this property 7 / 10. *Disclaimer: This is our option and does constitute a recommendation or financial advice. Do your own research. *
- Price
- 8
- Condition
- 6
- Location
- 7
- Land
- 7
- Bedrooms
- 2
- Bathrooms
- 1
- Sqft (est)
- 384.81
The heatmap indicates the level of crime in the area. The color of the heatmap indicates the crime severity and recency.
Metrics Year-on-Year
- Average area value
- 283,889.00 £Decreased by 13.57 %
- Est sale value
- 103,129.08 £Decreased by 30.21 %
- Average area rental value
- 1,100.00 £/moDecreased by 8.71 %
- Est letting value
- 384.81 £/moUnchanged by 0.00 %
- Est rental Yield
- 4.65 %Increased by 5.68 %
- Crime Rate
- 26.00 %Unchanged by 0.00 %
from 328,480.00 £
from 147,767.04 £
from 1,205.00 £/mo
from 384.81 £/mo
from 4.40 %
from 26.00 %
Agent Activity
Stonhills Estate Agents created the listing.
Nearby Schools
| Name | Type | Ofsted | Distance |
|---|---|---|---|
| Rectory Farm Primary School | Academy Sponsor Led | Requires improvement | 0.05 KM |
| Blackthorn Primary School | Academy Sponsor Led | 1.00 KM | |
| Blackthorn Good Neighbours | Children's Centre | 1.21 KM | |
| St Andrew'S Ceva Primary School | Voluntary Aided School | Good | 1.48 KM |
| Overstone Park School | Other Independent Special School | 1.64 KM |
Images
Nearby Streets
| Name | Average Price | Average Sqft | Distance |
|---|---|---|---|
| Dingley Walk | £ 199,999 | 0 | 0.00 KM |
| Jasmine Road | £ 0 | 0 | 0.00 KM |
| Boddington Walk | £ 0 | 0 | 0.00 KM |
| Hill Berry Rise | £ 0 | 0 | 0.00 KM |
| Overstone Lane | £ 0 | 0 | 0.00 KM |
Nearby Listings
| Address | Price | Type | Score | Distance |
|---|---|---|---|---|
| Olden Road, Northampton | £ 180,000 | BUY | 7 / 10 | 0.00 KM |
| Winnington Close, Rectory Farm, Northampton, NN3 | £ 180,000 | BUY | 5 / 10 | 0.06 KM |
| Winnington Close, Rectory Farm, Northampton NN3 | £ 189,995 | BUY | 7 / 10 | 0.07 KM |
| Morgan Close, Northampton, Northamptonshire, NN3 | £ 225,000 | BUY | Unknown | 0.09 KM |
| Morgan Close, Rectory Farm | £ 190,000 | BUY | Unknown | 0.12 KM |
Nearby Properties
| Address | Price | Distance |
|---|---|---|
| 19 Olden Road | £ 95,000 | 0.02 KM |
| 22 Olden Road | £ 125,500 | 0.02 KM |
| 20 Olden Road | £ 180,000 | 0.02 KM |
| 1 Olden Road | £ 203,000 | 0.02 KM |
| 18 Olden Road | £ 92,000 | 0.02 KM |