Prices Court, Cotton Row, Battersea, London, SW11
By Foxtons
£ 725,000
Reviews
3 out of 5 stars
Foxtons says ..
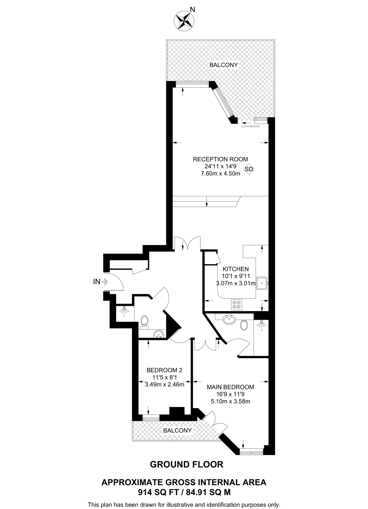
This excellent Riverside apartment offers 2 double bedrooms with the main featuring en suite, large open plan reception, and amazing views from the 2 private balconies.
Property Oracle says ..
This two-bedroom, two-bathroom apartment in Prices Court, Battersea, offers a desirable riverside location in a well-regarded area of London. The property benefits from access to communal gardens and is within close proximity to Imperial Wharf Overground station and other transport links, making it convenient for commuting. The apartment’s interior is presented in generally good condition, featuring a modern kitchen and bathrooms. While the provided photographs showcase a clean and well-maintained space, it is presented unfurnished, offering a limited view of the overall condition. The absence of private outdoor space is a noteworthy factor, but the access to communal green spaces mitigates this. The price of £725,000 appears in line with other similar properties in the neighborhood, but a precise value assessment is difficult due to inconsistent and incomplete square footage data across the nearby property listings. The lack of this crucial detail impacts the final pricing assessment.
Therefore, we give this property 6 / 10. *Disclaimer: This is our option and does constitute a recommendation or financial advice. Do your own research. *
- Price
- 7
- Condition
- 7
- Location
- 8
- Land
- 2
- Bedrooms
- 2
- Bathrooms
- 2
- Sqft (est)
- 913.96
The heatmap indicates the level of crime in the area. The color of the heatmap indicates the crime severity and recency.
Metrics Year-on-Year
- Average area value
- 977,174.00 £Increased by 2.62 %
- Est sale value
- 1,004,442.04 £Increased by 8.81 %
- Average area rental value
- 2,684.00 £/moIncreased by 1.51 %
- Est letting value
- 2,741.88 £/moIncreased by 50.00 %
- Est rental Yield
- 3.30 %Decreased by 0.90 %
- Crime Rate
- 2.00 %Unchanged by 0.00 %
Agent Activity
Foxtons created the listing.
Nearby Schools
| Name | Type | Ofsted | Distance |
|---|---|---|---|
| York Gardens Children'S Centre | Children's Centre | 0.55 KM | |
| Thames Christian School | Other Independent School | 0.59 KM | |
| Falconbrook Primary School | Community School | Good | 0.64 KM |
| Ray'S Playhouse Ltd. | Children's Centre Linked Site | 0.89 KM | |
| Ark John Archer Primary Academy | Academy Converter | 0.92 KM |
Images
Nearby Streets
| Name | Average Price | Average Sqft | Distance |
|---|---|---|---|
| Watermeadow Lane | £ 782,375 | 0 | 0.00 KM |
| William Morris Way | £ 1,505,000 | 0 | 0.00 KM |
| Potters Road | £ 822,500 | 0 | 0.00 KM |
| Albion Quay | £ 895,000 | 0 | 0.00 KM |
| Tours Passage | £ 0 | 0 | 0.00 KM |
Nearby Transport
| Name | NLC | TLC | Distance |
|---|---|---|---|
| Imperial Wharf | 9586 | IMW | 0.83 KM |
| Wandsworth Town | 5576 | WNT | 1.14 KM |
| Clapham Junction | 5595 | CLJ | 1.20 KM |
| West Brompton | 8875 | WBP | 2.71 KM |
| Earlsfield | 5584 | EAD | 2.95 KM |
Nearby Listings
| Address | Price | Type | Score | Distance |
|---|---|---|---|---|
| Prices Court, Cotton Row, Battersea, London, SW11 | £ 725,000 | BUY | 6 / 10 | 0.00 KM |
| Clove Hitch Quay, London, SW11 | £ 1,300,000 | BUY | 7 / 10 | 0.03 KM |
| Cotton Row, London, SW11 | £ 725,000 | BUY | 6 / 10 | 0.03 KM |
| Prices Court, Battersea, SW11 | £ 750,000 | BUY | 8 / 10 | 0.04 KM |
| Cinnamon Row, Clove Hitch Quay, SW11 | £ 1,650,000 | BUY | 7 / 10 | 0.09 KM |
Nearby Properties
| Address | Price | Distance |
|---|---|---|
| 7 Cotton Row | £ 719,000 | 0.05 KM |
| 9 Cotton Row | £ 700,000 | 0.06 KM |
| 6 Cotton Row | £ 775,000 | 0.06 KM |
| 1 Cotton Row | £ 745,000 | 0.06 KM |
| 1 Cinnamon Row | £ 1,700,000 | 0.10 KM |