Ben Rose says ..
**This property is part of the Shared Ownership Scheme and is subject to restrictions under this scheme. This advert is to own 50% of the property, with Onward Homes owning the other 50%. There is also the option to staircase up to 75% of the ownership. For enquiries regarding applications and el...
Property Oracle says ..
Therefore, we give this property 7 / 10. *Disclaimer: This is our option and does constitute a recommendation or financial advice. Do your own research. *
- Price
- 9
- Condition
- 6
- Location
- 8
- Land
- 7
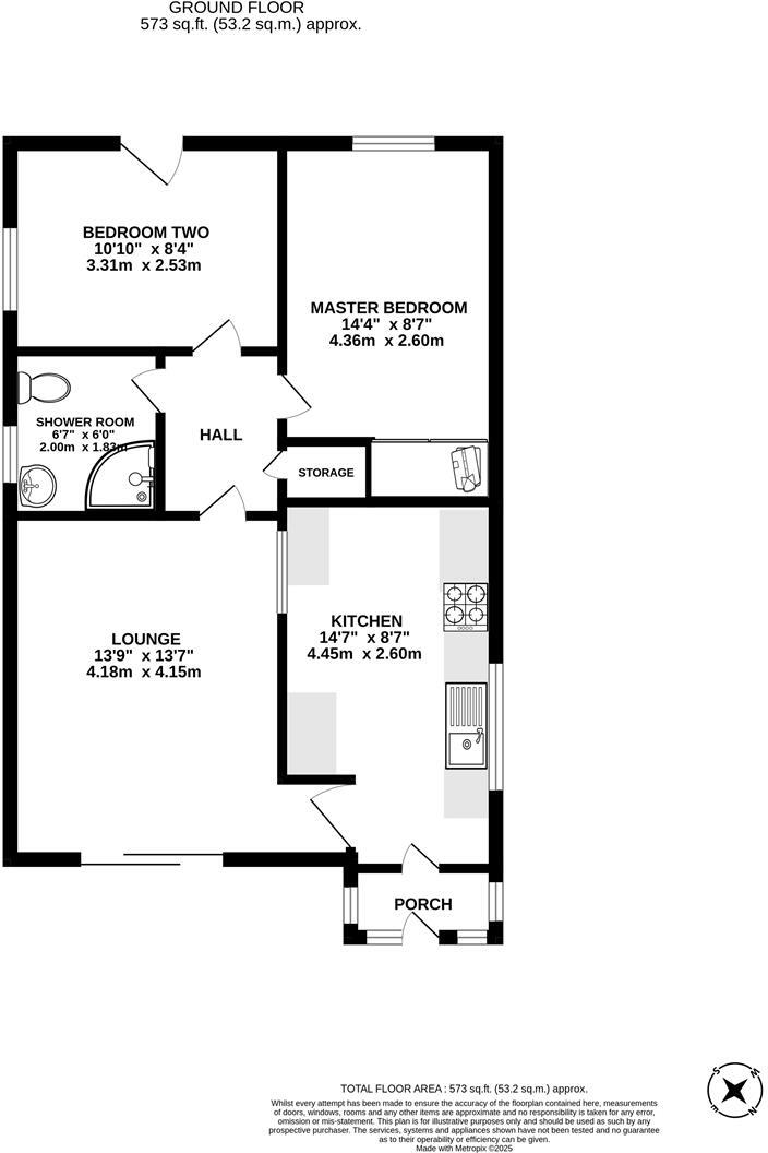
- Bedrooms
- 2
- Bathrooms
- 1
- Sqft (est)
- 573.00
The heatmap indicates the level of crime in the area. The color of the heatmap indicates the crime severity and recency.
Metrics Year-on-Year
- Average area value
- 271,777.00 £Increased by 15.25 %
- Est sale value
- 129,498.00 £Increased by 15.90 %
- Average area rental value
- 761.00 £/moDecreased by 4.04 %
- Est letting value
- 0.00 £/mo
- Est rental Yield
- 3.36 %Decreased by 16.83 %
- Crime Rate
- 12.00 %Unchanged by 0.00 %
from 235,807.00 £
from 111,735.00 £
from 793.00 £/mo
from 0.00 £/mo
from 4.04 %
from 12.00 %
Agent Activity
Ben Rose created the listing.
Nearby Schools
| Name | Type | Ofsted | Distance |
|---|---|---|---|
| Westmorland School | Other Independent Special School | Outstanding | 0.48 KM |
| Shaftesbury High School | Pupil Referral Unit | Good | 0.50 KM |
| Gillibrand Primary School | Community School | Outstanding | 0.54 KM |
| Mayfield School | Community Special School | Good | 0.56 KM |
| Chorley All Saints Church Of England Primary School And Nursery Unit | Voluntary Aided School | Good | 0.58 KM |
Images
Nearby Streets
| Name | Average Price | Average Sqft | Distance |
|---|---|---|---|
| Westbourne Road | £ 199,995 | 0 | 0.00 KM |
| Blackhorse Street | £ 0 | 0 | 0.00 KM |
| Claremont Road | £ 0 | 0 | 0.00 KM |
| Grasmere Terrace | £ 0 | 0 | 0.00 KM |
| Queensgate | £ 0 | 0 | 0.00 KM |
Nearby Transport
| Name | NLC | TLC | Distance |
|---|---|---|---|
| Chorley | 2745 | CRL | 1.42 KM |
| Buckshaw Parkway | 7501 | BSV | 3.98 KM |
| Euxton Balshaw Lane | 2080 | EBA | 4.12 KM |
| Adlington (Lancashire) | 2641 | ADL | 5.28 KM |
| Leyland | 2710 | LEY | 8.03 KM |
Nearby Listings
| Address | Price | Type | Score | Distance |
|---|---|---|---|---|
| Aspen Gardens, Chorley | £ 62,500 | BUY | 7 / 10 | 0.00 KM |
| Walletts Road, Chorley, PR7 | £ 179,995 | BUY | 7 / 10 | 0.07 KM |
| Hindley Street, Chorley | £ 140,000 | BUY | 5 / 10 | 0.08 KM |
| Hindley Street, Chorley | £ 120,000 | BUY | Unknown | 0.11 KM |
| Hindley Street, Chorley, PR7 | £ 110,000 | BUY | 6 / 10 | 0.12 KM |
Nearby Properties
| Address | Price | Distance |
|---|---|---|
| 9 Westbourne Road | £ 97,000 | 0.09 KM |
| 6 Westbourne Road | £ 178,000 | 0.09 KM |
| 5 Westbourne Road | £ 122,500 | 0.09 KM |
| 10 Westbourne Road | £ 250,000 | 0.09 KM |
| 28 Oakwood Road | £ 125,000 | 0.10 KM |