Love Lane, Faversham, Kent, ME13 8YJ
By Fernham Homes
£ 820,000
Reviews
3 out of 5 stars
Fernham Homes says ..
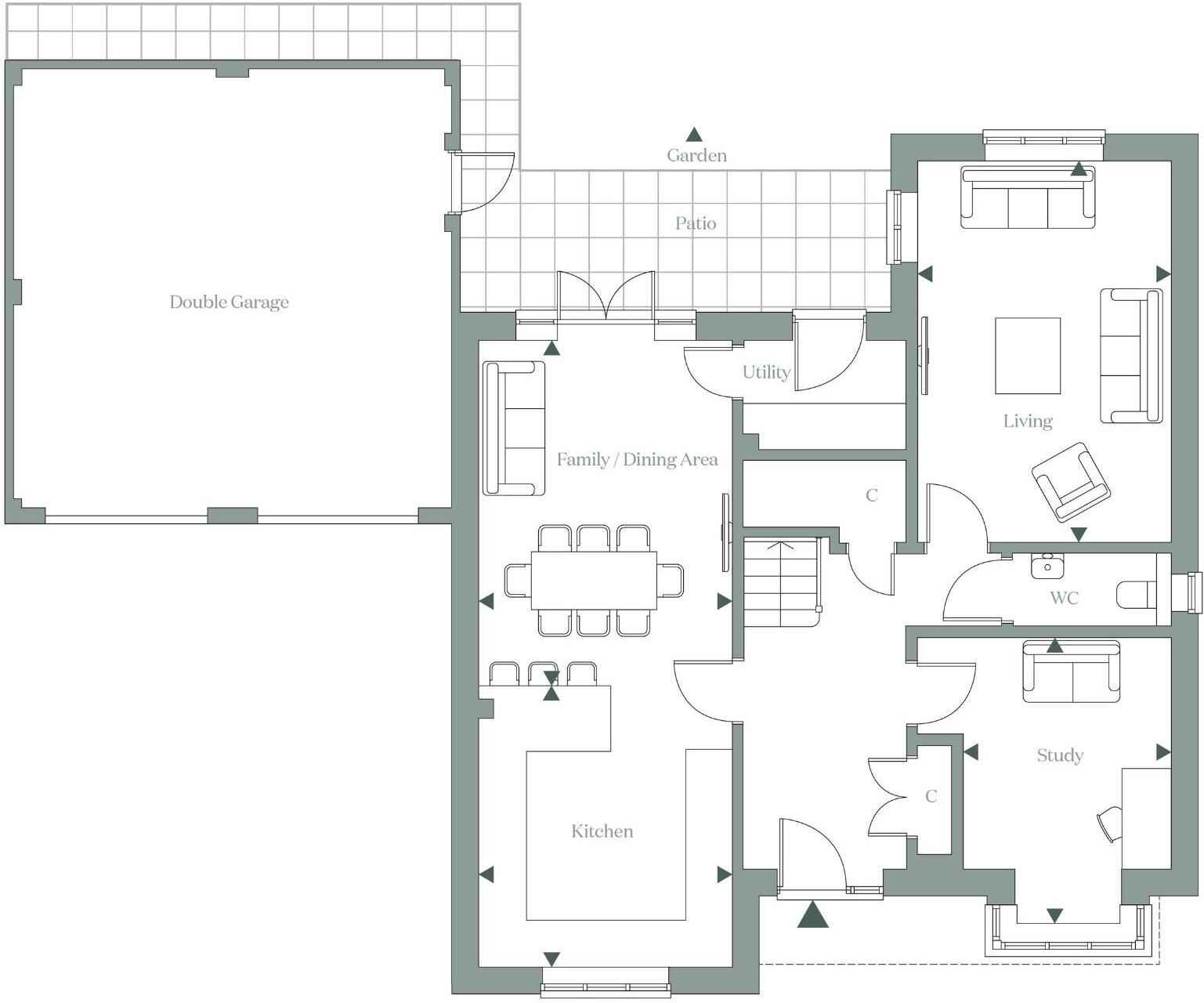
£31,000 Stamp Duty Paid* | The only one of this style! | Showhomes open daily for appointments | Stone worktop, flooring throughout, integrated appliances to kitchen and fitted wardrobe to principal bedroom plus more! | Double garage | The Applehurst
Property Oracle says ..
This is a modern, detached property located in a desirable area of Faversham, Kent. The property is in excellent condition and benefits from good schools and transportation links. However, the property is priced above the average for the area, which may deter some buyers. It has 4 bedrooms and no bathrooms listed, which is unusual and may be an error in the data. The property is approximately 1,300 sqft. Overall, this is a desirable property, but the price may need to be adjusted to attract buyers.
Therefore, we give this property 6 / 10. *Disclaimer: This is our option and does constitute a recommendation or financial advice. Do your own research. *
- Price
- 5
- Condition
- 9
- Location
- 7
- Land
- 6
- Bedrooms
- 4
- Bathrooms
- 0
- Sqft (est)
- 1,300.00
The heatmap indicates the level of crime in the area. The color of the heatmap indicates the crime severity and recency.
Metrics Year-on-Year
- Average area value
- 590,421.00 £Increased by 34.04 %
- Est sale value
- 665,600.00 £Increased by 31.96 %
- Average area rental value
- 1,427.00 £/moDecreased by 43.31 %
- Est letting value
- 1,300.00 £/moDecreased by 50.00 %
- Est rental Yield
- 2.90 %Decreased by 57.73 %
- Crime Rate
- 16.00 %Unchanged by 0.00 %
Agent Activity
Fernham Homes created the listing.
Nearby Schools
| Name | Type | Ofsted | Distance |
|---|---|---|---|
| St Mary Of Charity Cofe (Aided) Primary School | Academy Sponsor Led | Outstanding | 1.19 KM |
| St Mary'S Children'S Centre | Children's Centre | 1.23 KM | |
| Queen Elizabeth'S Grammar School | Academy Converter | Outstanding | 1.36 KM |
| The Abbey School | Academy Converter | Good | 2.05 KM |
| Ethelbert Road Primary School | Community School | Outstanding | 2.31 KM |
Images
Nearby Streets
| Name | Average Price | Average Sqft | Distance |
|---|---|---|---|
| Orchard Cottages | £ 525,000 | 0 | 0.00 KM |
| Dewberry Close | £ 385,000 | 0 | 0.00 KM |
| Chambers Lane | £ 305,000 | 0 | 0.00 KM |
| Kings Drive | £ 511,667 | 0 | 0.00 KM |
| Burbridge Fields | £ 0 | 0 | 0.00 KM |
Nearby Transport
| Name | NLC | TLC | Distance |
|---|---|---|---|
| Faversham | 5167 | FAV | 1.52 KM |
| Selling | 5179 | SEG | 5.31 KM |
Nearby Listings
| Address | Price | Type | Score | Distance |
|---|---|---|---|---|
| Love Lane, Faversham, Kent, ME13 8YJ | £ 400,000 | BUY | 7 / 10 | 0.00 KM |
| Love Lane, Faversham, Kent, ME13 8YJ | £ 440,000 | BUY | 7 / 10 | 0.00 KM |
| Love Lane, Faversham, Kent, ME13 8YJ | £ 400,000 | BUY | 6 / 10 | 0.00 KM |
| Love Lane, Faversham, Kent, ME13 8YJ | £ 820,000 | BUY | 6 / 10 | 0.00 KM |
| Love Lane, Faversham, Kent, ME13 8YJ | £ 420,000 | BUY | 7 / 10 | 0.00 KM |
Nearby Properties
| Address | Price | Distance |
|---|---|---|
| Whiteacres | £ 350,000 | 0.01 KM |
| Moonbeams | £ 480,000 | 0.01 KM |
| 67 Love Lane | £ 122,000 | 0.01 KM |
| Clair-de-lune | £ 410,000 | 0.01 KM |
| 29 Love Lane | £ 245,000 | 0.01 KM |