Crowther Road, South Norwood
By Oaks Estate Agents
£ 425,000
Reviews
3 out of 5 stars
Oaks Estate Agents says ..
Oaks Estate Agents are delighted to welcome to the market this stunning three-bedroom garden flat on the sought after Crowther Road.
Property Oracle says ..
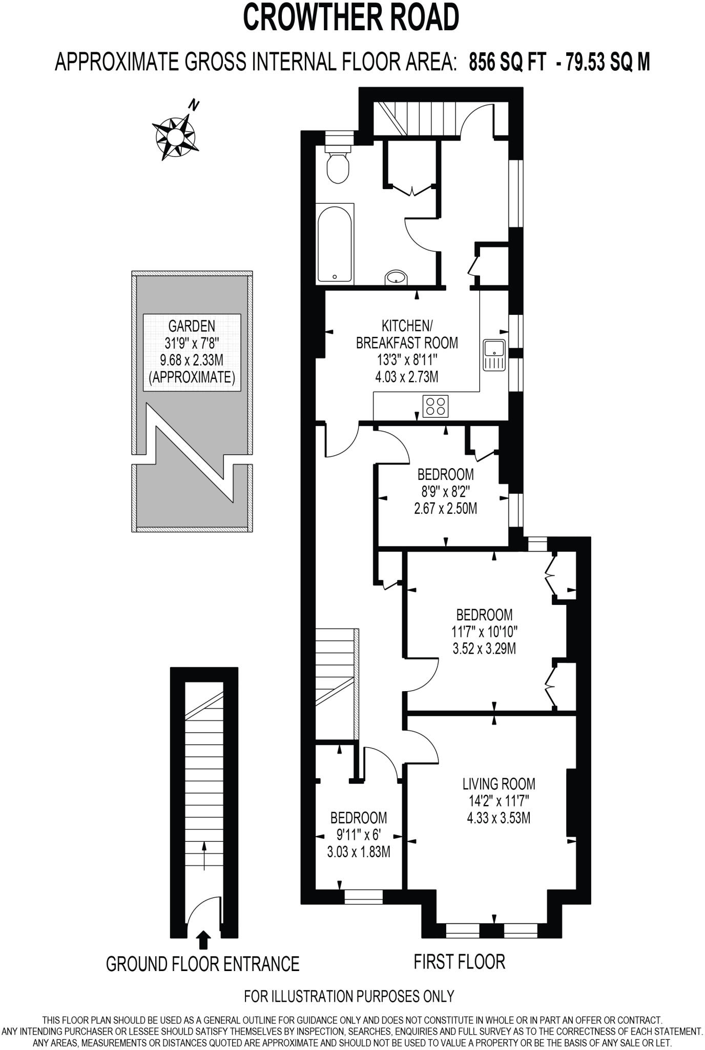
This is a well-presented 3-bedroom apartment in South Norwood. The property benefits from its proximity to transportation links and schools. The interior is modern and well-maintained, and it includes a small garden. The price appears reasonable given the location and the property’s features.
Therefore, we give this property 7 / 10. *Disclaimer: This is our option and does constitute a recommendation or financial advice. Do your own research. *
- Price
- 7
- Condition
- 8
- Location
- 7
- Land
- 6
- Bedrooms
- 3
- Bathrooms
- 1
- Sqft (est)
- 856.05
The heatmap indicates the level of crime in the area. The color of the heatmap indicates the crime severity and recency.
Metrics Year-on-Year
- Average area value
- 489,165.00 £Increased by 16.57 %
- Est sale value
- 533,319.15 £Increased by 28.45 %
- Average area rental value
- 1,679.00 £/moDecreased by 8.30 %
- Est letting value
- 1,712.10 £/moUnchanged by 0.00 %
- Est rental Yield
- 4.12 %Decreased by 21.37 %
- Crime Rate
- 9.00 %Unchanged by 0.00 %
Agent Activity
Oaks Estate Agents created the listing.
Nearby Schools
| Name | Type | Ofsted | Distance |
|---|---|---|---|
| St Mark'S Church Of England Primary Academy | Academy Sponsor Led | Good | 0.26 KM |
| South Norwood Primary | Academy Sponsor Led | 0.28 KM | |
| Crosfield Nursery School | Local Authority Nursery School | Good | 0.33 KM |
| Crosfield Nursery School And Children'S Centre | Children's Centre | 0.33 KM | |
| Harris Academy South Norwood | Academy Sponsor Led | Outstanding | 0.63 KM |
Images
Nearby Streets
| Name | Average Price | Average Sqft | Distance |
|---|---|---|---|
| Crowther Road | £ 0 | 0 | 0.00 KM |
| St Mark's Road | £ 220,000 | 0 | 0.00 KM |
| Foot path 660 | £ 0 | 0 | 0.00 KM |
| Central Place | £ 0 | 0 | 0.00 KM |
| Goat House Bridge | £ 0 | 0 | 0.00 KM |
Nearby Transport
| Name | NLC | TLC | Distance |
|---|---|---|---|
| Norwood Junction | 5376 | NWD | 0.43 KM |
| Anerley | 5397 | ANZ | 1.84 KM |
| Birkbeck | 5401 | BIK | 1.91 KM |
| Selhurst | 5434 | SRS | 1.94 KM |
| Crystal Palace | 5356 | CYP | 2.40 KM |
Nearby Listings
| Address | Price | Type | Score | Distance |
|---|---|---|---|---|
| Crowther Road, South Norwood | £ 400,000 | BUY | 7 / 10 | 0.00 KM |
| Crowther Road, South Norwood | £ 425,000 | BUY | 7 / 10 | 0.00 KM |
| Portland Road, London, SE25 | £ 15,000 | BUY | 5 / 10 | 0.07 KM |
| Balfour Road, London | £ 325,000 | BUY | 6 / 10 | 0.07 KM |
| Portland Road, South Croydon, SE25 | £ 118,750 | BUY | 7 / 10 | 0.07 KM |
Nearby Properties
| Address | Price | Distance |
|---|---|---|
| 22b Crowther Road | £ 43,000 | 0.02 KM |
| 11a Crowther Road | £ 280,000 | 0.02 KM |
| 11b Crowther Road | £ 355,000 | 0.02 KM |
| 23b Crowther Road | £ 23,500 | 0.02 KM |
| 18 Crowther Road | £ 210,000 | 0.02 KM |