Collingwood Road, Birmingham, West Midlands, B30
By Oakmans Estate Agents
£ 325,000
Reviews
3 out of 5 stars
Oakmans Estate Agents says ..
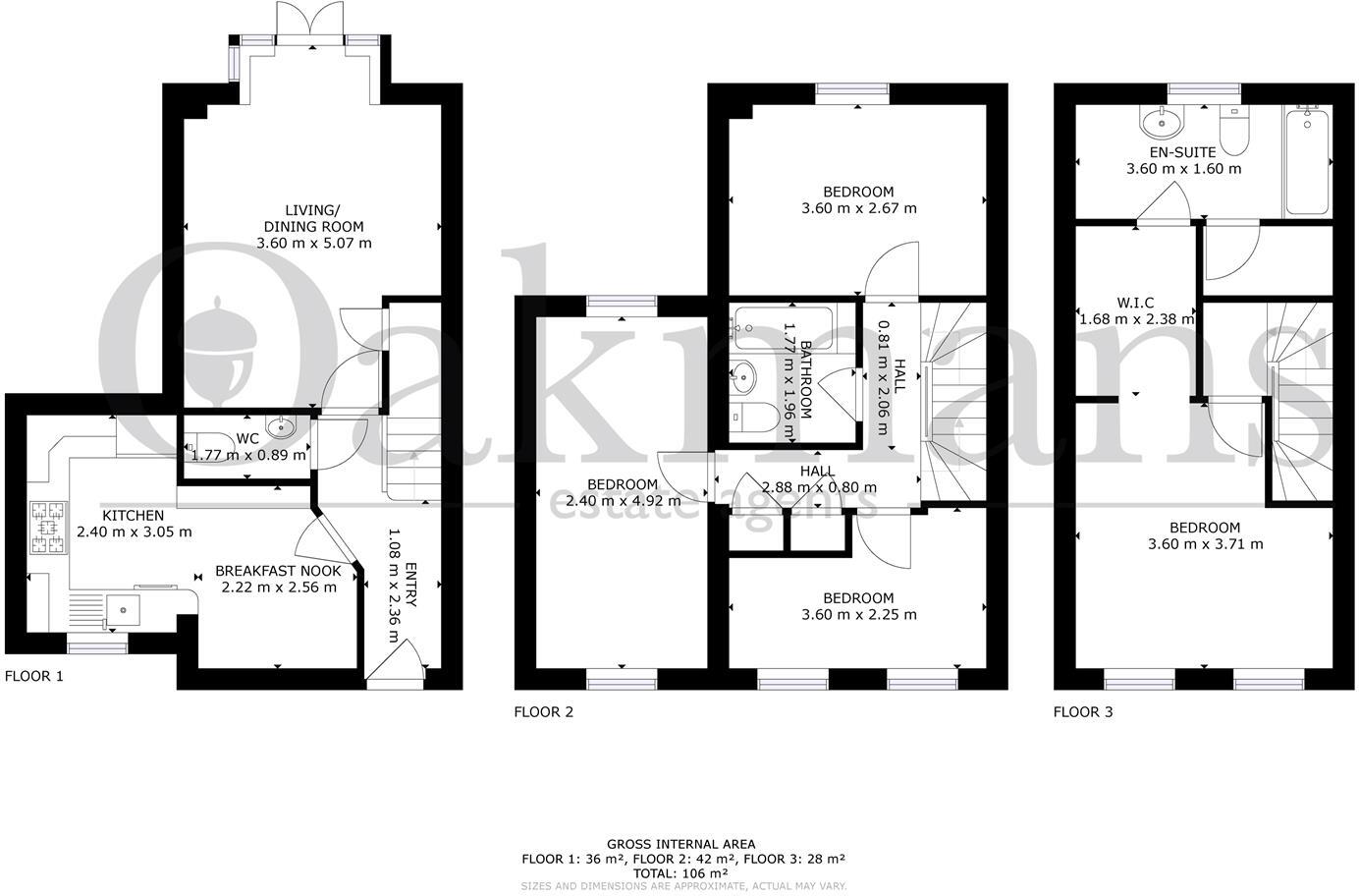
**Viewing is Highly Recommended on this Four Bedroom Spacious Property** Located on the popular Monyhull Estate this four bedroom property is perfect for a growing family, it is located ideally close to local amenities including public transport links, shops and schools and comprises i...
Property Oracle says ..
Therefore, we give this property 7 / 10. *Disclaimer: This is our option and does constitute a recommendation or financial advice. Do your own research. *
- Price
- 6
- Condition
- 8
- Location
- 7
- Land
- 7
- Bedrooms
- 4
- Bathrooms
- 2
- Sqft (est)
- 899.24
The heatmap indicates the level of crime in the area. The color of the heatmap indicates the crime severity and recency.
Metrics Year-on-Year
- Average area value
- 281,000.00 £Increased by 9.76 %
- Est sale value
- 267,973.52 £Increased by 12.03 %
- Average area rental value
- 748.00 £/moDecreased by 41.38 %
- Est letting value
- 0.00 £/moDecreased by 100.00 %
- Est rental Yield
- 3.19 %Decreased by 46.66 %
- Crime Rate
- 8.00 %Unchanged by 0.00 %
from 256,008.00 £
from 239,197.84 £
from 1,276.00 £/mo
from 899.24 £/mo
from 5.98 %
from 8.00 %
Agent Activity
Oakmans Estate Agents created the listing.
Nearby Schools
| Name | Type | Ofsted | Distance |
|---|---|---|---|
| Lindsworth School | Community Special School | Good | 0.41 KM |
| The Oaks Primary School | Community School | Good | 0.69 KM |
| Bells Farm Primary School | Community School | Outstanding | 0.76 KM |
| Woodthorpe Junior And Infant School | Community School | Outstanding | 1.12 KM |
| Broadmeadow Junior School | Community School | Good | 1.48 KM |
Images
Nearby Streets
| Name | Average Price | Average Sqft | Distance |
|---|---|---|---|
| St. Francis Drive | £ 330,000 | 0 | 0.00 KM |
| Oakwood Drive | £ 300,000 | 0 | 0.00 KM |
| Wilde Close | £ 0 | 0 | 0.00 KM |
| Winterbourne Croft | £ 142,000 | 0 | 0.00 KM |
| Bilberry Road | £ 0 | 0 | 0.00 KM |
Nearby Transport
| Name | NLC | TLC | Distance |
|---|---|---|---|
| Bournville | 1112 | BRV | 3.21 KM |
| Kings Norton | 1109 | KNN | 3.37 KM |
| Selly Oak | 1105 | SLY | 5.06 KM |
| Wythall | 4532 | WYT | 5.33 KM |
| Yardley Wood | 4537 | YRD | 5.39 KM |
Nearby Listings
| Address | Price | Type | Score | Distance |
|---|---|---|---|---|
| Collingwood Road, Birmingham, West Midlands, B30 | £ 325,000 | BUY | 7 / 10 | 0.00 KM |
| Brandwood Crescent, Birmingham, West Midlands, B30 | £ 160,000 | BUY | 5 / 10 | 0.05 KM |
| Brandwood Crescent, Birmingham, B30 | £ 165,000 | BUY | 5 / 10 | 0.05 KM |
| Brandwood Crescent, BIRMINGHAM, West Midlands, B30 | £ 160,000 | BUY | Unknown | 0.05 KM |
| Brandwood Crescent, Kings Norton, Birmingham | £ 325,000 | BUY | 7 / 10 | 0.07 KM |
Nearby Properties
| Address | Price | Distance |
|---|---|---|
| 74 Brandwood Crescent | £ 277,000 | 0.05 KM |
| 100 Brandwood Crescent | £ 258,000 | 0.05 KM |
| 46 Brandwood Crescent | £ 133,789 | 0.05 KM |
| 70 Brandwood Crescent | £ 228,500 | 0.05 KM |
| 52 Brandwood Crescent | £ 132,000 | 0.05 KM |