Gilson Bailey says ..
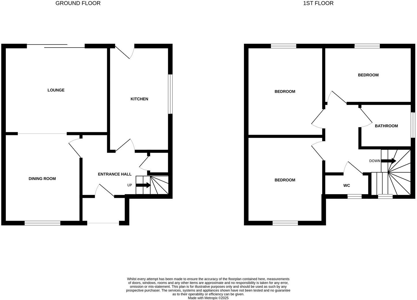
**DETACHED FAMILY HOME OFFERED WITH NO ONWARD CHAIN** Gilson Bailey are delighted to offer this WELL PRESENTED, THREE BEDROOM, DETACHED HOUSE situated to the east of Norwich within easy reach of the City Centre. Accommodation comprising entrance hall, lounge, dining room and kitchen to the ground...
Property Oracle says ..
Therefore, we give this property 5 / 10. *Disclaimer: This is our option and does constitute a recommendation or financial advice. Do your own research. *
- Price
- 4
- Condition
- 5
- Location
- 7
- Land
- 7
- Bedrooms
- 3
- Bathrooms
- 1
- Sqft (est)
- 816.00
The heatmap indicates the level of crime in the area. The color of the heatmap indicates the crime severity and recency.
Metrics Year-on-Year
- Average area value
- 280,714.00 £Increased by 16.69 %
- Est sale value
- 287,232.00 £Increased by 24.82 %
- Average area rental value
- 1,200.00 £/moIncreased by 4.08 %
- Est letting value
- 816.00 £/moUnchanged by 0.00 %
- Est rental Yield
- 5.13 %Decreased by 10.78 %
- Crime Rate
- 8.00 %Unchanged by 0.00 %
from 240,560.00 £
from 230,112.00 £
from 1,153.00 £/mo
from 816.00 £/mo
from 5.75 %
from 8.00 %
Agent Activity
Gilson Bailey created the listing.
Nearby Schools
| Name | Type | Ofsted | Distance |
|---|---|---|---|
| Thorpe Hamlet & Heartsease Children'S Centre | Children's Centre | 0.58 KM | |
| Lionwood Junior School | Academy Converter | Good | 0.58 KM |
| Lionwood Infant And Nursery School | Academy Converter | Outstanding | 0.92 KM |
| Heartsease Primary Academy | Academy Converter | Outstanding | 0.96 KM |
| The Open Academy | Academy Sponsor Led | Requires improvement | 1.11 KM |
Images
Nearby Streets
| Name | Average Price | Average Sqft | Distance |
|---|---|---|---|
| Harvey Close | £ 362,500 | 0 | 0.00 KM |
| Vancouver Road | £ 0 | 0 | 0.00 KM |
| Lime Tree Avenue | £ 265,000 | 0 | 0.00 KM |
| Saint Williams Way | £ 0 | 0 | 0.00 KM |
| Orchard Close | £ 300,833 | 0 | 0.00 KM |
Nearby Transport
| Name | NLC | TLC | Distance |
|---|---|---|---|
| Norwich | 7309 | NRW | 1.93 KM |
| Salhouse | 7318 | SAH | 8.87 KM |
Nearby Listings
| Address | Price | Type | Score | Distance |
|---|---|---|---|---|
| Plumstead Road, Norwich | £ 375,000 | BUY | 5 / 10 | 0.00 KM |
| Womersley Road, Norwich, Norfolk | £ 140,000 | BUY | 5 / 10 | 0.08 KM |
| Plumstead Road, Norwich | £ 170,000 | BUY | 6 / 10 | 0.10 KM |
| 16 Lloyd Road, Norwich, Norfolk NR1 4LB | £ 170,000 | BUY | Unknown | 0.15 KM |
| 16 Lloyd Road, Norwich, Norfolk NR1 4LB | £ 160,000 | BUY | 6 / 10 | 0.15 KM |
Nearby Properties
| Address | Price | Distance |
|---|---|---|
| 7 Aberdare Court | £ 143,000 | 0.08 KM |
| 3 Aberdare Court | £ 38,950 | 0.08 KM |
| 1 Aberdare Court | £ 53,500 | 0.08 KM |
| 12 Aberdare Court | £ 242,000 | 0.08 KM |
| 10 Aberdare Court | £ 140,000 | 0.08 KM |