Allday & Miller says ..
Stunning two-bedroom terraced house situated in a quiet, sought-after location. Beautifully presented throughout with modern interiors, spacious living areas, and a private garden. Ideal for first-time buyers or small families seeking peace and convenience.
Property Oracle says ..
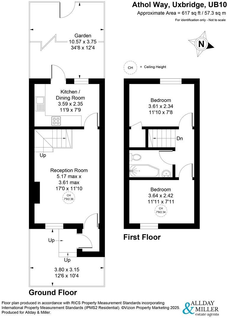
This property is a 2 bedroom, 1 bathroom terraced house located in Uxbridge North, Hillingdon. It is listed at £425,000 and has a plot size of 617 sqft. The property appears to be in good condition, having been recently updated with a modern kitchen and bathroom. There is a small garden to the rear. The average price for properties in the area is £550,351, with an average price per sqft of £490. This property is significantly smaller than average at 516.81 sqft, and therefore the price per sqft is higher than average. However, given its good condition and location, the asking price may be reasonable for a buyer looking for a move-in ready property in this area. The property is conveniently located near several schools and transportation links, making it an attractive option for families or commuters.
Therefore, we give this property 6 / 10. *Disclaimer: This is our option and does constitute a recommendation or financial advice. Do your own research. *
- Price
- 6
- Condition
- 8
- Location
- 7
- Land
- 4
- Bedrooms
- 2
- Bathrooms
- 1
- Sqft (est)
- 516.81
- Lot (est)
- 617.00
The heatmap indicates the level of crime in the area. The color of the heatmap indicates the crime severity and recency.
Metrics Year-on-Year
- Average area value
- 488,667.00 £Decreased by 11.40 %
- Est sale value
- 251,169.66 £Decreased by 11.15 %
- Average area rental value
- 1,931.00 £/moDecreased by 5.71 %
- Est letting value
- 516.81 £/moDecreased by 50.00 %
- Est rental Yield
- 4.74 %Increased by 6.28 %
- Crime Rate
- 4.00 %Unchanged by 0.00 %
Agent Activity
Allday & Miller created the listing.
Nearby Schools
| Name | Type | Ofsted | Distance |
|---|---|---|---|
| Bishopshalt School | Academy Converter | Good | 0.55 KM |
| Hillingdon Primary School | Academy Converter | 0.64 KM | |
| St Bernadette Catholic Primary School | Voluntary Aided School | Good | 0.74 KM |
| Oak Wood School | Foundation School | Requires improvement | 0.96 KM |
| Acs Hillingdon International School | Other Independent School | 1.10 KM |
Images
Nearby Streets
| Name | Average Price | Average Sqft | Distance |
|---|---|---|---|
| The Crossway | £ 0 | 0 | 0.00 KM |
| Kirby Way | £ 0 | 0 | 0.00 KM |
| Newlyn Close | £ 665,000 | 0 | 0.00 KM |
| Morton Close | £ 0 | 0 | 0.00 KM |
| Collingwood Road | £ 555,625 | 0 | 0.00 KM |
Nearby Transport
| Name | NLC | TLC | Distance |
|---|---|---|---|
| West Drayton | 3174 | WDT | 3.34 KM |
| West Ruislip | 3059 | WRU | 4.33 KM |
| Hayes And Harlington | 3186 | HAY | 5.21 KM |
| Iver | 3170 | IVR | 6.40 KM |
| South Ruislip | 3057 | SRU | 6.66 KM |
Nearby Listings
| Address | Price | Type | Score | Distance |
|---|---|---|---|---|
| Athol Way, Hillingdon | £ 425,000 | BUY | 6 / 10 | 0.00 KM |
| Athol Way, Uxbridge | £ 425,000 | BUY | 7 / 10 | 0.00 KM |
| Ashdown Road, Uxbridge, Middlesex | £ 225,000 | BUY | Unknown | 0.07 KM |
| Ashdown Road, Hillingdon, UB10 | £ 425,000 | BUY | 6 / 10 | 0.11 KM |
| 6 Keilder Close, Hillingdon, Uxbridge, UB10 0EU | £ 175,000 | BUY | 5 / 10 | 0.16 KM |
Nearby Properties
| Address | Price | Distance |
|---|---|---|
| 23 Athol Way | £ 340,000 | 0.01 KM |
| 47 Athol Way | £ 220,000 | 0.01 KM |
| 43 Athol Way | £ 249,900 | 0.01 KM |
| 39 Athol Way | £ 229,950 | 0.01 KM |
| 31 Athol Way | £ 348,000 | 0.01 KM |