Market Street, Hoyland, Barnsley, S74 0EU
By Sorbys
£ 165,000
Reviews
3 out of 5 stars
Sorbys says ..
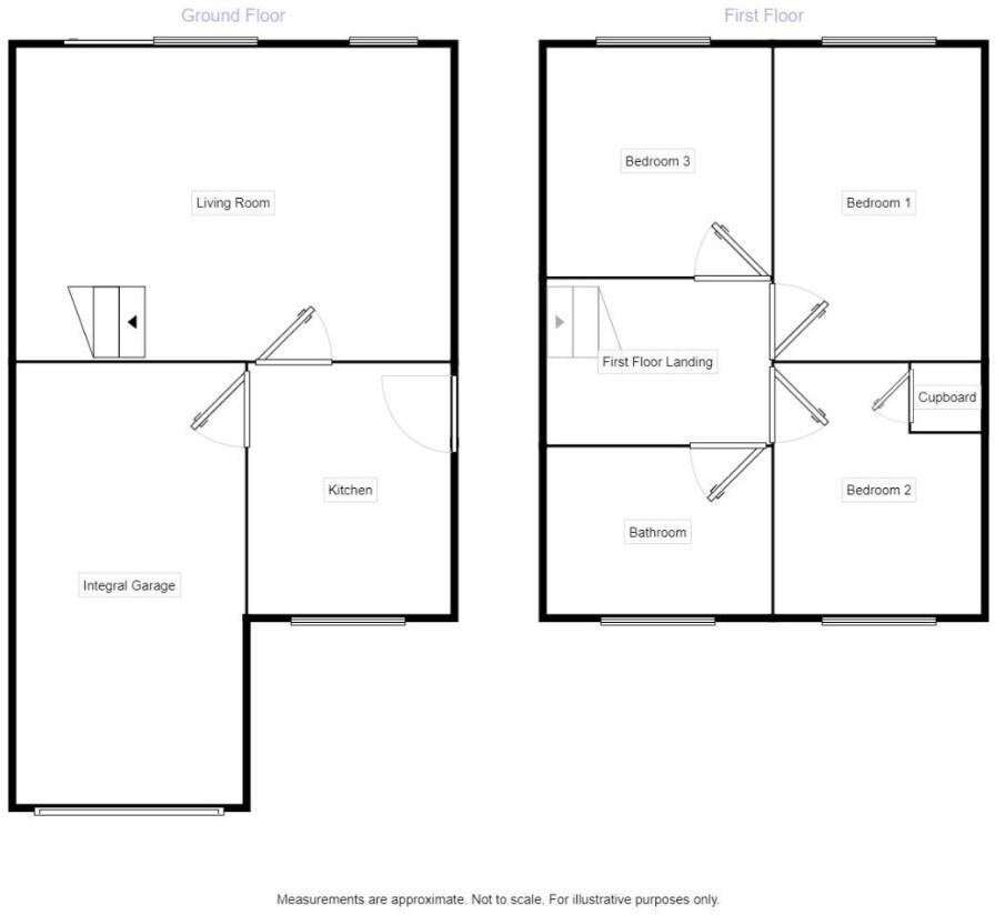
This stone fronted three bedroom semi-detached house is currently available for sale without any chain. It features low maintenance gardens, off street parking, and an integral garage. The property has undergone recent upgrades, including replacement UPVC double glazing with complementin...
Property Oracle says ..
The property is a 3-bedroom house located on Market Street in Hoyland, Barnsley. It has a relatively small plot size of 0.00 sqft, but the photos show a small, manageable rear garden and patio area, which is a positive feature. The house appears to be in good condition, with recently updated kitchen and bathroom fixtures visible in the provided images. The interior is modern and well-presented. The location is close to several primary and secondary schools with good Ofsted ratings, suggesting a family-friendly environment. The proximity to train stations in nearby towns offers convenient access to commuting options. However, without specific information on the average price per square foot for comparable properties in the area, a definitive assessment of the list price’s reasonableness is difficult. The available data on nearby streets shows a range of property prices, indicating some price variation within the local market. More detailed price per sqft data for similar properties would allow for a more precise evaluation of the property’s value.
Therefore, we give this property 6 / 10. *Disclaimer: This is our option and does constitute a recommendation or financial advice. Do your own research. *
- Price
- 6
- Condition
- 8
- Location
- 7
- Land
- 4
- Bedrooms
- 3
- Bathrooms
- 1
- Sqft (est)
- 720.00
The heatmap indicates the level of crime in the area. The color of the heatmap indicates the crime severity and recency.
Metrics Year-on-Year
- Average area value
- 193,571.00 £Decreased by 17.45 %
- Est sale value
- 196,560.00 £Increased by 14.23 %
- Average area rental value
- 761.00 £/moDecreased by 1.68 %
- Est letting value
- 720.00 £/mo
- Est rental Yield
- 4.72 %Increased by 19.19 %
- Crime Rate
- 6.00 %Unchanged by 0.00 %
Agent Activity
Sorbys created the listing.
Nearby Schools
| Name | Type | Ofsted | Distance |
|---|---|---|---|
| St Helen'S Catholic Primary School | Voluntary Aided School | Good | 0.47 KM |
| Hoyland Springwood Primary School | Academy Sponsor Led | Good | 0.81 KM |
| Kirk Balk Academy | Academy Sponsor Led | Good | 0.84 KM |
| Greenfield Primary School | Community School | Good | 1.11 KM |
| Jump Primary School | Community School | Outstanding | 1.26 KM |
Images
Nearby Streets
| Name | Average Price | Average Sqft | Distance |
|---|---|---|---|
| Edinburgh Road | £ 150,000 | 0 | 0.00 KM |
| Woodlands Road | £ 0 | 0 | 0.00 KM |
| Pine Close | £ 250,000 | 0 | 0.00 KM |
| Queensway | £ 160,000 | 0 | 0.00 KM |
| Shaftesbury Drive | £ 104,167 | 0 | 0.00 KM |
Nearby Transport
| Name | NLC | TLC | Distance |
|---|---|---|---|
| Elsecar | 6667 | ELR | 1.70 KM |
| Wombwell | 6688 | WOM | 3.26 KM |
| Chapeltown (South Yorkshire) | 6664 | CLN | 5.29 KM |
| Barnsley | 6774 | BNY | 6.87 KM |
Nearby Listings
| Address | Price | Type | Score | Distance |
|---|---|---|---|---|
| Market Street, Hoyland, Barnsley, S74 0EU | £ 165,000 | BUY | 6 / 10 | 0.00 KM |
| Spring Gardens, Barnsley, S74 | £ 450,000 | BUY | 7 / 10 | 0.16 KM |
| Old School Close, Hoyland, Barnsley | £ 190,000 | BUY | 6 / 10 | 0.24 KM |
| Royston Hill, Hoyland, Barnsley | £ 150,000 | BUY | 4 / 10 | 0.26 KM |
| Greenside Lane, Hoyland, Barnsley | £ 425,000 | BUY | 7 / 10 | 0.27 KM |
Nearby Properties
| Address | Price | Distance |
|---|---|---|
| 84 Market Street | £ 110,000 | 0.04 KM |
| 83 Market Street | £ 105,000 | 0.04 KM |
| 77 Market Street | £ 64,500 | 0.04 KM |
| 79 Market Street | £ 99,950 | 0.04 KM |
| 3 Mell Avenue | £ 107,500 | 0.09 KM |