Habitat says ..
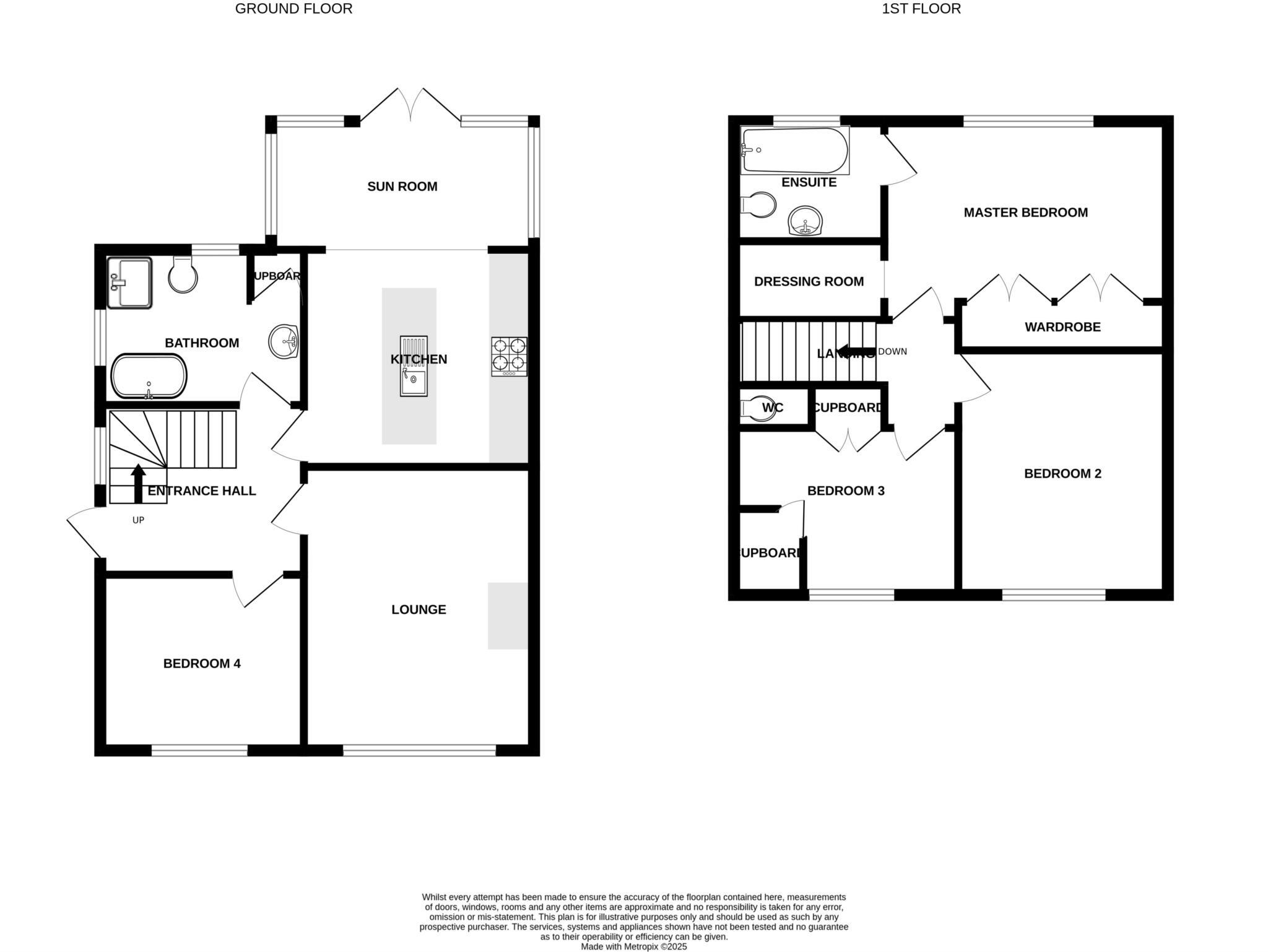
A FOUR BEDROOM, EXTENDED, semi-detached dormer bungalow situated in the sought after area of ROYTON
Property Oracle says ..
This property is a 4-bedroom, 2-bathroom bungalow located in Royton, Oldham. The property is presented in excellent condition and has undergone a tasteful modernisation. It benefits from a good-sized garden with artificial turf, a modern kitchen, and updated bathrooms. The location is convenient, with nearby schools and transportation links. The list price is slightly higher than the average for the area, but the property’s condition, size, and features justify the premium.
Therefore, we give this property 7 / 10. *Disclaimer: This is our option and does constitute a recommendation or financial advice. Do your own research. *
- Price
- 7
- Condition
- 9
- Location
- 7
- Land
- 8
- Bedrooms
- 4
- Bathrooms
- 2
- Sqft (est)
- 1,200.00
The heatmap indicates the level of crime in the area. The color of the heatmap indicates the crime severity and recency.
Metrics Year-on-Year
- Average area value
- 320,980.00 £Increased by 16.50 %
- Est sale value
- 444,000.00 £Increased by 35.53 %
- Average area rental value
- 848.00 £/moDecreased by 17.19 %
- Est letting value
- 0.00 £/moDecreased by 100.00 %
- Est rental Yield
- 3.17 %Decreased by 28.92 %
- Crime Rate
- 0.00 %
Agent Activity
Habitat created the listing.
Nearby Schools
| Name | Type | Ofsted | Distance |
|---|---|---|---|
| St Paul'S Cofe Primary School | Voluntary Aided School | Good | 0.22 KM |
| The Oldham Academy North | Academy Sponsor Led | Good | 0.82 KM |
| Thorp Primary School | Academy Converter | 0.92 KM | |
| Elland House School | Other Independent Special School | Good | 1.05 KM |
| Ss Aidan And Oswald'S Roman Catholic Primary School | Voluntary Aided School | Good | 1.15 KM |
Images
Nearby Streets
| Name | Average Price | Average Sqft | Distance |
|---|---|---|---|
| Highlands Road | £ 0 | 0 | 0.00 KM |
| Cheviot Avenue | £ 299,950 | 0 | 0.00 KM |
| Highlands | £ 185,000 | 0 | 0.00 KM |
| Elizabeth Avenue | £ 0 | 0 | 0.00 KM |
| North Street | £ 135,000 | 0 | 0.00 KM |
Nearby Transport
| Name | NLC | TLC | Distance |
|---|---|---|---|
| Mills Hill (Manchester) | 2920 | MIH | 4.42 KM |
| Rochdale | 2924 | RCD | 5.95 KM |
| Moston | 2973 | MSO | 5.95 KM |
| Castleton (Manchester) | 2919 | CAS | 6.09 KM |
| Smithy Bridge | 2660 | SMB | 8.31 KM |
Nearby Listings
| Address | Price | Type | Score | Distance |
|---|---|---|---|---|
| Malvern Close, Royton | £ 349,000 | BUY | 7 / 10 | 0.00 KM |
| Malvern Close, Royton, Oldham, Greater Manchester, OL2 | £ 330,000 | BUY | 7 / 10 | 0.00 KM |
| Malvern Close, Royton, Oldham, Greater Manchester, OL2 | £ 239,950 | BUY | 7 / 10 | 0.00 KM |
| Malvern Close, Royton, Oldham, Greater Manchester, OL2 | £ 229,950 | BUY | Unknown | 0.00 KM |
| Malvern Close, Royton, Oldham, Greater Manchester, OL2 | £ 259,950 | BUY | 7 / 10 | 0.00 KM |
Nearby Properties
| Address | Price | Distance |
|---|---|---|
| 7 Malvern Close | £ 157,000 | 0.01 KM |
| 5 Malvern Close | £ 187,950 | 0.01 KM |
| 3 Malvern Mews | £ 140,000 | 0.01 KM |
| 18 Malvern Close | £ 184,950 | 0.01 KM |
| 14 Malvern Close | £ 143,500 | 0.01 KM |