Norton Road, Thurston, Bury St. Edmunds
By William H. Brown
£ 395,000
Reviews
4 out of 5 stars
William H. Brown says ..
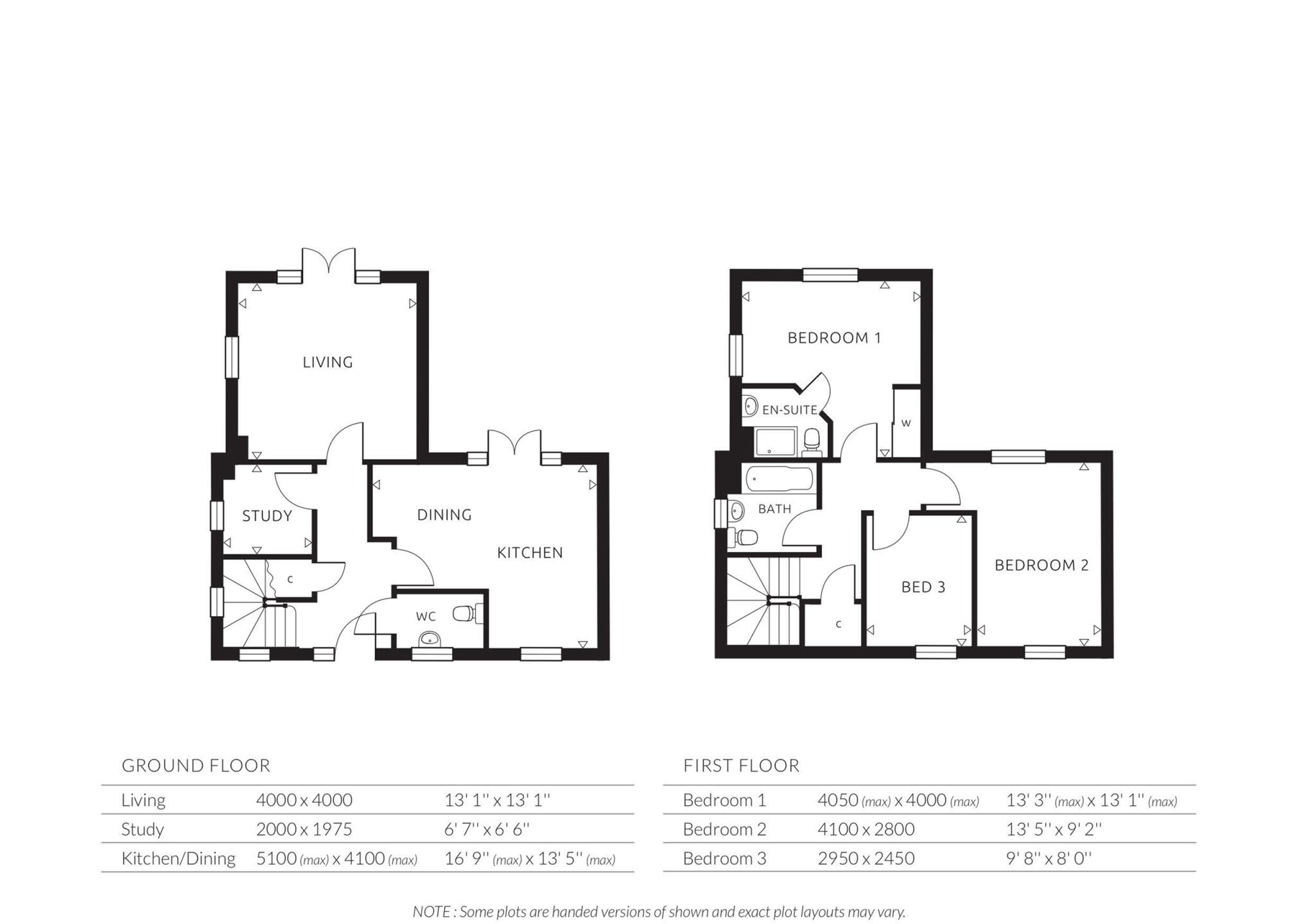
Plot 1 The Nightingale is a thoughtfully designed 3 bedroom brand new detached house with generous open plan kitchen/diner with patio doors leading to the rear garden, an En-suite, separate Living room, Study, WC, Parking, Garage, Car Charging Point & Solar panels. MARKETING SUITE OPEN DAILY 10-5PM.
Property Oracle says ..
This property is a new build, three bedroom detached home located in Thurston, Suffolk. The location benefits from being close to Thurston Community College, which received a good Ofsted rating. The property itself appears to be in excellent condition, with modern fixtures and fittings throughout. While the plot size is not specified, the images show a small garden and a detached garage. The list price is slightly below the average price for the area, however, given the modern condition and desirable features, it appears to be a reasonable price.
Therefore, we give this property 8 / 10. *Disclaimer: This is our option and does constitute a recommendation or financial advice. Do your own research. *
- Price
- 8
- Condition
- 10
- Location
- 8
- Land
- 6
- Bedrooms
- 3
- Bathrooms
- 2
- Sqft (est)
- 22,200.00
The heatmap indicates the level of crime in the area. The color of the heatmap indicates the crime severity and recency.
Metrics Year-on-Year
- Average area value
- 418,571.00 £Decreased by 7.66 %
- Est sale value
- 7,570,200.00 £Decreased by 2.29 %
- Average area rental value
- 1,600.00 £/moIncreased by 55.19 %
- Est letting value
- 22,200.00 £/mo
- Est rental Yield
- 4.59 %Increased by 68.13 %
- Crime Rate
- 13.00 %Unchanged by 0.00 %
Agent Activity
William H. Brown marked this listing as sold.
William H. Brown created the listing.
Nearby Schools
| Name | Type | Ofsted | Distance |
|---|---|---|---|
| Thurston Community College | Community School | Good | 0.23 KM |
| Rougham Church Of England Primary School | Academy Sponsor Led | 3.24 KM | |
| Great Barton Church Of England Primary Academy | Academy Converter | 4.82 KM | |
| Ixworth Church Of England Primary School | Academy Sponsor Led | 5.64 KM | |
| Sybil Andrews Academy | Academy Sponsor Led | Requires improvement | 5.99 KM |
Images
Nearby Streets
| Name | Average Price | Average Sqft | Distance |
|---|---|---|---|
| Lady Road | £ 346,495 | 0 | 0.00 KM |
| Skipper Close | £ 370,000 | 0 | 0.00 KM |
| The Acorns | £ 575,000 | 0 | 0.00 KM |
| Meadow Lane | £ 0 | 0 | 0.00 KM |
| Hunter Drive | £ 0 | 0 | 0.00 KM |
Nearby Transport
| Name | NLC | TLC | Distance |
|---|---|---|---|
| Thurston | 7356 | TRS | 0.59 KM |
Nearby Listings
| Address | Price | Type | Score | Distance |
|---|---|---|---|---|
| Norton Road, Thurston, Bury St. Edmunds | £ 395,000 | BUY | 8 / 10 | 0.00 KM |
| Larkspur Circle, Thurston, Bury St. Edmunds | £ 505,000 | BUY | 7 / 10 | 0.00 KM |
| Norton Road, Thurston, Bury St. Edmunds | £ 420,000 | BUY | Unknown | 0.00 KM |
| Norton Road, Thurston, Bury St. Edmunds | £ 400,000 | BUY | Unknown | 0.00 KM |
| Norton Road, Thurston, Bury St. Edmunds | £ 299,000 | BUY | 7 / 10 | 0.00 KM |
Nearby Properties
| Address | Price | Distance |
|---|---|---|
| 6 Rylands Close | £ 97,500 | 0.00 KM |
| 54 Barleyfields | £ 137,500 | 0.15 KM |
| 10 Barleyfields | £ 161,500 | 0.15 KM |
| 44 Barleyfields | £ 480,000 | 0.15 KM |
| 6 Barleyfields | £ 335,000 | 0.15 KM |