Lyminster Close, Bury St. Edmunds
By Tennens Properties Ltd
£ 210,000
Tennens Properties Ltd says ..
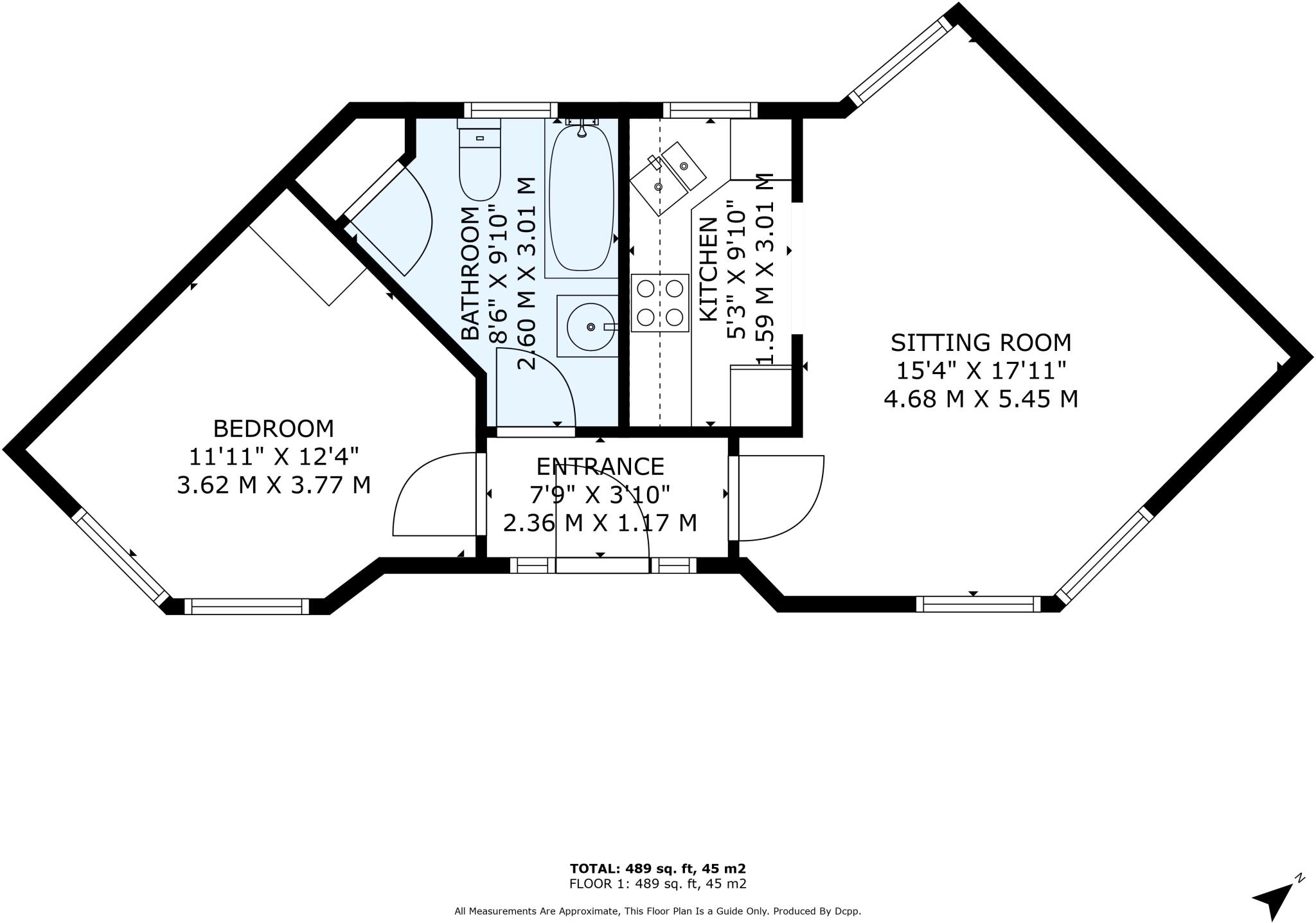
This detached bungalow is set on a good sized plot on Moreton Hall, with all amenities close by. The property is very well presented and comprises of entrance hallway, sitting room and open plan kitchen, spacious bedroom and bathroom. There are front and rear gardens, driveway and garage. No o...
- Bedrooms
- 1
- Bathrooms
- 0
The heatmap indicates the level of crime in the area. The color of the heatmap indicates the crime severity and recency.
Metrics Year-on-Year
- Average area value
- 350,000.00 £Increased by 1.28 %
- Average area rental value
- 1,917.00 £/moIncreased by 28.06 %
- Est rental Yield
- 6.57 %Increased by 26.35 %
- Crime Rate
- 11.00 %Unchanged by 0.00 %
from 345,585.00 £
from 1,497.00 £/mo
from 5.20 %
from 11.00 %
Agent Activity
Tennens Properties Ltd created the listing.
Nearby Schools
| Name | Type | Ofsted | Distance |
|---|---|---|---|
| Sebert Wood Community Primary School | Community School | Outstanding | 0.91 KM |
| Priory School | Academy Special Converter | Outstanding | 1.10 KM |
| First Base Bury St Edmunds | Academy Alternative Provision Converter | 1.71 KM | |
| Abbots Green Primary Academy | Academy Sponsor Led | 1.71 KM | |
| Learning Support, Western Area Education Office | Miscellaneous | 2.05 KM |
Images
Nearby Streets
| Name | Average Price | Average Sqft | Distance |
|---|---|---|---|
| Orttewell Road | £ 225,000 | 0 | 0.00 KM |
| Chapel Pond Hill | £ 0 | 0 | 0.00 KM |
| Barton Road | £ 750,000 | 0 | 0.00 KM |
| Brunel Business Court | £ 0 | 0 | 0.00 KM |
| Saint Edmunds Mews | £ 0 | 0 | 0.00 KM |
Nearby Transport
| Name | NLC | TLC | Distance |
|---|---|---|---|
| Bury St Edmunds | 7008 | BSE | 2.67 KM |
| Thurston | 7356 | TRS | 7.89 KM |
Nearby Listings
| Address | Price | Type | Score | Distance |
|---|---|---|---|---|
| Lyminster Close, BURY ST. EDMUNDS, Suffolk, IP32 | £ 400,000 | BUY | 7 / 10 | 0.00 KM |
| Lyminster Close, Bury St. Edmunds | £ 210,000 | BUY | Unknown | 0.00 KM |
| Bury St. Edmunds, Suffolk. | £ 399,995 | BUY | 7 / 10 | 0.00 KM |
| Lyminster Close, Bury St Edmunds | £ 375,000 | BUY | 7 / 10 | 0.00 KM |
| Lyminster Close, Bury St. Edmunds | £ 400,000 | BUY | 6 / 10 | 0.00 KM |
Nearby Properties
| Address | Price | Distance |
|---|---|---|
| 19 Lyminster Close | £ 330,000 | 0.00 KM |
| 5 Lyminster Close | £ 332,500 | 0.00 KM |
| 11 Lyminster Close | £ 250,000 | 0.00 KM |
| 21 Lyminster Close | £ 320,000 | 0.00 KM |
| 30 Lyminster Close | £ 305,000 | 0.00 KM |