Greenhill Terrace, Woolwich, SE18
By Robinson Jackson
£ 235,000
Reviews
3 out of 5 stars
Robinson Jackson says ..
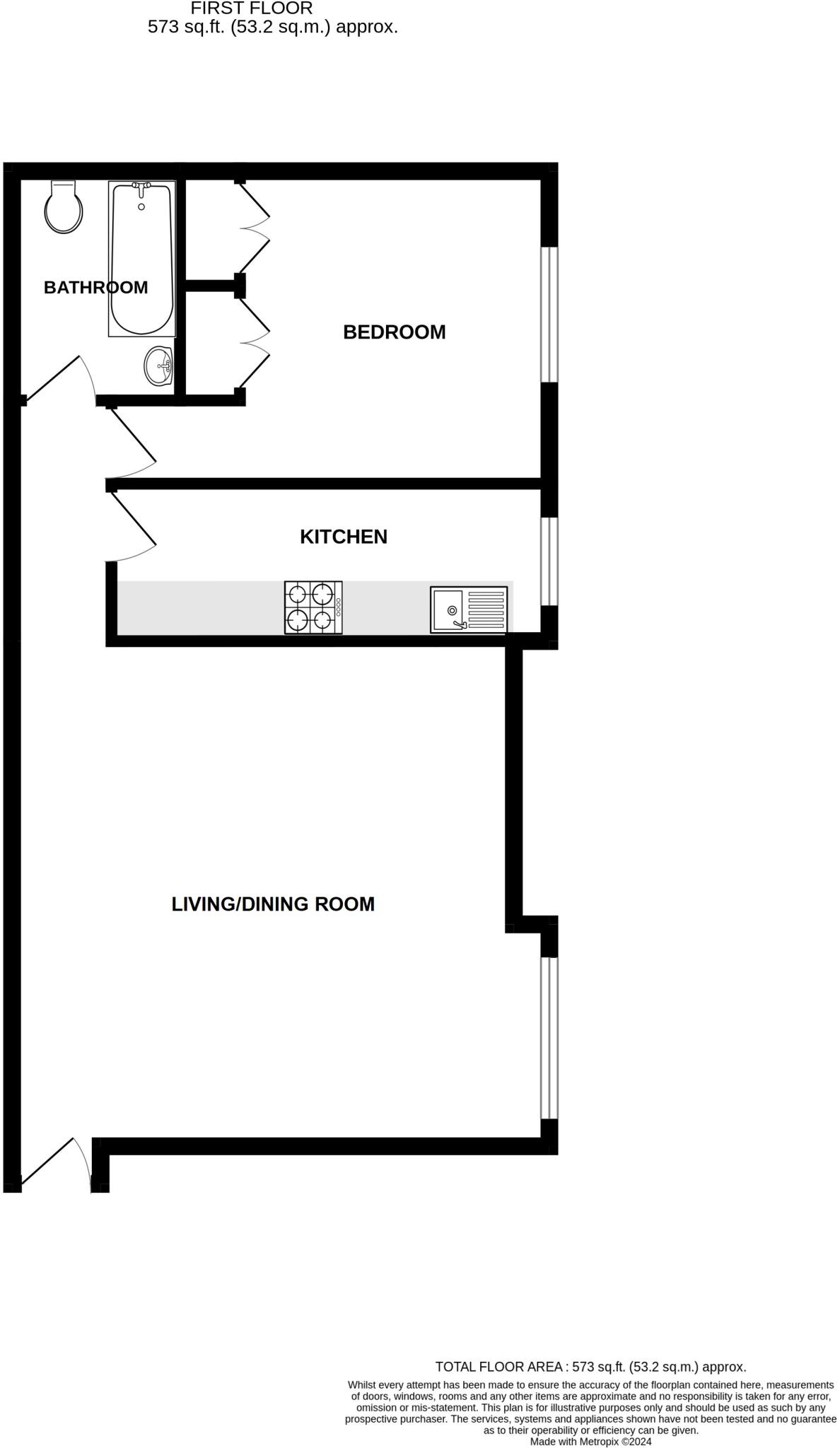
A spacious one bedroom first floor conversion flat, set in a former military academy. Conveniently located for Woolwich Dockyard, Woolwich Arsenal station and Elizabeth line. Leasehold with approximately 89 year(s) remaining,
Property Oracle says ..
This one-bedroom flat in Greenhill Terrace, Woolwich, presents a good opportunity for first-time buyers or investors. The location offers good transport links and proximity to local schools. While the property could benefit from some modernisation, it is competitively priced compared to other properties in the area. The communal garden is a definite plus, providing residents with access to outdoor space.
Therefore, we give this property 6 / 10. *Disclaimer: This is our option and does constitute a recommendation or financial advice. Do your own research. *
- Price
- 7
- Condition
- 6
- Location
- 7
- Land
- 5
- Bedrooms
- 1
- Bathrooms
- 1
- Sqft (est)
- 572.64
The heatmap indicates the level of crime in the area. The color of the heatmap indicates the crime severity and recency.
Metrics Year-on-Year
- Average area value
- 513,824.00 £Increased by 0.34 %
- Est sale value
- 368,207.52 £Decreased by 5.44 %
- Average area rental value
- 2,077.00 £/moIncreased by 6.19 %
- Est letting value
- 1,145.28 £/moUnchanged by 0.00 %
- Est rental Yield
- 4.85 %Increased by 5.90 %
- Crime Rate
- 3.00 %Unchanged by 0.00 %
Agent Activity
Robinson Jackson created the listing.
Nearby Schools
| Name | Type | Ofsted | Distance |
|---|---|---|---|
| Cardwell Primary School | Community School | Outstanding | 0.49 KM |
| Cardwell Children'S Centre | Children's Centre Linked Site | 0.51 KM | |
| Mulgrave Children'S Centre | Children's Centre Linked Site | 0.60 KM | |
| Mulgrave Primary School | Community School | Good | 0.62 KM |
| Woodhill Primary School | Academy Converter | Good | 0.75 KM |
Images
Nearby Streets
| Name | Average Price | Average Sqft | Distance |
|---|---|---|---|
| Hawkins Terrace | £ 800,000 | 0 | 0.00 KM |
| Woolwich Church Street | £ 425,000 | 0 | 0.00 KM |
| John Wilson Street | £ 173,125 | 0 | 0.00 KM |
| Lyford Street | £ 0 | 0 | 0.00 KM |
| Parish Wharf | £ 0 | 0 | 0.00 KM |
Nearby Transport
| Name | NLC | TLC | Distance |
|---|---|---|---|
| Woolwich Dockyard | 5153 | WWD | 0.48 KM |
| Woolwich Arsenal | 5152 | WWA | 1.53 KM |
| Charlton | 5144 | CTN | 2.70 KM |
| Plumstead | 5208 | PLU | 3.18 KM |
| Eltham | 5103 | ELW | 3.50 KM |
Nearby Listings
| Address | Price | Type | Score | Distance |
|---|---|---|---|---|
| Greenhill Terrace, Woolwich, SE18 | £ 235,000 | BUY | 6 / 10 | 0.00 KM |
| Greenhill Terrace, London | £ 250,000 | BUY | Unknown | 0.00 KM |
| Greenhill Terrace, Woolwich, London, SE18 | £ 260,000 | BUY | 5 / 10 | 0.05 KM |
| Hillreach, London | £ 475,000 | BUY | 4 / 10 | 0.06 KM |
| 1A Hillreach, London, SE18 | £ 475,000 | BUY | Unknown | 0.06 KM |
Nearby Properties
| Address | Price | Distance |
|---|---|---|
| 13 Frances Street | £ 95,000 | 0.08 KM |
| 34 Hillreach | £ 57,000 | 0.14 KM |
| 26 Hillreach | £ 545,000 | 0.14 KM |
| 3 Hillreach | £ 275,000 | 0.14 KM |
| 30 Hillreach | £ 134,295 | 0.14 KM |