Sheppard & Co says ..
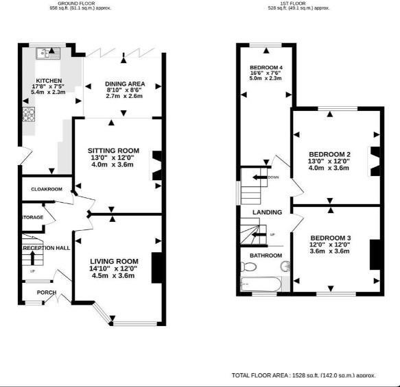
A beautifully extended traditional family home, perfectly positioned within easy reach of both Hale Village and Altrincham Town Centre. This elegant four-bedroom property combines timeless character with modern family living, offering generous accommodation across three floors. With two ...
Property Oracle says ..
This is a four-bedroom semi-detached property located in Hale Central, Trafford. The property features two bathrooms, a well-maintained garden, and is situated in a desirable location with good access to schools and transportation. While the property is generally in good condition, some areas could benefit from modernization. The price is slightly above the average price per square foot for the area, but this may be justified by the location and overall condition of the property.
Therefore, we give this property 7 / 10. *Disclaimer: This is our option and does constitute a recommendation or financial advice. Do your own research. *
- Price
- 7
- Condition
- 7
- Location
- 8
- Land
- 7
- Bedrooms
- 4
- Bathrooms
- 2
- Sqft (est)
- 964.25
The heatmap indicates the level of crime in the area. The color of the heatmap indicates the crime severity and recency.
Metrics Year-on-Year
- Average area value
- 1,058,000.00 £Increased by 28.68 %
- Est sale value
- 503,338.50 £Decreased by 1.69 %
- Average area rental value
- 2,405.00 £/moIncreased by 4.66 %
- Est letting value
- 964.25 £/moUnchanged by 0.00 %
- Est rental Yield
- 2.73 %Decreased by 18.51 %
- Crime Rate
- 0.00 %
Agent Activity
Sheppard & Co created the listing.
Nearby Schools
| Name | Type | Ofsted | Distance |
|---|---|---|---|
| Stamford Park Primary School | Community School | Good | 0.68 KM |
| Hale Preparatory School | Other Independent School | 0.96 KM | |
| Blessed Thomas Holford Catholic College | Voluntary Aided School | Outstanding | 1.05 KM |
| Altrincham College | Academy Converter | Good | 1.11 KM |
| St Vincent'S Catholic Primary School | Voluntary Aided School | Outstanding | 1.33 KM |
Images
Nearby Streets
| Name | Average Price | Average Sqft | Distance |
|---|---|---|---|
| Charlotte Place | £ 0 | 0 | 0.00 KM |
| Golf Road | £ 0 | 0 | 0.00 KM |
| The Haven | £ 0 | 0 | 0.00 KM |
| Egerton Road | £ 0 | 0 | 0.00 KM |
| Chester Avenue | £ 0 | 0 | 0.00 KM |
Nearby Transport
| Name | NLC | TLC | Distance |
|---|---|---|---|
| Hale (Manchester) | 2845 | HAL | 1.54 KM |
| Altrincham | 2806 | ALT | 1.62 KM |
| Navigation Road | 2940 | NVR | 1.89 KM |
| Ashley | 2850 | ASY | 2.98 KM |
| Mobberley | 2849 | MOB | 5.81 KM |
Nearby Listings
| Address | Price | Type | Score | Distance |
|---|---|---|---|---|
| Cleveland Road, Hale | £ 690,000 | BUY | 7 / 10 | 0.00 KM |
| Cleveland Road, Hale | £ 725,000 | BUY | 7 / 10 | 0.00 KM |
| Cleveland Road, Hale | £ 750,000 | BUY | 6 / 10 | 0.04 KM |
| Clarence Road, Hale | £ 475,000 | BUY | 8 / 10 | 0.07 KM |
| Hale Low Road, Hale | £ 495,000 | BUY | 7 / 10 | 0.09 KM |
Nearby Properties
| Address | Price | Distance |
|---|---|---|
| 8 Cleveland Road | £ 437,000 | 0.04 KM |
| 13 Cleveland Road | £ 299,950 | 0.04 KM |
| 26 Cleveland Road | £ 615,000 | 0.04 KM |
| 22 Cleveland Road | £ 430,000 | 0.04 KM |
| 34 Cleveland Road | £ 488,000 | 0.04 KM |