Cotswold Way, Risca, NP11
By Number One Real Estate
£ 215,000
Reviews
3 out of 5 stars
Number One Real Estate says ..
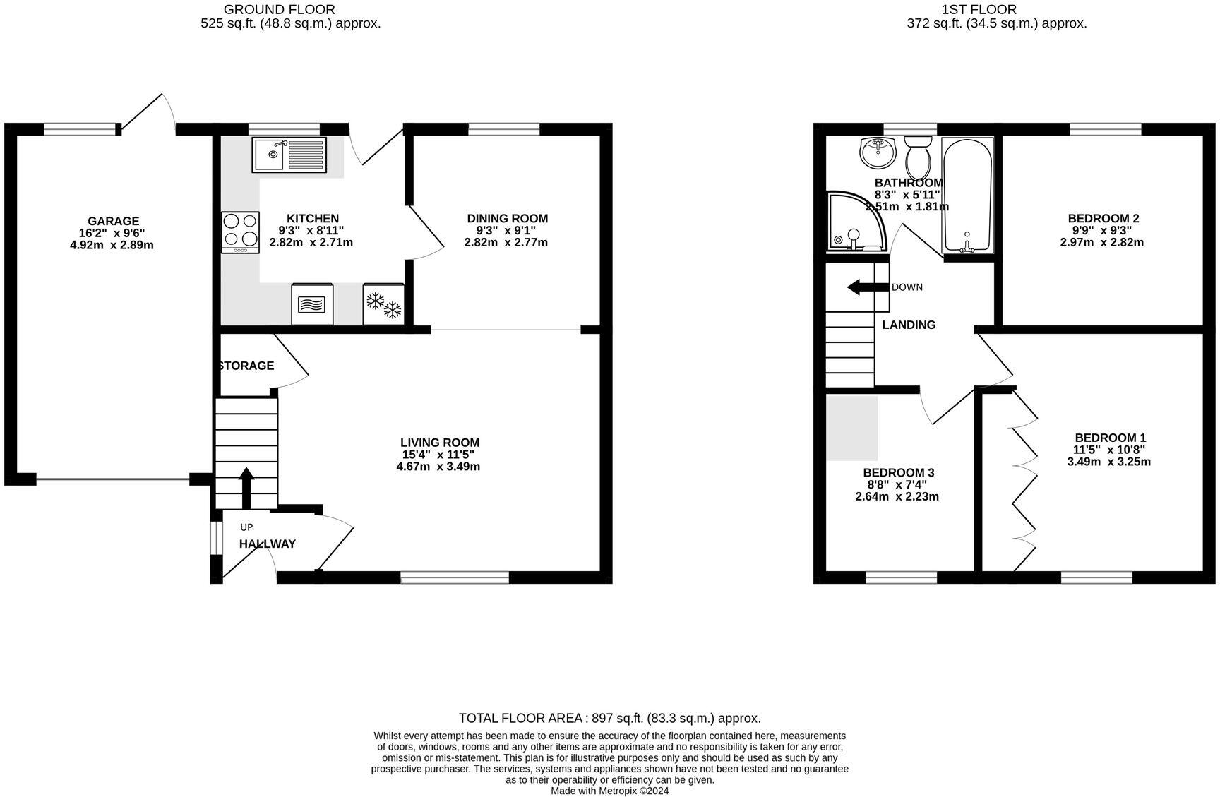
* SEMI-DETACHED * THREE BEDROOMS * GARDEN * DRIVEWAY * GARAGE * TWO RECEPTION ROOMS * ONE BATHROOM
Property Oracle says ..
This is a three-bedroom semi-detached property located in Risca, Caerphilly. The house appears to be in good condition, with a modern kitchen and bathroom. It benefits from its proximity to local schools and transportation links. While the garden needs some attention, it provides outdoor space. The asking price of £215,000 seems fair when compared to the average property prices in the area, although some nearby properties have sold for less. Overall, it presents a solid opportunity for potential buyers.
Therefore, we give this property 7 / 10. *Disclaimer: This is our option and does constitute a recommendation or financial advice. Do your own research. *
- Price
- 7
- Condition
- 8
- Location
- 7
- Land
- 6
- Bedrooms
- 3
- Bathrooms
- 1
- Sqft (est)
- 824.49
The heatmap indicates the level of crime in the area. The color of the heatmap indicates the crime severity and recency.
Metrics Year-on-Year
- Average area value
- 226,000.00 £Decreased by 4.60 %
- Est sale value
- 196,228.62 £Decreased by 6.67 %
- Average area rental value
- 750.00 £/moDecreased by 16.20 %
- Est letting value
- 0.00 £/mo
- Est rental Yield
- 3.98 %Decreased by 12.14 %
- Crime Rate
- 24.00 %Unchanged by 0.00 %
Agent Activity
Number One Real Estate created the listing.
Nearby Schools
| Name | Type | Ofsted | Distance |
|---|---|---|---|
| Risca Community Comprehensive School | Welsh Establishment | 1.05 KM | |
| Pentwynmawr Primary School | Welsh Establishment | 1.37 KM | |
| Ty Isaf Infants & Nursery School | Welsh Establishment | 1.41 KM | |
| Ty Sign Primary School | Welsh Establishment | 1.45 KM | |
| Risca Primary School | Welsh Establishment | 2.61 KM |
Images
Nearby Streets
| Name | Average Price | Average Sqft | Distance |
|---|---|---|---|
| Arran Close | £ 208,317 | 0 | 0.00 KM |
| Manor Way | £ 178,031 | 0 | 0.00 KM |
| Forsythia Close | £ 135,000 | 0 | 0.00 KM |
| Mendip Close | £ 0 | 0 | 0.00 KM |
| Malvern Close | £ 150,000 | 0 | 0.00 KM |
Nearby Transport
| Name | NLC | TLC | Distance |
|---|---|---|---|
| Risca And Pontymister | 9920 | RCA | 1.48 KM |
| Rogerstone | 9921 | ROR | 2.02 KM |
| Crosskeys | 9902 | CKY | 5.37 KM |
| Pye Corner | 1663 | PYE | 5.63 KM |
| Cwmbran | 3738 | CWM | 8.75 KM |
Nearby Listings
| Address | Price | Type | Score | Distance |
|---|---|---|---|---|
| Cotswold Way, Risca, NP11 | £ 215,000 | BUY | 7 / 10 | 0.00 KM |
| Cotswold Way, Risca | £ 130,000 | BUY | 5 / 10 | 0.01 KM |
| Twmbarlwm Close, Risca, Newport | £ 110,000 | BUY | 7 / 10 | 0.09 KM |
| Twmbarlwm Close, Risca, Newport | £ 160,000 | BUY | 7 / 10 | 0.10 KM |
| Twmbarlwm Close, Risca, Newport | £ 185,000 | BUY | Unknown | 0.10 KM |
Nearby Properties
| Address | Price | Distance |
|---|---|---|
| 72 Cotswold Way | £ 208,000 | 0.00 KM |
| 90 Cotswold Way | £ 145,000 | 0.00 KM |
| 78 Cotswold Way | £ 107,000 | 0.00 KM |
| 104 Cotswold Way | £ 66,950 | 0.00 KM |
| 110 Cotswold Way | £ 47,000 | 0.00 KM |