Peniel Green Road, Llansamlet, Swansea, City And County of Swansea. SA7 9AS
By Peter Morgan
£ 75,000
Reviews
3 out of 5 stars
Peter Morgan says ..
Building Plot with Approved Planning Permission | Detached Dwelling Plans | Annexe | Close Links To The M4 Corridor | Popular Area | Short Drive to Morfa and Swansea City Centre
Property Oracle says ..
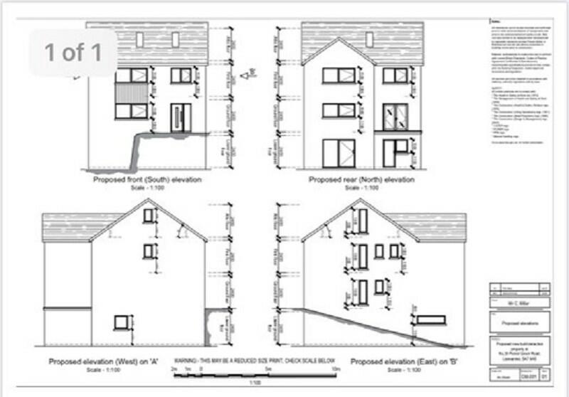
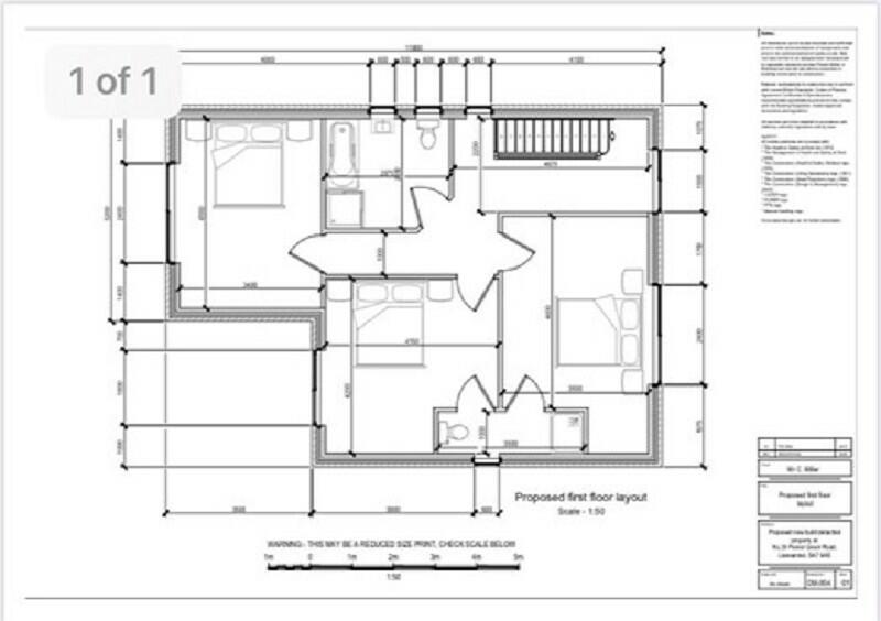
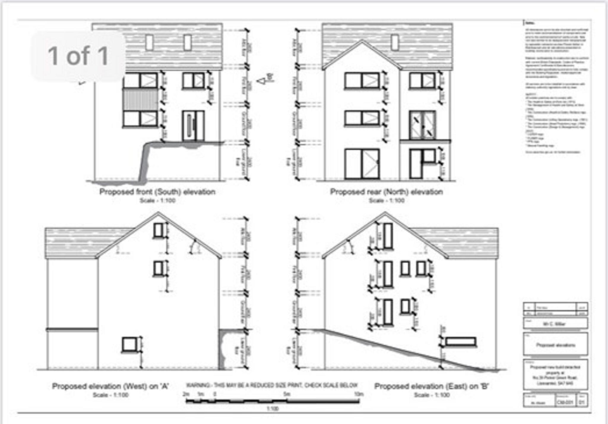
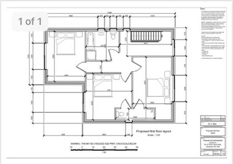
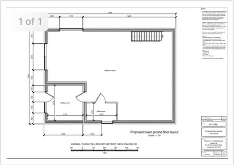
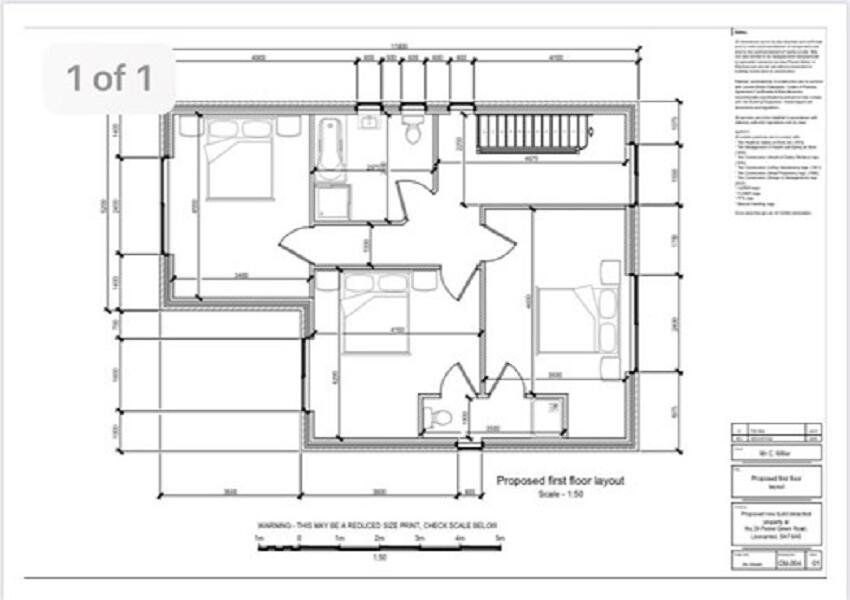
This property is a building plot located on Peniel Green Road in Llansamlet, Swansea, with approved planning permission for a new build house. The plans indicate a two-story house with three bedrooms, a bathroom, and additional living space including an annexe. The existing site appears to have a modest garden area needing landscaping, and an outbuilding is partially constructed. The property is near local schools such as Trallwn Primary and Ysgol Gymraeg Lon Las, and is within a reasonable distance of Llansamlet train station and the M4 motorway. The nearby property prices suggest the asking price may be within market range for a plot of this type, however the final property will need a significant budget to complete the build. A full assessment of the plot’s condition, services and build quality is required to determine the accuracy of the asking price and value.
Therefore, we give this property 6 / 10. *Disclaimer: This is our option and does constitute a recommendation or financial advice. Do your own research. *
- Price
- 7
- Condition
- 7
- Location
- 6
- Land
- 4
- Bedrooms
- 0
- Bathrooms
- 0
- Sqft (est)
- 839.59
The heatmap indicates the level of crime in the area. The color of the heatmap indicates the crime severity and recency.
Metrics Year-on-Year
- Average area value
- 205,714.00 £Decreased by 23.67 %
- Est sale value
- 236,764.38 £Decreased by 8.14 %
- Average area rental value
- 865.00 £/moDecreased by 7.49 %
- Est letting value
- 839.59 £/moUnchanged by 0.00 %
- Est rental Yield
- 5.05 %Increased by 21.39 %
- Crime Rate
- 8.00 %Unchanged by 0.00 %
Agent Activity
Peter Morgan created the listing.
Nearby Schools
| Name | Type | Ofsted | Distance |
|---|---|---|---|
| Trallwn Primary School | Welsh Establishment | 0.45 KM | |
| Ysgol Gymraeg Lon Las | Welsh Establishment | 0.52 KM | |
| Talycopa Primary School | Welsh Establishment | 1.35 KM | |
| Cwmglas Primary School | Welsh Establishment | 1.77 KM | |
| Cefn Hengoed Community School | Welsh Establishment | 1.97 KM |
Images
Nearby Streets
| Name | Average Price | Average Sqft | Distance |
|---|---|---|---|
| Glan Y-Wern Road | £ 0 | 0 | 0.00 KM |
| Fairfield Court | £ 199,000 | 0 | 0.00 KM |
| Pant-y-blawd Road | £ 0 | 0 | 0.00 KM |
| Trallwn Road | £ 0 | 0 | 0.00 KM |
| Greenfield Close | £ 240,000 | 0 | 0.00 KM |
Nearby Transport
| Name | NLC | TLC | Distance |
|---|---|---|---|
| Llansamlet | 4223 | LAS | 1.36 KM |
| Skewen | 4217 | SKE | 5.58 KM |
| Swansea | 4222 | SWA | 6.30 KM |
| Briton Ferry | 4187 | BNF | 8.95 KM |
| Neath | 4216 | NTH | 9.92 KM |
Nearby Listings
| Address | Price | Type | Score | Distance |
|---|---|---|---|---|
| Peniel Green Road, Llansamlet, Swansea, City And County of Swansea. SA7 9AS | £ 75,000 | BUY | 6 / 10 | 0.00 KM |
| Midland Place, Llansamlet, Swansea. SA7 9QU | £ 130,000 | BUY | 5 / 10 | 0.16 KM |
| Ffordd Cynghordy, Llansamlet, SWANSEA | £ 110,000 | BUY | 7 / 10 | 0.22 KM |
| Peniel Green Road, Llansamlet, Swansea, SA7 | £ 160,000 | BUY | Unknown | 0.27 KM |
| Peniel Green Road, Peniel Green, Swansea | £ 450,000 | BUY | Unknown | 0.29 KM |
Nearby Properties
| Address | Price | Distance |
|---|---|---|
| 55 Peniel Green Road | £ 112,100 | 0.02 KM |
| 6 Ffordd Tollborth | £ 126,000 | 0.09 KM |
| 8 Ffordd Tollborth | £ 55,995 | 0.09 KM |
| 5 Ffordd Tollborth | £ 84,000 | 0.09 KM |
| 7 Ffordd Tollborth | £ 92,500 | 0.09 KM |