Brassington Road, Chaddesden, Derby, DE21
By Northwood
£ 160,000
Reviews
3 out of 5 stars
Northwood says ..
This well-presented two-bedroom semi-detached home in Chaddesden offers a spacious living room, modern kitchen, and a large rear garden. Recently redecorated with new carpets throughout, this property is perfect for first-time buyers or investors.
Property Oracle says ..
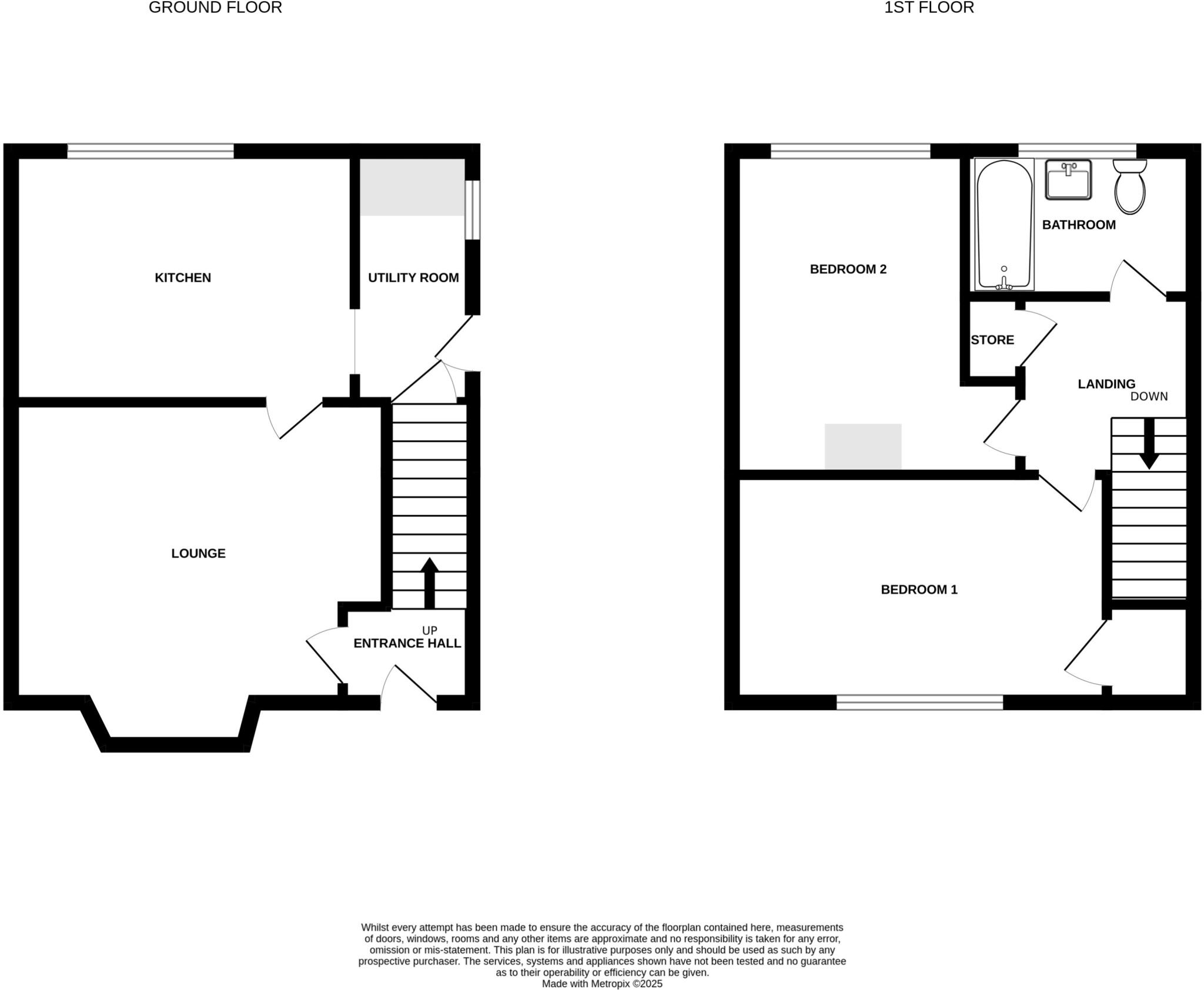
This end-of-terrace property on Brassington Road in Derby presents a good opportunity for buyers. The house includes two bedrooms and one bathroom, spanning 972 square feet. The interior features a modern kitchen and bathroom, while the exterior and garden require some maintenance. The property’s location offers convenient access to local amenities, schools, and transportation. Considering the condition, location, and land size, the asking price of £160,000 appears to be a reasonable value.
Therefore, we give this property 7 / 10. *Disclaimer: This is our option and does constitute a recommendation or financial advice. Do your own research. *
- Price
- 8
- Condition
- 6
- Location
- 7
- Land
- 7
- Bedrooms
- 2
- Bathrooms
- 1
- Sqft (est)
- 972.00
The heatmap indicates the level of crime in the area. The color of the heatmap indicates the crime severity and recency.
Metrics Year-on-Year
- Average area value
- 375,000.00 £Increased by 53.16 %
- Est sale value
- 313,956.00 £Increased by 5.56 %
- Average area rental value
- 800.00 £/moDecreased by 17.44 %
- Est letting value
- 0.00 £/moDecreased by 100.00 %
- Est rental Yield
- 2.56 %Decreased by 46.11 %
- Crime Rate
- 11.00 %Unchanged by 0.00 %
Agent Activity
Northwood created the listing.
Nearby Schools
| Name | Type | Ofsted | Distance |
|---|---|---|---|
| Audrey Drive Children'S Centre | Children's Centre | 0.85 KM | |
| Oakwood | Children's Centre | 0.86 KM | |
| Cavendish Close Infant School | Community School | Good | 0.98 KM |
| Breadsall Hill Top Primary School | Academy Sponsor Led | Good | 1.04 KM |
| Parkview Primary School | Community School | Good | 1.07 KM |
Images
Nearby Streets
| Name | Average Price | Average Sqft | Distance |
|---|---|---|---|
| Wardlow Avenue | £ 155,000 | 0 | 0.00 KM |
| Hassop Road | £ 0 | 0 | 0.00 KM |
| Canterbury Street | £ 425,000 | 0 | 0.00 KM |
| Cardinal Close | £ 0 | 0 | 0.00 KM |
| Church Lane | £ 0 | 0 | 0.00 KM |
Nearby Transport
| Name | NLC | TLC | Distance |
|---|---|---|---|
| Derby | 1823 | DBY | 3.72 KM |
| Spondon | 1699 | SPO | 4.16 KM |
| Peartree | 1687 | PEA | 6.04 KM |
| Duffield | 1691 | DFI | 7.69 KM |
Nearby Listings
| Address | Price | Type | Score | Distance |
|---|---|---|---|---|
| Brassington Road, Chaddesden, Derby, DE21 | £ 160,000 | BUY | 7 / 10 | 0.00 KM |
| Matlock Road, Chaddesden | £ 165,000 | BUY | Unknown | 0.05 KM |
| Buxton Road, Chaddesden | £ 199,950 | BUY | 6 / 10 | 0.09 KM |
| Mapleton Avenue, Derby, DE21 | £ 180,000 | BUY | 7 / 10 | 0.16 KM |
| Buxton Road, Chaddesden | £ 230,000 | BUY | 7 / 10 | 0.16 KM |
Nearby Properties
| Address | Price | Distance |
|---|---|---|
| 9 Brassington Road | £ 123,000 | 0.00 KM |
| 4 Brassington Road | £ 137,000 | 0.00 KM |
| 11 Brassington Road | £ 133,000 | 0.00 KM |
| 7 Brassington Road | £ 72,000 | 0.00 KM |
| 1 Brassington Road | £ 128,000 | 0.00 KM |