Jacobs Steel says ..
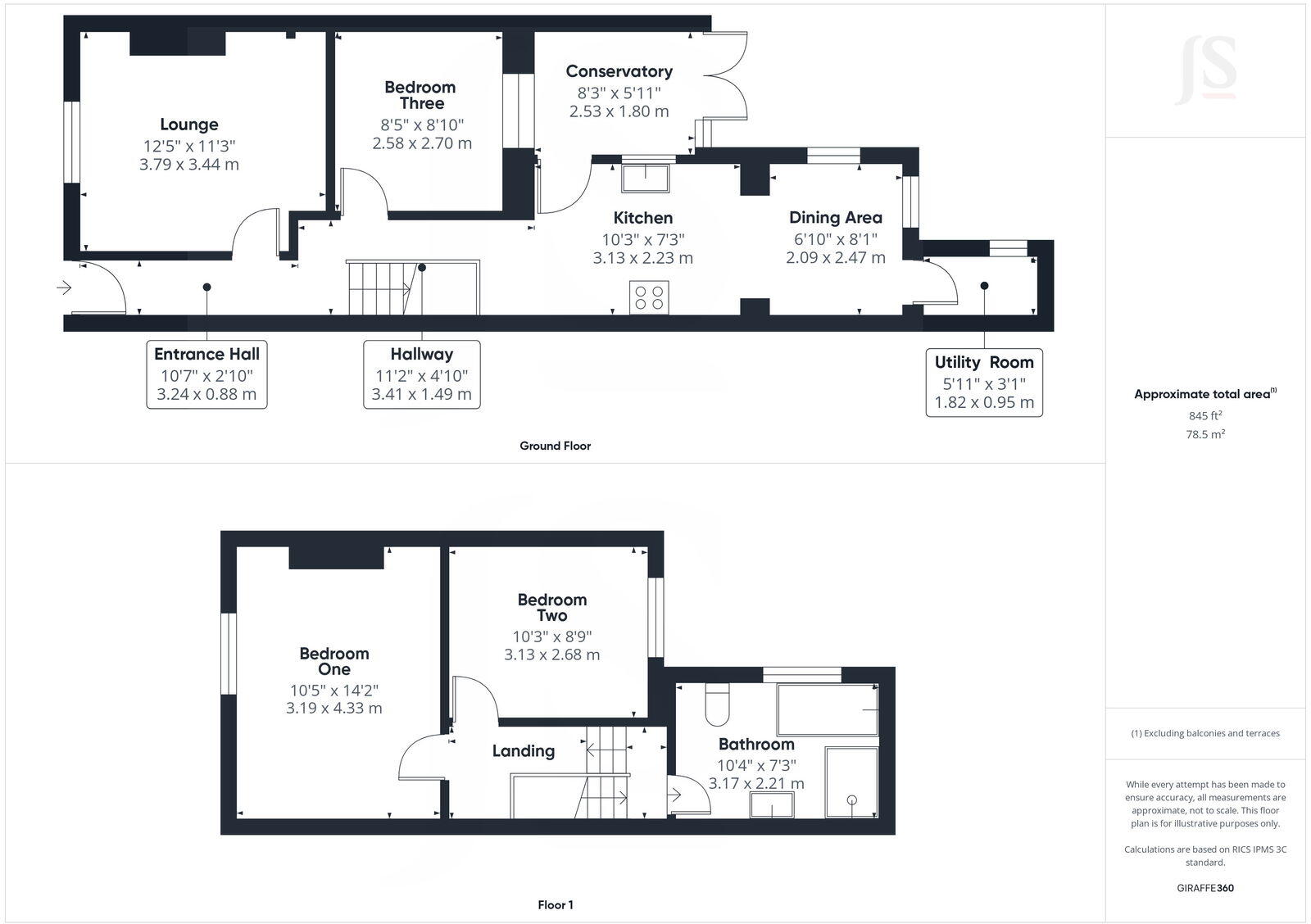
We are delighted to offer for sale this spacious three bedroom mid terrace family house benefitting from West facing rear garden and off road parking in this popular Portslade location.
Property Oracle says ..
Therefore, we give this property 7 / 10. *Disclaimer: This is our option and does constitute a recommendation or financial advice. Do your own research. *
- Price
- 7
- Condition
- 8
- Location
- 7
- Land
- 6
- Bedrooms
- 3
- Bathrooms
- 1
- Sqft (est)
- 812.87
The heatmap indicates the level of crime in the area. The color of the heatmap indicates the crime severity and recency.
Metrics Year-on-Year
- Average area value
- 415,309.00 £Decreased by 4.12 %
- Est sale value
- 400,744.91 £Increased by 22.94 %
- Average area rental value
- 1,273.00 £/moDecreased by 21.18 %
- Est letting value
- 812.87 £/moUnchanged by 0.00 %
- Est rental Yield
- 3.68 %Decreased by 17.67 %
- Crime Rate
- 19.00 %Unchanged by 0.00 %
from 433,176.00 £
from 325,960.87 £
from 1,615.00 £/mo
from 812.87 £/mo
from 4.47 %
from 19.00 %
Agent Activity
Jacobs Steel created the listing.
Nearby Schools
| Name | Type | Ofsted | Distance |
|---|---|---|---|
| Brackenbury Primary School | Community School | Requires improvement | 0.33 KM |
| St Nicolas Cofe Primary School | Voluntary Aided School | Good | 0.51 KM |
| Stepping Stones Children & Family Centre | Children's Centre | 0.57 KM | |
| St Peter'S Community Primary School | Community School | Good | 0.66 KM |
| St Mary'S Catholic Primary School | Voluntary Aided School | Good | 0.71 KM |
Images
Nearby Streets
| Name | Average Price | Average Sqft | Distance |
|---|---|---|---|
| Beaconsfield Road | £ 365,000 | 0 | 0.00 KM |
| St Richard's Road | £ 0 | 0 | 0.00 KM |
| Vale Gardens | £ 0 | 0 | 0.00 KM |
| Chapel Road | £ 0 | 0 | 0.00 KM |
| Church Street | £ 0 | 0 | 0.00 KM |
Nearby Transport
| Name | NLC | TLC | Distance |
|---|---|---|---|
| Fishersgate | 5284 | FSG | 0.27 KM |
| Portslade | 5276 | PLD | 1.45 KM |
| Southwick | 5286 | SWK | 1.99 KM |
| Aldrington | 5280 | AGT | 3.82 KM |
| Hove | 5273 | HOV | 5.28 KM |
Nearby Listings
| Address | Price | Type | Score | Distance |
|---|---|---|---|---|
| Abinger Road, Portslade | £ 425,000 | BUY | 7 / 10 | 0.00 KM |
| Abinger Road, Portslade, BN41 | £ 325,000 | BUY | 8 / 10 | 0.02 KM |
| Abinger Road, Portslade, Brighton, East Sussex, BN41 | £ 425,000 | BUY | Unknown | 0.04 KM |
| Abinger Road, Portslade | £ 375,000 | BUY | 6 / 10 | 0.05 KM |
| Abinger Road, Portslade, BN41 | £ 400,000 | BUY | 7 / 10 | 0.05 KM |
Nearby Properties
| Address | Price | Distance |
|---|---|---|
| 101 Abinger Road | £ 326,500 | 0.08 KM |
| 83 Abinger Road | £ 220,000 | 0.08 KM |
| 43 Abinger Road | £ 400,000 | 0.08 KM |
| 73 Abinger Road | £ 350,000 | 0.08 KM |
| 85 Abinger Road | £ 146,500 | 0.08 KM |