Eden Estates says ..
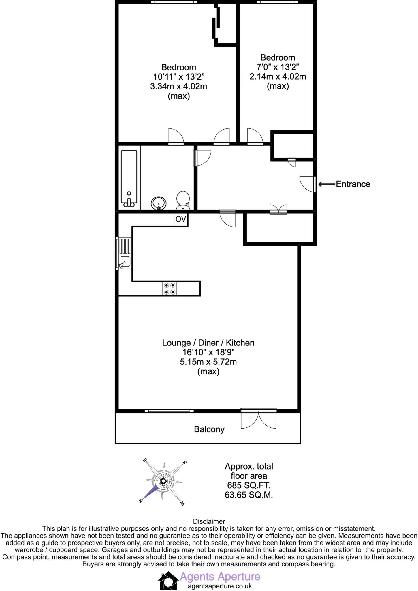
GUIDE PRICE £260,000 TO £290,000 - Modern 2-bed apartment with balcony in desirable estate. Spacious living area, off-street parking and onsite gym. Ideal for families or professionals.
Property Oracle says ..
The property is a well-maintained 2-bedroom apartment in a desirable location overlooking a lake. It benefits from convenient access to transport links and nearby schools. While lacking a garden, the modern interior and potentially underpriced listing compared to the average price per sqft in the area make it an attractive option. More data on comparable properties would help to further refine the price assessment.
Therefore, we give this property 7 / 10. *Disclaimer: This is our option and does constitute a recommendation or financial advice. Do your own research. *
- Price
- 8
- Condition
- 9
- Location
- 8
- Land
- 3
- Bedrooms
- 2
- Bathrooms
- 1
- Sqft (est)
- 685.12
The heatmap indicates the level of crime in the area. The color of the heatmap indicates the crime severity and recency.
Metrics Year-on-Year
- Average area value
- 378,929.00 £Increased by 5.38 %
- Est sale value
- 426,144.64 £Increased by 58.27 %
- Average area rental value
- 1,333.00 £/moIncreased by 4.55 %
- Est letting value
- 1,370.24 £/moIncreased by 100.00 %
- Est rental Yield
- 4.22 %Decreased by 0.71 %
- Crime Rate
- 10.00 %Unchanged by 0.00 %
Agent Activity
Eden Estates created the listing.
Nearby Schools
| Name | Type | Ofsted | Distance |
|---|---|---|---|
| Valley Invicta Primary School At Holborough Lakes | Academy Sponsor Led | Good | 0.23 KM |
| Snodland Cofe Primary School | Voluntary Aided School | Good | 0.77 KM |
| St Katherine'S School & Nursery | Academy Sponsor Led | 1.12 KM | |
| Grow 19 Ltd | Special Post 16 Institution | 1.20 KM | |
| The Holmesdale School | Academy Sponsor Led | 1.20 KM |
Images
Nearby Streets
| Name | Average Price | Average Sqft | Distance |
|---|---|---|---|
| Chapman Close | £ 394,929 | 0 | 0.00 KM |
| Adams Lane | £ 0 | 0 | 0.00 KM |
| Martin Lane | £ 425,000 | 0 | 0.00 KM |
| Byrne Road | £ 0 | 0 | 0.00 KM |
| High Street | £ 0 | 0 | 0.00 KM |
Nearby Transport
| Name | NLC | TLC | Distance |
|---|---|---|---|
| Snodland | 5189 | SDA | 0.93 KM |
| Halling | 5173 | HAI | 2.07 KM |
| New Hythe | 5238 | NHE | 2.83 KM |
| Aylesford | 5162 | AYL | 4.61 KM |
| Cuxton | 5201 | CUX | 4.97 KM |
Nearby Listings
| Address | Price | Type | Score | Distance |
|---|---|---|---|---|
| Walters Close, Snodland, ME6 | £ 260,000 | BUY | 7 / 10 | 0.00 KM |
| Walters Close, Snodland, ME6 | £ 325,000 | BUY | 6 / 10 | 0.05 KM |
| Walters Close, Snodland, ME6 | £ 350,000 | BUY | 7 / 10 | 0.05 KM |
| Walters Close, Snodland, Kent | £ 350,000 | BUY | 8 / 10 | 0.06 KM |
| Walters Close, Snodland, ME6 | £ 345,000 | BUY | 6 / 10 | 0.06 KM |
Nearby Properties
| Address | Price | Distance |
|---|---|---|
| 114 Covey Hall Road | £ 299,495 | 0.13 KM |
| 98 Covey Hall Road | £ 209,500 | 0.13 KM |
| 121 Covey Hall Road | £ 274,000 | 0.13 KM |
| 115 Covey Hall Road | £ 447,000 | 0.13 KM |
| 94 Covey Hall Road | £ 295,000 | 0.13 KM |