Kings Road, Wells
HO

Kings Road, Wells

By holland & odam

£ 360,000

Reviews

3 out of 5 stars

holland & odam says ..

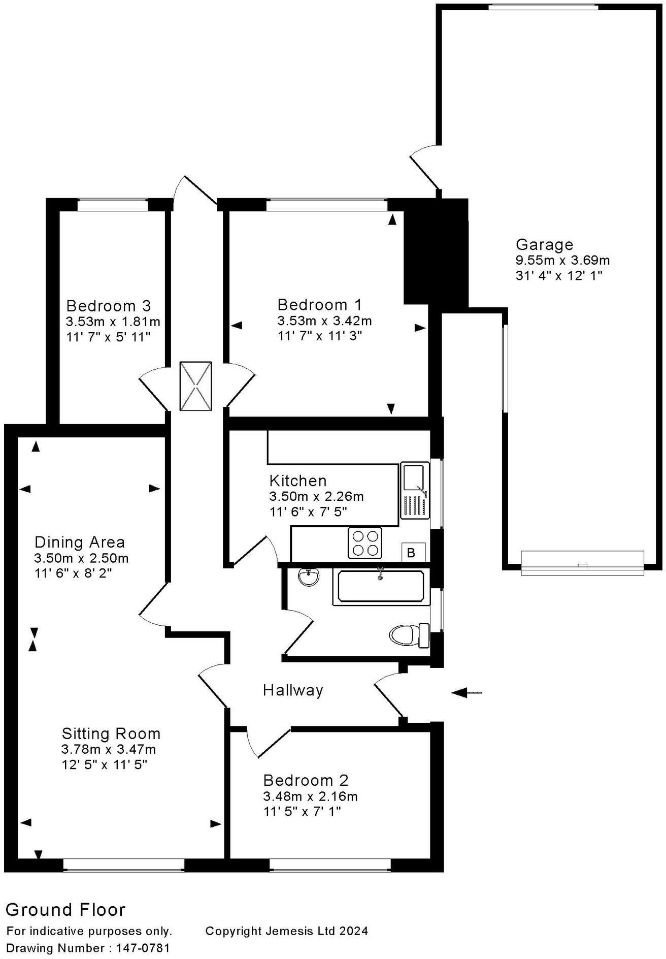
An extended semi-detached bungalow set in a popular location on the edge of the city with views to the front over Wells Golf Course and surrounding countryside. The property has been refurbished in recent years but offers a buyer the opportunity to put their own stamp on it. No onward chain.

Property Oracle says ..

This semi-detached bungalow located on Kings Road in Wells, Somerset presents a balanced opportunity for buyers. The property boasts a recently updated kitchen, a pleasing aesthetic, and a garden offering a degree of outdoor space. The inclusion of a garage adds practical value. There are three bedrooms and one bathroom, making it suitable for a small family or individual buyers.

The location in Wells St Thomas’ offers proximity to several schools, though buyers should verify the distance and suitability of the schools based on their specific needs. The lack of information regarding nearby transportation options may impact convenience for some individuals.

The bungalow’s condition appears to be satisfactory. Although the kitchen appears new or recently remodeled, the overall aesthetic hints at a property that may require more work in other areas.

The price, at £360,000, appears reasonable based on the limited data. Further research into comparable local properties, along with a thorough property survey, are vital before making a purchase decision. It is recommended to investigate the accuracy of the given square footage, which isn’t consistent with the surrounding property information. The lack of precision concerning the land size further limits definitive judgment on its overall value.

In summary, this property presents a reasonable value in a decent location. It is suitable for individuals or families who are willing to potentially upgrade certain aspects of the property in the future.

Therefore, we give this property 6 / 10. *Disclaimer: This is our option and does constitute a recommendation or financial advice. Do your own research. *

Price
7
Condition
6
Location
7
Land
5
Bedrooms
3
Bathrooms
1
Sqft (est)
1,266.91

The heatmap indicates the level of crime in the area. The color of the heatmap indicates the crime severity and recency.

Metrics Year-on-Year

Average area value
414,000.00 £
Decreased by 14.53 %
from 484,406.00 £
Est sale value
511,831.64 £
Increased by 31.60 %
from 388,941.37 £
Average area rental value
1,163.00 £/mo
Increased by 22.42 %
from 950.00 £/mo
Est letting value
1,266.91 £/mo
from 0.00 £/mo
Est rental Yield
3.37 %
Increased by 43.40 %
from 2.35 %
Crime Rate
4.00 %
Unchanged by 0.00 %
from 4.00 %

Agent Activity

  • holland & odam created the listing.

Nearby Schools

NameTypeOfstedDistance
Horrington Primary SchoolAcademy Converter1.83 KM
Stoberry Park SchoolCommunity SchoolGood2.05 KM
Wells Cathedral SchoolOther Independent School2.29 KM
The Blue SchoolAcademy ConverterGood3.46 KM
St Cuthbert'S Cofe Junior SchoolVoluntary Controlled SchoolRequires improvement3.98 KM

Images

Front Kitchen Views to the front Sitting room with gas fire Sitting room and dining area Bedroom 1 Bedroom 2 Bedroom 3 Shower room Kitchen Bedroom 1 Double garage/workshop Rear garden and views Rear garden Dining area Rear elevation Sitting room through to dining area Kitchen Kitchen

Nearby Streets

NameAverage PriceAverage SqftDistance
Foster Close £ 000.00 KM
School Lane £ 875,00000.00 KM
B3139 £ 000.00 KM
New Close £ 472,50000.00 KM
Teulon Court £ 275,00000.00 KM

Nearby Listings

AddressPriceTypeScoreDistance
Kings Road, Wells £ 360,000BUY6 / 100.00 KM
Kings Road, Wells, Somerset, BA5 £ 300,000BUYUnknown0.01 KM
Bath Road, Wells, BA5 £ 375,000BUYUnknown0.05 KM
Just off Bath Road, Wells £ 675,000BUY7 / 100.11 KM
Bath Road, Wells £ 675,000BUY7 / 100.12 KM

Nearby Properties

AddressPriceDistance
112 Bath Road £ 324,0000.04 KM
116 Bath Road £ 249,9500.04 KM
120 Bath Road £ 185,0000.04 KM
118 Bath Road £ 300,0000.04 KM
124 Bath Road £ 274,0000.04 KM