Solo Homes Ltd says ..
A superb opportunity to purchase this brand new 2 bedroom semi detached property, just a short distance from the historic market town of Louth. Available on a shared ownership basis, this is a great way to make your next property purchase more affordable.
Property Oracle says ..
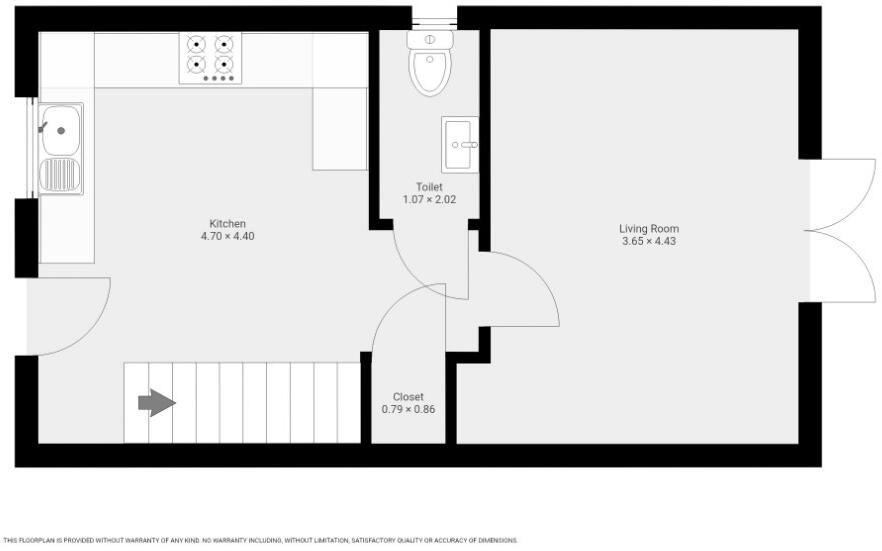
This is a 2-bedroom semi-detached property located in Louth, Lincolnshire. It is listed as a shared ownership property. The house appears to be newly built or recently renovated, featuring a modern kitchen and bathroom. However, the interior requires finishing, including flooring. The property benefits from a small garden. Its location is near schools. The list price of £105,000 is notably lower than the average property price in the area, suggesting good value, especially given the shared ownership aspect.
Therefore, we give this property 7 / 10. *Disclaimer: This is our option and does constitute a recommendation or financial advice. Do your own research. *
- Price
- 9
- Condition
- 7
- Location
- 7
- Land
- 5
- Bedrooms
- 2
- Bathrooms
- 1
- Sqft (est)
- 427.22
The heatmap indicates the level of crime in the area. The color of the heatmap indicates the crime severity and recency.
Metrics Year-on-Year
- Average area value
- 234,977.00 £Increased by 10.88 %
- Est sale value
- 125,602.68 £Increased by 28.95 %
- Average area rental value
- 1,065.00 £/moDecreased by 1.11 %
- Est letting value
- 427.22 £/moUnchanged by 0.00 %
- Est rental Yield
- 5.44 %Decreased by 10.82 %
- Crime Rate
- 12.00 %Unchanged by 0.00 %
Agent Activity
Solo Homes Ltd created the listing.
Nearby Schools
| Name | Type | Ofsted | Distance |
|---|---|---|---|
| St Bernard'S School | Academy Special Converter | Good | 0.30 KM |
| Lacey Gardens Junior Academy | Academy Converter | 0.51 KM | |
| Louth And Holton-Le-Clay Children'S Centre | Children's Centre | 0.55 KM | |
| Eastfield Infants And Nursery Academy | Academy Converter | 0.59 KM | |
| Louth Academy | Academy Sponsor Led | 0.97 KM |
Images
Nearby Streets
| Name | Average Price | Average Sqft | Distance |
|---|---|---|---|
| Wood Way | £ 215,595 | 0 | 0.00 KM |
| Sycamore Drive | £ 195,000 | 0 | 0.00 KM |
| Railway Walk | £ 0 | 0 | 0.00 KM |
| Stewton Lane | £ 637,500 | 0 | 0.00 KM |
| Priory Close | £ 239,950 | 0 | 0.00 KM |
Nearby Listings
| Address | Price | Type | Score | Distance |
|---|---|---|---|---|
| King Charles Close, Louth | £ 120,000 | BUY | 6 / 10 | 0.00 KM |
| King Charles Close, Louth | £ 20,000 | BUY | 7 / 10 | 0.00 KM |
| King Charles Close, Louth | £ 17,500 | BUY | 5 / 10 | 0.00 KM |
| King Charles Close, Louth | £ 105,000 | BUY | 7 / 10 | 0.00 KM |
| St. Bernards Avenue, Louth | £ 116,000 | BUY | 5 / 10 | 0.20 KM |
Nearby Properties
| Address | Price | Distance |
|---|---|---|
| 55 Wallis Road | £ 150,000 | 0.10 KM |
| 54 Wallis Road | £ 120,000 | 0.10 KM |
| 57 Wallis Road | £ 80,000 | 0.10 KM |
| 56 Wallis Road | £ 132,000 | 0.10 KM |
| 59 Wallis Road | £ 155,000 | 0.10 KM |