Chillingham Road, Heaton, Newcastle upon Tyne
By Bailey & Co.
£ 230,000
Reviews
3 out of 5 stars
Bailey & Co. says ..
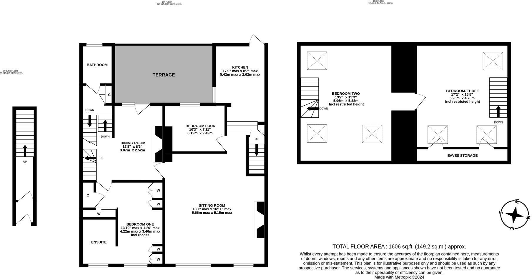
Boasting over 1,600 Sq ft! Situated close to Newcastle City Centre, this four bedroom maisonette is ideally located on the West backing side of Chillingham Road, Heaton. Situated within striking distance of Heaton's cafes and restaurants, with transport links into Newcastle City Centre and beyond...
Property Oracle says ..
This four-bedroom maisonette in Heaton, Newcastle upon Tyne, presents a compelling proposition for buyers seeking a family home in a desirable location. The property boasts a spacious layout, as evidenced by the numerous photographs displaying generously-sized living areas, bedrooms, and a well-appointed kitchen and bathrooms. Recent updates to the kitchen and bathrooms are immediately apparent, adding to the overall appeal. The loft conversion provides extra living space, suitable for a variety of uses, although it shows some age and could benefit from refurbishment to match the quality of the downstairs areas. The small, enclosed rear yard offers limited outdoor space and this lack of extensive outdoor space could be viewed as a drawback by some potential buyers. The property benefits from a convenient location in Heaton, close to well-regarded schools and with reasonable transport links to Newcastle city centre, making it an attractive choice for families and commuters. While the available data regarding nearby comparable sales is limited, the asking price appears to be generally in line with property values in the area. In summary, this property offers spacious accommodation and a desirable location. The small outdoor space and the need for some potential modernization to certain areas are aspects that buyers should consider, but the overall package is likely to appeal to a wide audience.
Therefore, we give this property 6 / 10. *Disclaimer: This is our option and does constitute a recommendation or financial advice. Do your own research. *
- Price
- 7
- Condition
- 8
- Location
- 7
- Land
- 4
- Bedrooms
- 4
- Bathrooms
- 2
- Sqft (est)
- 1,606.00
The heatmap indicates the level of crime in the area. The color of the heatmap indicates the crime severity and recency.
Metrics Year-on-Year
- Average area value
- 297,629.00 £Increased by 0.56 %
- Est sale value
- 685,762.00 £Increased by 45.24 %
- Average area rental value
- 1,009.00 £/moDecreased by 1.85 %
- Est letting value
- 1,606.00 £/moUnchanged by 0.00 %
- Est rental Yield
- 4.07 %Decreased by 2.40 %
- Crime Rate
- 6.00 %Unchanged by 0.00 %
Agent Activity
Bailey & Co. created the listing.
Nearby Schools
| Name | Type | Ofsted | Distance |
|---|---|---|---|
| Chillingham Road Primary School | Foundation School | Good | 0.19 KM |
| South Heaton | Children's Centre Linked Site | 0.60 KM | |
| St Teresa'S Catholic Primary School, Heaton | Academy Converter | 0.68 KM | |
| Ravenswood Primary School | Foundation School | Good | 0.81 KM |
| St Lawrence'S Catholic Primary School | Academy Converter | 1.02 KM |
Images
Nearby Streets
| Name | Average Price | Average Sqft | Distance |
|---|---|---|---|
| Fourth Avenue | £ 0 | 0 | 0.00 KM |
| Murray Close | £ 0 | 0 | 0.00 KM |
| Chillingham Road | £ 0 | 0 | 0.00 KM |
| Back Heaton Road | £ 225,000 | 0 | 0.00 KM |
| Crompton Road | £ 465,000 | 0 | 0.00 KM |
Nearby Transport
| Name | NLC | TLC | Distance |
|---|---|---|---|
| Manors | 7603 | MAS | 3.40 KM |
| Heworth | 7766 | HEW | 4.26 KM |
| Newcastle | 7728 | NCL | 4.86 KM |
| Dunston | 7744 | DOT | 8.20 KM |
Nearby Listings
| Address | Price | Type | Score | Distance |
|---|---|---|---|---|
| Chillingham Road, Heaton, Newcastle upon Tyne | £ 230,000 | BUY | 6 / 10 | 0.00 KM |
| Heaton Quarter, Heaton, Newcastle upon Tyne, NE6 5BT | £ 314,995 | BUY | Unknown | 0.04 KM |
| Heaton Quarter, Heaton, Newcastle upon Tyne, NE6 5BT | £ 426,995 | BUY | Unknown | 0.04 KM |
| Heaton Quarter, Heaton, Newcastle upon Tyne, NE6 5BT | £ 336,995 | BUY | 7 / 10 | 0.04 KM |
| Heaton Quarter, Heaton, Newcastle upon Tyne, NE6 5BT | £ 212,796 | BUY | Unknown | 0.04 KM |
Nearby Properties
| Address | Price | Distance |
|---|---|---|
| 102 Chillingham Road | £ 95,500 | 0.04 KM |
| 116 Chillingham Road | £ 53,950 | 0.04 KM |
| 88 Chillingham Road | £ 165,000 | 0.04 KM |
| 104 Chillingham Road | £ 115,000 | 0.04 KM |
| 114 Chillingham Road | £ 78,000 | 0.04 KM |